Südgarten - Terrasse - Dachterrasse!!
Klein, kuschelig und bezahlbar!!
Dieses charmante Reihenmittelhaus bietet ca. 152 m² Gesamtfläche, davon rund 127 m² Wohnfläche.
Die Bauweise verschafft dem Haus eine offene, versetzte Raumstruktur und verleiht dem Haus ein besonderes Wohngefühl.
Highlights:
Wohn- und Essbereich auf zwei Ebenen mit Zugang zur Süd-Terrasse und eigenem Garten
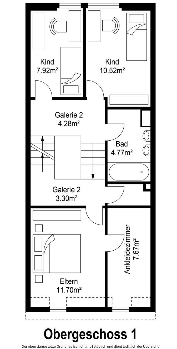
Obergeschoss mit:
- 2 Kinderzimmer
- Elternschlafzimmer mit integriertem Ankleidebereich
- Bürobereich auf der Empore!!
Zwei Bäder: Duschbad und Wannenbad
Dachgeschoss mit sonniger Süd-Dachterrasse und Weitblick
Kellergeschoss mit Wasch-/Lagerraum (inkl. Waschmaschinenanschluss) und integrierter Garage mit Schwingtor
Endlich ZUHAUSE!! - Garten - Terrasse - Dachterrasse
21033 Hamburg
Die vollständige Adresse der Immobilie erhalten Sie vom Anbieter.
Auf Karte anzeigen
Die vollständige Adresse der Immobilie erhalten Sie vom Anbieter.
Finanzierungszertifikat
In nur zwei Minuten zu Ihrem persönlichen Finanzierungszertifkat.
Infos
| Haustyp | Reihenmittelhaus |
|---|---|
| Wohnfläche ca. | 127 m2 |
| Nutzfläche | 25 m2 |
| Grundstücksfläche | 130 m2 |
| Bezugsfrei ab | 01-2026 |
| Zimmer | 5 |
| Schlafzimmer | 3 |
| Badezimmer | 2 |
| Garage/Stellplatz | Garage |
| Anzahl Garage/Stellplatz | 1 |
Kosten
| Kaufpreis |
419.000 € |
|---|---|
| Preis für Garage/Stellplatz | 0 € |
| Provision |
3,57% Der Käufer trägt eine Vermittlungsprovision i.H.v. 3,57% inkl. d. ges. USt. auf den Kaufpreis. |
Finanzierungsrechner:
Kaufpreis:
600.000 €
Eigenkapital:
600.000 €
Monatliche Rate
0 €
Effektiver Jahreszins
0 %
Sollzinsbindung
10 Jahre
Bausubstanz & Energieausweis
| Baujahr | 1984 |
|---|---|
| Letzte Sanierung | 2015 |
| Heizungsart | Elektro-Heizung |
| Wesentliche Energieträger | Strom |
| Energieausweis | liegt vor |
| Energieausweistyp | Verbrauchsausweis |
| Energieeffizienzklasse | C |
Energieeffizienzklasse C
- A+
- A
- B
- C
- D
- E
- F
- G
- H
- 0
- 25
- 50
- 75
- 100
- 125
- 150
- 175
- 200
- 225
- >250
Beschreibung des Objekts
Ausstattung
Weitere Ausstattungsdetails:
- Echtholzböden im Wohn-/Essbereich und Treppenaufgang
- Teppichboden in Schlaf- und Kinderzimmern
- Hochwertige Bulthaup-Einbauküche
- Elektro-Fußbodenheizung
- Kaminofen
- Einzelgarage mit direktem Zugang zum Haus
Lage
Ruhige Lage in Hamburg-Boberg – familienfreundlich und naturnah
Das zum Verkauf stehende Reihenmittelhaus liegt in einem gepflegten Wohngebiet im beliebten Stadtteil Hamburg-Boberg. Die Umgebung ist geprägt von Einfamilien-, Reihen- und Doppelhäusern – ideal für Familien.
Lagevorteile auf einen Blick:
- Ruhige, familienfreundliche Wohnlage
- A1 (Auffahrt) in ca. 5 Min. mit dem Auto erreichbar
- Bushaltestelle "Boberg" (Linien 29, 134, 610) nur ca. 500 m entfernt
Bahnhof Bergedorf:
- Mit der RE1 in nur 11 Min. zum Hauptbahnhof Hamburg
- Alternativ mit der S2 in ca. 21 Min. in die Innenstadt
Weitere U-Bahn-Stationen (Linie U2) in rund 6 Min. erreichbar
Naherholung direkt vor der Tür:
- Naturschutzgebiet Boberger Niederung
- Boberger Dünen – perfekt für Spaziergänge und Naturerlebnisse
Sonstige Angaben
Bei Fragen oder Besichtigungswünschen stehen wir Ihnen gern jederzeit zur Verfügung.
Wir freuen uns auf Ihre Anfrage.
Grundriss
Grundriss 1. Obergeschoss
>
>
Grundriss 2. Obergeschoss
>
>
Grundriss Erdgeschoss
>
>
Adresse
21033 Hamburg
Interessante Orte
Preis- und Lageinformationen
Preistrend für Bestandsimmobilien in Lohbrügge