Herzlich Willkommen im familienfreundlichen Vorort Eschborn/Niederhöchstadt mit guter Anbindung nach Frankfurt!
Die gut geschnittene Doppelhaushälfte überzeugt durch einen sonnigen, liebevoll gepflegten Garten und eine großzügige Garage auf dem Grundstück. Auf dem ersten Blick begeistert sofort, der erholsame nach Südwesten ausgerichtete Garten mit eigener Terrasse. Hier lassen sich gemütliche Grillabende mit den Freunden und Familie feiern und die Sonne bis in die späten Abendstunden genießen. Das Wohnzimmer mit Echtholzparkett ist durch die bodentiefen Fenster großzügig mit Tageslicht durchflutet und vermittelt eine freundliche und offene Wohnatmosphäre.
Das dreigeschossige Haus wurde im Jahr 1972 in massiver Bauweise errichtet, und die Fassade wurde nachträglich gedämmt. Die Gesamtfläche von rund 168 m² verteilt sich auf die Wohnfläche im Erd- und Obergeschoss sowie auf die Nutzfläche im Untergeschoss.
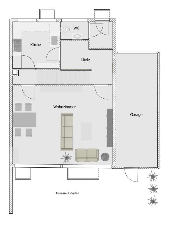
Die Wohnfläche von ca. 113,77 m² umfasst im Erdgeschoss das Wohnzimmer mit Terrassenzugang, ein Gäste-WC sowie die Küche. Im Obergeschoss befinden sich drei Zimmer und ein Tageslichtbad mit Dusche und Badewanne. Durch die großzügigen Fensterflächen und eine Dachluke im Flur wirken alle Räume hell und freundlich.
Im Untergeschoss stehen zusätzlich rund 55 m² Nutzfläche zur Verfügung. Diese gliedern sich in ein Duschbad mit Waschraum, zwei Lagerräume sowie ein wohnlich ausgebautes Zimmer, das sich ideal als Büro, Gästezimmer oder Hobbyraum eignet.
# Zustand
Das Haus wurde zwischen 1980 und 1985 umfassend modernisiert. In diesem Zuge erfolgten die Erneuerung der Wasserleitungen, die Dämmung der Fassade, eine Dachsanierung inklusive Wärmedämmung sowie der Einbau elektrischer Heizkörper.
Das Echtholzparkett im Wohnzimmer und das Klickparkett im Obergeschoss wurden vor etwa 15 Jahren verlegt und befinden sich in einem guten Zustand. Zudem wurden die Rollläden und die Markise im Erdgeschoss elektrisch nachgerüstet.
Das Haus ist nach einer Renovierung sofort bewohnbar und kann schrittweise weiter modernisiert werden, da die Bausubstanz solide ist. Vorrangig empfiehlt sich eine Auffrischung der Innenräume, insbesondere der Wandflächen und der Küche. Da noch Holzfenster verbaut sind, wäre ein Austausch gegen moderne Kunststofffenster sinnvoll.
Im Bereich der Haustechnik empfiehlt sich eine Überarbeitung des elektrischen Schaltschranks sowie der Einbau eines Rückstauventils, die der Kontrolle und dem Schutz vor möglichen Überflutungen dient.
# Fazit
Die Doppelhaushälfte vereint familienfreundliches Wohnen, solide Bausubstanz und ein großes Potenzial zur individuellen Gestaltung. Der sonnige Garten, die gute Lage und die gute Anbindung nach Frankfurt machen das Haus zu einem idealen Zuhause für Familien und Paare.
#english version
Welcome to the family-friendly suburb of Eschborn/Niederhöchstadt, offering excellent connections to Frankfurt!
This well-designed semi-detached house features a sunny southwest-facing garden with a private terrace and a spacious garage. Enjoy relaxing evenings outdoors and a bright living room with real wood parquet flooring and floor-to-ceiling windows that create an inviting atmosphere.
Built in 1972 with solid construction and later insulated, the house offers 168 m² total area, including 113.77 m² of living space with a living room, kitchen, guest WC, three bedrooms, and a daylight bathroom. The 55 m² basement includes a shower room, laundry area, two storage rooms, and a versatile room ideal for an office or guest space.
Modernized between 1980–1985, upgrades include water pipes, facade insulation, roof renovation, and electric radiators. The parquet floors and electric shutters remain in good condition.
Move-in ready after minor updates, this home combines comfort, potential, and a great location - perfect for families and couples alike.
Gut gelegene Doppelhaushälfte mit schönem Garten & Garage – ideal für Familien
65760 Eschborn
Die vollständige Adresse der Immobilie erhalten Sie vom Anbieter.
Auf Karte anzeigen
Die vollständige Adresse der Immobilie erhalten Sie vom Anbieter.
Finanzierungszertifikat
In nur zwei Minuten zu Ihrem persönlichen Finanzierungszertifkat.
Infos
| Haustyp | Doppelhaushaelfte |
|---|---|
| Wohnfläche ca. | 113 m2 |
| Nutzfläche | 55 m2 |
| Grundstücksfläche | 207 m2 |
| Zimmer | 5 |
| Garage/Stellplatz | Garage |
| Anzahl Garage/Stellplatz | 2 |
Kosten
| Kaufpreis |
597.000 € |
|---|---|
| Provision |
3,57% inkl. MwSt. Bei der Vermittlung von Kaufverträgen über Wohnungen und Einfamilienhäuser fällt die Provisionszahlung unter das Gesetz über die gleichmäßige Verteilung der Maklerkosten. Demnach ist die Provision zu jeweils gleichen Teilen durch den Käufer und den Verkäufer der Immobilie zu zahlen. Die Provision inklusive MwSt. ist mit Vertragsabschluss fällig. |
Finanzierungsrechner:
Kaufpreis:
600.000 €
Eigenkapital:
600.000 €
Monatliche Rate
0 €
Effektiver Jahreszins
0 %
Sollzinsbindung
10 Jahre
Bausubstanz & Energieausweis
| Baujahr | 1972 |
|---|---|
| Heizungsart | Elektro-Heizung |
| Wesentliche Energieträger | Strom |
| Energieausweis | liegt vor |
| Energieausweistyp | Bedarfsausweis |
Beschreibung des Objekts
Ausstattung
🚆 Familienfreundliche Lage in Eschborn/Niederhöchstadt mit hervorragender Anbindung nach Frankfurt (S-Bahn & Autobahn)
💡 Lichtdurchflutetes Wohnzimmer mit Echtholzparkett und bodentiefen Fenstern
🌳 Sonniger Südwest-Garten mit Terrasse
Lage
Das Haus liegt in einem attraktiven familienfreundlichen Wohngebiet. Die Kindergärten und die Grundschule sind fußläufig zu erreichen. Es gibt eine Vielzahl an gepflegten Kinderspielplätzen vor Ort. Eine Pizzeria, ein Supermarkt, ein Optiker sowie das beliebte Eiscafé befinden sich nur 250 Meter die Straße hinunter und sind bequem zu Fuß erreichbar. Zusätzlich gibt es den begrünten Skulpturenpark, der ein kleines Sportfeld und abwechslungsreiche Kunstfiguren beheimatet. Zusammen mit dem Schwimmbad, den Tennisplätzen und der modernen Sportanlage (Fußball, Leichtathletik, Kampfsportarten, Fitnessstudio, etc.) bietet der Standort spannende Aktivitäten zum Ausgleich an. Des weiteren organisiert die Stadt zusammen mit den örtlichen Vereinen immer wieder Feste und Veranstaltungen. Von Juni bis August ist zum Beispiel die kostenlose Open-Air-Reihe namens Summertime ein beliebtes Ziel, dass durch seine Biergartenatmosphäre und Livemusik beeindruckt.
Die Verkehrsanbindung zu Frankfurt, dem Taunus und den umliegenden Kommunen ist hervorragend. Es fahren alle 15 Minuten Züge von der nahegelegene S-Bahnstation (Niederhöchstadt Bhf) in die Frankfurter Innenstadt. Die Autobahnauffahrten (A66, A5 und A3) sind durch die Schnellstraße (L3005) gut zu erreichen. Die Frankfurter Innenstadt und der Frankfurter Flughafen ist in nur 20 Minuten zu erreichen.
#english version
The house is located in an attractive family-friendly residential area. The kindergartens and the elementary school are within walking distance. There are a variety of well-maintained children's playgrounds on site. A pizzeria, a supermarket, an optician, and the popular ice cream parlor are just 250 meters down the street and within easy walking distance. In addition, there is the landscaped sculpture park, which is home to a small sports field and varied art figures. Together with the swimming pool, tennis courts and modern sports facilities (soccer, athletics, martial arts, gym, etc.), the site offers exciting activities for balance. Furthermore, the city, together with the local clubs, always organizes festivals and events. From June to August, for example, the free open-air series called Summertime is a popular destination that impresses with its beer garden atmosphere and live music.
The transport connections to Frankfurt, the Taunus and the surrounding communities are very good. Due to the nearby S-Bahn station, trains leave every 15 minutes to Frankfurt city center. The freeway accesses (A66, A5 and A3) are easy to reach via the expressway (L3005). Thus, you can reach the Frankfurt airport and the Frankfurt city center within a 20-minute drive.
Grundriss
Erdgeschoss
>
>
1. Obergeschoss
>
>
Keller
>
>
Adresse
65760 Eschborn
Interessante Orte
Preis- und Lageinformationen
Preistrend für Bestandsimmobilien in Eschborn