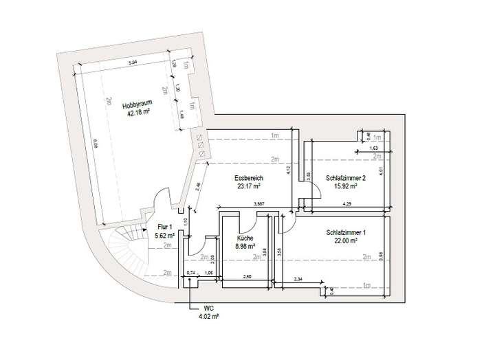
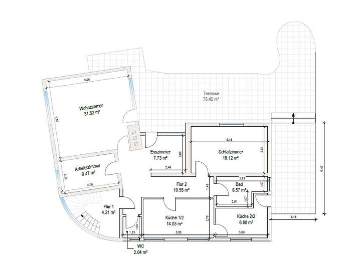
Zum Verkauf steht ein großzügiges Einfamilienhaus mit bis zu zwei Einliegerwohnungen, das auch als Zweifamilienhaus genutzt werden kann, in Wiesbaden-Naurod. Dieses Haus eignet sich hervorragend für Familien mit großem Platzbedarf oder bietet eine ideale Kombination aus Wohnen und Arbeiten. Beim Betreten gelangen Sie in das helle Treppenhaus, das mit einer eleganten geschwungenen Marmortreppe beeindruckt. Im Erdgeschoss befinden sich ein großzügiger Raum und drei kleinere Zimmer, dazu eine Küche, ein Duschbad sowie ein separates Gäste-WC. Auch die Haustechnik und Abstellräume sind auf dieser Ebene untergebracht. Über die Garage haben Sie direkten Zugang ins Haus. Das Obergeschoss erreichen Sie über das Treppenhaus, wobei der Wohnbereich durch eine Tür abgetrennt ist. Dank der Hanglage des Hauses können Sie von der Essecke oder dem geräumigen, lichtdurchfluteten Wohnzimmer (über 31 m²) direkt auf die Terrasse und in den Garten gelangen. Ebenfalls auf dieser Ebene befinden sich ein weiteres Zimmer, ideal als Büro oder Kinderzimmer, sowie das Hauptschlafzimmer. Das Tageslichtbad ist mit einer Dusche und Badewanne ausgestattet. Die große Küche mit Einbauküche, der Hauswirtschaftraum und ein separates Gäste-WC runden das Angebot ab. Der gemütliche Garten mit Terrasse ist ein Highlight dieses Hauses. Das Dachgeschoss kann entweder als Erweiterung des Wohnraums oder als separate Einheit genutzt werden. Hier erwarten Sie ein großer Hobbyraum, zwei Schlafzimmer, ein geräumiger Flur, der als Essbereich dienen kann, sowie ein Duschbad. Eine Küche ist ebenfalls vorhanden, die bei Bedarf in ein weiteres Zimmer umgewandelt werden kann. Dieses Haus bietet vielseitige Nutzungsmöglichkeiten und viel Platz für individuelle Wohnwünsche.
Freistehendes EFH mit Einliegerwohnung in Wiesbaden-Naurod
65207 Wiesbaden
Die vollständige Adresse der Immobilie erhalten Sie vom Anbieter.
Auf Karte anzeigen
Die vollständige Adresse der Immobilie erhalten Sie vom Anbieter.

Finanzierungszertifikat
In nur zwei Minuten zu Ihrem persönlichen Finanzierungszertifkat.
Infos
Haustyp | Einfamilienhaus |
---|---|
Wohnfläche ca. | 318 m2 |
Nutzfläche | 46,35 m2 |
Grundstücksfläche | 424 m2 |
Bezugsfrei ab | nach Vereinbarung |
Zimmer | 10 |
Schlafzimmer | 8 |
Badezimmer | 3 |
Anzahl Garage/Stellplatz | 1 |
Kosten
Kaufpreis |
779.000 € |
---|---|
Provision |
3,57 % Die Provision ist verdient und fällig bei Unterzeichnung des Kaufvertrages. |
Finanzierungsrechner:
Kaufpreis:
600.000 €
Eigenkapital:
600.000 €
Monatliche Rate
0 €
Effektiver Jahreszins
0 %
Sollzinsbindung
10 Jahre
Bausubstanz & Energieausweis
Baujahr | 1974 |
---|---|
Objektzustand | Gepflegt |
Heizungsart | Zentralheizung |
Wesentliche Energieträger | Gas |
Energieausweis | liegt vor |
Energieausweistyp | Bedarfsausweis |
Energieverbrauchskennwert | 224,8 kWh/(m²*a) |
Energieeffizienzklasse | G |
224,8
kWh/(m²*a)
Energieeffizienzklasse G
- A+
- A
- B
- C
- D
- E
- F
- G
- H
- 0
- 25
- 50
- 75
- 100
- 125
- 150
- 175
- 200
- 225
- >250
Beschreibung des Objekts
Ausstattung
+ 1-2 Familienhaus + Garten mit Terrasse + Garage + gute Aufteilung der Räume + gefragte Wohnlage
Lage
Die Immobilie befindet sich im charmanten Stadtteil Naurod, einem der nördlichsten Stadtteile von Wiesbaden. Naurod zeichnet sich durch seine idyllische und naturnahe Lage aus, die vor allem für Familien und Ruhesuchende attraktiv ist. Der Stadtteil liegt eingebettet im Taunus und bietet zahlreiche Wander- und Erholungsmöglichkeiten direkt vor der Haustür. Gleichzeitig sind die Anbindungen an die Wiesbadener Innenstadt sowie an das Rhein-Main-Gebiet ideal. Naurod ist gut an das öffentliche Verkehrsnetz angebunden. Die Wiesbadener Innenstadt ist in etwa 15 Minuten mit dem Auto zu erreichen, und über die A3 und A66 hat man schnelle Verbindungen nach Frankfurt, Mainz und den Flughafen Frankfurt. Auch Busverbindungen bieten regelmäßige und unkomplizierte Fahrten in die Innenstadt. Trotz der ruhigen Lage bietet Naurod eine gute Infrastruktur. In der unmittelbaren Umgebung befinden sich Einkaufsmöglichkeiten für den täglichen Bedarf, darunter Supermärkte, Bäckereien und Apotheken. Die Immobilie in Wiesbaden-Naurod bietet eine perfekte Kombination aus naturnahem Wohnen und guter Erreichbarkeit der Wiesbadener Innenstadt und des Rhein-Main-Gebiets. Besonders Familien und Naturliebhaber profitieren von der ruhigen und grünen Umgebung sowie der dennoch sehr guten Anbindung an das städtische Leben.
Sonstige Angaben
Alle in diesem Exposé enthaltenen Angaben und Informationen wurden mit Sorgfalt zusammengestellt und auf ihre Korrektheit überprüft. Bei allen Texten, Daten, Diagrammen, Prognosen, Meinungen oder sonstigen Informationen bleiben Irrtümer vorbehalten. Keine Garantie für die Richtigkeit oder Vollständigkeit der Angaben. Provisionshinweis: Die Provision ist verdient und fällig bei Unterzeichnung des Kaufvertrages und versteht sich inkl. der gesetzlichen MwSt.
Grundriss
GR DG
>

GR EG
>

GR OG
>

Adresse
65207 Wiesbaden
Interessante Orte
Preis- und Lageinformationen
Preistrend für Bestandsimmobilien in Naurod