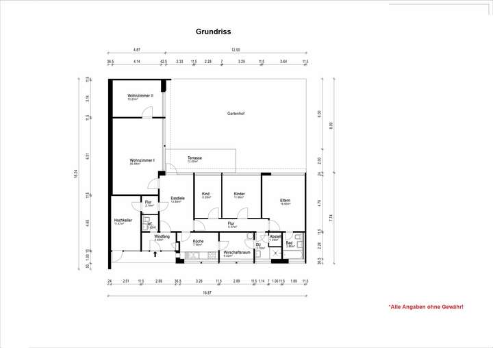
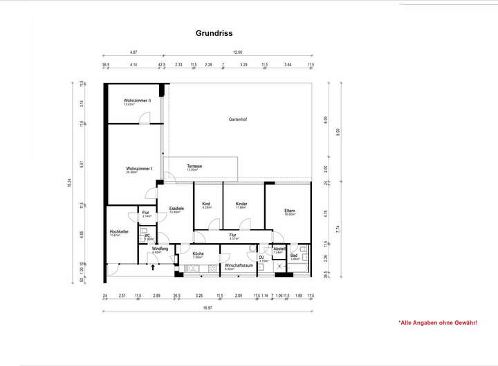
Bei diesem 1964 in Massivbauweise errichteten Atrium-Bungalow handelt es sich um eine sehr begehrte Immobilie. Dieses großzügig geschnittene Einfamilienhaus bietet mit rund 132 m² Wohnfläche ein ideales Zuhause für Familien oder Senioren. Die durchdachte Raumaufteilung verbindet Komfort, Funktionalität und ein angenehmes Wohngefühl. Der Eingangsbereich mit Windfang und Gäste-WC führt in die helle Essdiele, die den Mittelpunkt des Hauses bildet. Von hier aus sind alle wesentlichen Räume zugänglich. Das große Wohnzimmer mit einem durch einen Bogendurchbruch angrenzendem weiteren Zimmer bietet viel Platz für gemeinsame Stunden und ermöglicht unterschiedliche Wohnkonzepte. Durch den direkten Zugang zur Terrasse im Essbereich, zum geschützten Gartenhof entsteht ein schöner Übergang zwischen Innen- und Außenbereich. Die Küche ist praktisch geschnitten und bietet Platz für eine familiengerechte Ausstattung. Ein Hauswirtschaftsraum sorgt für zusätzlichen Stauraum und erleichtert den Alltag. Das Haus verfügt über insgesamt drei Schlafzimmer: ein Elternschlafzimmer sowie zwei Kinderzimmer. Damit bietet es ausreichend Rückzugsräume für alle Familienmitglieder. Ergänzt wird das Raumangebot durch ein Tageslichtbad mit Badewanne, ein separates Duschbad sowie einen kleinen Abstellraum. Der Hochkeller mit ca. 12 m² schafft zusätzlichen Nutzraum und ist ideal für Vorräte, Hobbys oder als Stauraum. Highlights des Hauses: Familien- und Senioren Grundriss mit drei Schlafzimmern Zwei Bäder (Badewanne & Dusche) plus separates Gäste-WC Großzügiger Wohnbereich mit zwei Wohnzimmern Terrasse und geschützter Gartenhof für entspannte Stunden im Freien Praktischer Hauswirtschaftsraum und Abstellmöglichkeiten Zusätzlicher Nutzraum durch Hochkeller Dieses Objekt verbindet durch seine clevere Aufteilung und die ruhige Lage perfekte Bedingungen für ein behagliches Familienleben.
"Heller Atrium-Bungalow mit zwei Bädern und einer Garage"
28325 Bremen
Die vollständige Adresse der Immobilie erhalten Sie vom Anbieter.
Auf Karte anzeigen
Die vollständige Adresse der Immobilie erhalten Sie vom Anbieter.

Finanzierungszertifikat
In nur zwei Minuten zu Ihrem persönlichen Finanzierungszertifkat.
Infos
Haustyp | Bungalow |
---|---|
Etagenzahl | 1 |
Wohnfläche ca. | 132 m2 |
Nutzfläche | 12 m2 |
Grundstücksfläche | 274 m2 |
Zimmer | 6 |
Schlafzimmer | 3 |
Badezimmer | 2 |
Garage/Stellplatz | Garage |
Anzahl Garage/Stellplatz | 1 |
Kosten
Kaufpreis |
340.000 € |
---|---|
Provision |
2,98 % (inkl. 19 % MwSt.) vom beurkundeten Kaufpreis, jeweils vom Käufer und Verkäufer |
Finanzierungsrechner:
Kaufpreis:
600.000 €
Eigenkapital:
600.000 €
Monatliche Rate
0 €
Effektiver Jahreszins
0 %
Sollzinsbindung
10 Jahre
Bausubstanz & Energieausweis
Baujahr | 1964 |
---|---|
Objektzustand | Gepflegt |
Heizungsart | Fernwärme |
Wesentliche Energieträger | Fernwärme-Dampf |
Beschreibung des Objekts
Ausstattung
- Abstellraum, Kabel TV, seniorengerechtes Wohnen, Wasch-/Trockenraum - Einbauküche - Bad mit Dusche ( Regendusche ), Bad mit Fenster, Bad mit Wanne, Gäste-WC - Fliesen, Stäbchenparkett - Tresor (kann Ihnen eine Vergünstigung bei der Hausratversicherung verschaffen) - Gartenterrasse ( Süd-Ost Ausrichtung ) - Kein Keller - Einkaufsmöglichkeit, Kindergarten, öffentl. Verkehrsmittel, ruhige Lage, Schule, Wohngebiet - Massiv - Kunststofffenster - Flachdach - elektrische Grundwasserpumpe im Garten
Lage
Die Züricher Straße 94 befindet sich in Bremen-Osterholz, einem ruhigen und familienfreundlichen Stadtteil, der sich durch viel Grün und eine angenehme Nachbarschaftsatmosphäre auszeichnet. Hier profitieren Familien von einer hervorragenden Infrastruktur und kurzen Wegen. Einkauf & Versorgung Supermärkte, Bäckereien und kleinere Geschäfte für den täglichen Bedarf liegen in der Nähe. Das große Weserpark-Center mit einem vielfältigen Angebot an Einkaufsmöglichkeiten, Restaurants, Kino und Freizeitangeboten ist nur wenige Minuten entfernt. Familienfreundlichkeit Kindergärten, Grundschulen und weiterführende Schulen sind schnell erreichbar – teilweise sogar fußläufig oder mit dem Fahrrad. Mehrere Spielplätze, Sportvereine und Freizeitangebote in der Umgebung machen das Viertel besonders attraktiv für Familien mit Kindern. Natur & Erholung Grünflächen und Parks in der Umgebung laden zum Spazieren, Radfahren oder Entspannen ein. Besonders beliebt sind der Osterholzer Park sowie der nahe gelegene Mahndorfer See, der an warmen Tagen für Abkühlung sorgt und das Freizeitangebot perfekt ergänzt. Verkehrsanbindung Die Anbindung an den öffentlichen Nahverkehr ist ausgezeichnet. Bus- und Straßenbahnlinien verbinden den Stadtteil in kurzer Zeit mit der Bremer Innenstadt. Über die A27 sind auch Ziele außerhalb Bremens schnell erreichbar. Fazit Die Lage vereint ruhiges, grünes Wohnen mit einer sehr guten Infrastruktur – ein idealer Lebensmittelpunkt für Familien, die eine gute Versorgung, kurze Wege und vielfältige Freizeitmöglichkeiten schätzen.
Sonstige Angaben
Dieser grundsolide Bungalow bietet durch seine bestehende Substanz viele Gestaltungsmöglichkeiten. Durch eine Sanierung bietet dieser Atrium-Bungalow zahlreiche Möglichkeiten, sein volles Potenzial zu entfalten. Mit vergleichsweise einfachen Maßnahmen wie der Modernisierung von Böden, Wänden und Decken lässt sich schnell eine zeitgemäße Wohnatmosphäre schaffen. Auch die Bäder können durch neue Sanitärobjekte und helle Fliesen deutlich aufgewertet werden. Der Grundriss erlaubt zudem kleine Anpassungen: So lässt sich die Küche zur Essdiele öffnen oder die beiden Wohnzimmer flexibel nutzen – als großzügiger Wohnbereich, Homeoffice oder Gästezimmer. Besonders attraktiv ist die Möglichkeit, einzelne Fenster durch bodentiefe Elemente zu ersetzen. Dadurch gelangt mehr Tageslicht ins Haus und es entsteht ein direkter Bezug zum geschützten Gartenhof, der mit einer Neugestaltung von Terrasse und Begrünung zu einem privaten Rückzugsort im Freien wird. Schon mit überschaubarem Aufwand entsteht so ein modernes und familienfreundliches Zuhause, das durch seinen besonderen Atrium-Charakter besticht. Der Energieausweis für dieses Objekt ist in der Bearbeitung und liegt bei der Besichtigung vor. Einige der hier verwendeten Fotos sind KI generiert! Alle aufgeführten Angaben sind ohne Gewähr und beziehen sich auf die Auskünfte der Eigentümer.
Grundriss
Grundriss mit Maßband_bearbeit
>

Adresse
28325 Bremen
Interessante Orte
Preis- und Lageinformationen
Preistrend für Bestandsimmobilien in Ellenerbrok-Schevemoor