Dieses freistehende Einfamilienhaus wurde um 1935 errichtet und steht auf einem ca. 879 m² großen, eingewachsenen Grundstück in ruhiger Lage. Die Wohnfläche von ca. 136 m² verteilt sich auf zwei Etagen mit insgesamt fünf Zimmern. Das Erdgeschoss überzeugt durch großzügige Fensterflächen, die den Blick ins Grüne freigeben und für angenehmes Tageslicht sorgen. Der Wohnbereich bietet einen direkten Zugang zur Terrasse und schafft eine natürliche Verbindung zum Garten. Eine geschwungene Holztreppe führt in das Obergeschoss, wo sich weitere Räume mit Blick in den Garten befinden. Charakteristische Elemente wie hohe Decken, Dielenböden und originale Türen sind erhalten und prägen das Haus bis heute. Die Immobilie befindet sich in einem sanierungsbedürftigen Zustand. Für Käuferinnen und Käufer mit Sinn für historische Bausubstanz und dem Wunsch nach individueller Gestaltung bietet sich hier die Möglichkeit, ein Altbauhaus grundlegend neu zu denken. Die bestehende Raumstruktur kann flexibel interpretiert und an moderne Ansprüche angepasst werden. Das Grundstück ist großzügig, ruhig gelegen und durch alten Baumbestand geprägt. Eine Garage ist vorhanden. Die gute Aufteilung bietet bereits heute eine solide Grundlage für verschiedene Wohnkonzepte. Durchdachte Modernisierungen lassen sich hier mit dem ursprünglichen Charme des Hauses verbinden. Eine Besichtigung vor Ort vermittelt den besten Eindruck von der Atmosphäre und dem Potenzial dieser besonderen Immobilie.
Historischer Altbau auf traumhaft eingewachsenem Grundstück
22559 Hamburg
Die vollständige Adresse der Immobilie erhalten Sie vom Anbieter.
Auf Karte anzeigen
Die vollständige Adresse der Immobilie erhalten Sie vom Anbieter.
Finanzierungszertifikat
In nur zwei Minuten zu Ihrem persönlichen Finanzierungszertifkat.
Infos
| Haustyp | Einfamilienhaus |
|---|---|
| Wohnfläche ca. | 136 m2 |
| Nutzfläche | 54 m2 |
| Grundstücksfläche | 879 m2 |
| Zimmer | 5 |
| Schlafzimmer | 3 |
| Badezimmer | 1 |
| Garage/Stellplatz | Garage |
| Anzahl Garage/Stellplatz | 1 |
Kosten
| Kaufpreis |
790.000 € |
|---|---|
| Provision |
3.57 % inkl. gesetzl. MwSt. |
Finanzierungsrechner:
Kaufpreis:
600.000 €
Eigenkapital:
600.000 €
Monatliche Rate
0 €
Effektiver Jahreszins
0 %
Sollzinsbindung
10 Jahre
Bausubstanz & Energieausweis
| Baujahr | 1935 |
|---|---|
| Wesentliche Energieträger | Gas |
| Energieausweis | liegt zur Besichtigung vor |
Beschreibung des Objekts
Ausstattung
Blick ins Grüne
Dielenboden
Kamin
Lage
Dieses Einfamilienhaus befindet sich in familienfreundlicher Lage, ruhig gelegen, wenige Minuten fußläufig vom Rissener Zentrum und unmittelbar neben dem Schönspark. Rissen ist Hamburgs westlichster, aufstrebender Elbvorort. Nicht beeinträchtigt vom Flugverkehr liegt diese Wohngegend zwischen dem Forst Klövensteen mit ausgedehnten Wanderwegen, dem Wildpark und dem Elbufer. Der Ortskern von Rissen bietet eine Vielzahl von Geschäften des täglichen Bedarfs, die auch hohen Ansprüchen gerecht werden. EDEKA, Budni, Penny, REWE und Alnatura gewähren neben den vielen Bäckereien und kleinen Fachgeschäften eine große Auswahl an Nahversorgungsmöglichkeiten. Abgerundet durch Haushaltswaren, Apotheken, viele Fachärzte, Cafés und Restaurants bleiben hier wenige Wünsche offen. Die vielen Kitas in Rissen erreichen Sie von Ihrem neuen zu Hause in maximal fünf Minuten Fußweg. Die Grundschule Marschweg, wie auch die Stadtteilschule und das Gymnasium Rissen mit allen Schulzweigen, erreichen Ihre Kinder ebenfalls in wenigen Gehminuten. Diverse Angebote für eine aktive Freizeitgestaltung bietet der Rissener Sportverein mit Angeboten wie Fußball, Hockey Tennis und Handball. In unmittelbarer Nähe finden Sie einen kleinen privaten Reitstall, die Ponywaldschänke zum Ponyreiten und für den ambitionierten Reiter den Pensionsstall Birkenhof. Durch den S - Bahnhof Rissen ist eine gute Verkehrsanbindung an die Hamburger Innenstadt gegeben. Altona erreichen Sie in weniger als 30 Minuten. Mit dem PKW ist die Innenstadt in ca. 35 Minuten und der Flughafen in ca. 45 Minuten erreichbar.
Sonstige Angaben
Der Makler-Vertrag mit uns kommt durch die Bestätigung der Inanspruchnahme unserer Maklertätigkeit in Textform zustande, wie z.B. insbesondere die Unterschrift des Suchkundenvertrages und/oder des Objekt-Exposés. Die Höhe der Courtage richtet sich nach den seit dem 23.12.2020 in Kraft getretenen gesetzlichen Regelungen zur Teilung der Maklercourtage. Hiernach wird die Courtage regelmäßig für beide Parteien (Eigentümer und Käufer) in Höhe von 3 % zuzüglich Umsatzsteuer in jeweils geltender Höhe, derzeit also insgesamt 7,14 % des Kaufpreises einschließlich ges. Umsatzsteuer bei notariellem Vertragsabschluss verdient und fällig. Die Höhe der Bruttocourtage unterliegt einer Anpassung bei Steuersatzänderung. Grunderwerbsteuer, Notar- und Gerichtskosten trägt der Käufer. Alle Angaben sind ohne Gewähr und basieren ausschließlich auf Informationen, die uns von unserem Auftraggeber übermittelt wurden. Wir übernehmen keine Gewähr für die Vollständigkeit, Richtigkeit und Aktualität dieser Angaben. Zwischenverkauf bleibt vorbehalten. Sollte das von uns nachgewiesene Objekt bereits bekannt sein, teilen Sie uns dieses bitte unverzüglich mit. Die Weitergabe dieses Exposees an Dritte ohne unsere Zustimmung löst gegebenenfalls Courtage- bzw. Schadensersatzansprüche aus. Im Übrigen gelten die Allgemeinen Geschäftsbedingungen für die Rechtsbeziehung zwischen Ihnen und der Engel & Völkers Immobilien Deutschland GmbH (Lizenznehmer der Engel & Völkers Residential GmbH).
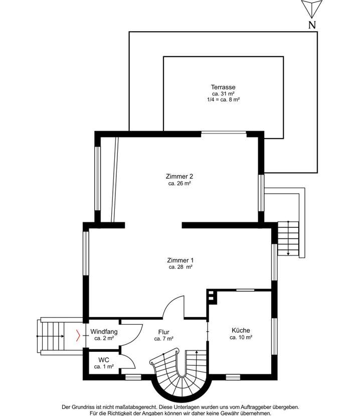
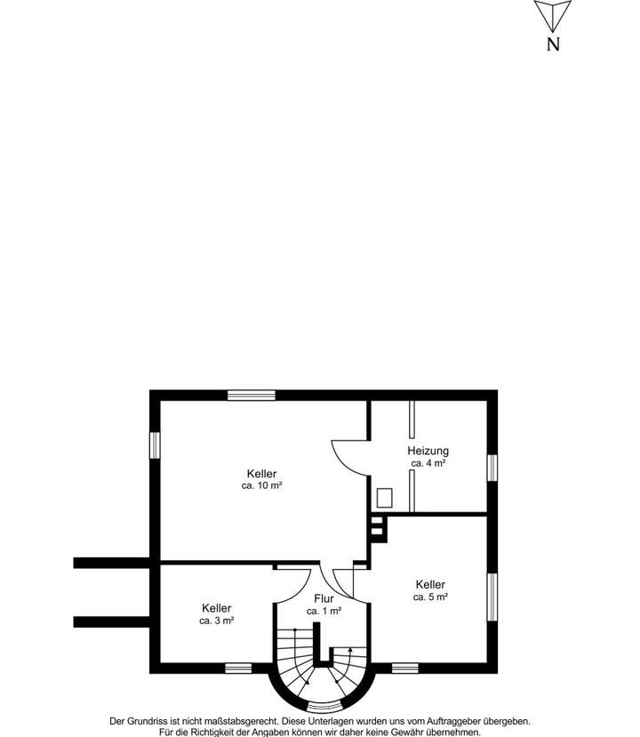
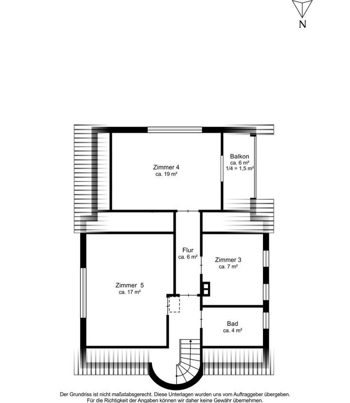
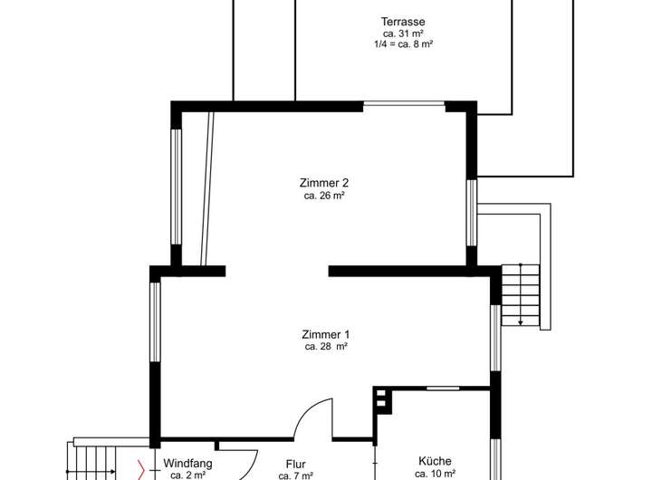
Grundriss
Erdgeschoss
>
>
Dachgeschoss
>
>
Keller
>
>
Adresse
22559 Hamburg
Interessante Orte
Preis- und Lageinformationen
Preistrend für Bestandsimmobilien in Rissen