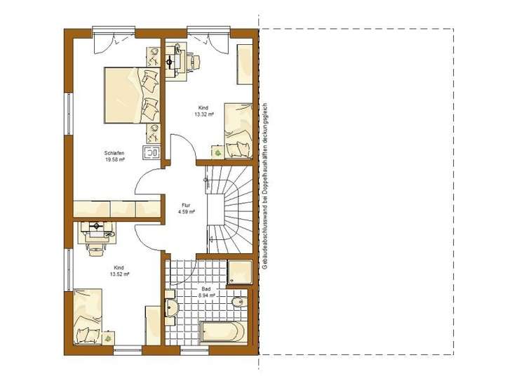
Das Doppelhaus Salerno setzt auf eine zeitlose Formensprache, verbunden mit aktuellen Architekturelementen wie einem Flachdachgiebel und modernen Fassadenapplikationen. Ein flexibel nutzbares Studio erweitert das Platzangebot des bewährten Raumprogrammes um fast 50 m². Diese wertvolle Raumreserve können Sie auf vielfältige Weise nutzen: Relax- und Wellnessbereich, für Hobbys, Gäste, Atelier - Sie haben die freie Auswahl. Im Obergeschoss befinden sich neben den beiden Kinderzimmern auch das Elternschlafzimmer und das gemeinsame Familienbad. Eine Ebene tiefer, im Erdgeschoss, wartet der Wohnraum auf Sie.
KfW-geförderte Doppelhaushälfte in Wiesbaden-Kloppenheim
65207 Wiesbaden
Die vollständige Adresse der Immobilie erhalten Sie vom Anbieter.
Auf Karte anzeigen
Die vollständige Adresse der Immobilie erhalten Sie vom Anbieter.

Finanzierungszertifikat
In nur zwei Minuten zu Ihrem persönlichen Finanzierungszertifkat.
Infos
Haustyp | Doppelhaushaelfte |
---|---|
Etagenzahl | 2 |
Wohnfläche ca. | 174 m2 |
Grundstücksfläche | 421 m2 |
Bezugsfrei ab | 2026 |
Zimmer | 5 |
Schlafzimmer | 4 |
Badezimmer | 1 |
Kosten
Kaufpreis |
809.999 € |
---|
Finanzierungsrechner:
Kaufpreis:
600.000 €
Eigenkapital:
600.000 €
Monatliche Rate
0 €
Effektiver Jahreszins
0 %
Sollzinsbindung
10 Jahre
Bausubstanz & Energieausweis
Baujahr | 2026 |
---|---|
Bauphase | Haus in Planung (projektiert) |
Qualität der Austattung | Gehoben |
Beschreibung des Objekts
Ausstattung
Die vorgestellte Projektierung umfasst Leistungen entsprechend der Bau- und Leistungsbeschreibung "CONCEPT fast fertig" als Grundlage für die weitere Planung und Kalkulation. In definierten Ausbaustufen werden hier umfangreiche Leistungen dargestellt - übersichtlich und transparent. Treffen Sie Ihre ganz persönliche Wahl: vom Ausbauhaus über technikfertige oder fast fertige Ausstattung bis zum schlüsselfertigen Haus. Alles in bewährter RENSCH-HAUS Qualität: ● Planungs- und Ingenieurleistungen (u.a. Statik, Nachweise für die Beantragung von Fördermitteln) ● Ausstattungswelt mit großer Auswahl u.a. an Sanitärobjekten, Fliesen und Bodenbelägen von deutschen Markenherstellern ● Produktion ausschließlich in Deutschland ● Handwerkstradition aus Überzeugung - als Familienunternehmen seit über 145 Jahren in fünfter Generation ● Lieferung und Montage (u.a. Transport, Kran, Gerüst, Baustellen-WC) ● Effizienzhaus 40 - serienmäßig mit unserem Heiz- und Lüftungssystem; eine Nachhaltigkeitszertifizierung nach QNG bieten wir Ihnen gerne an ● Sommerlicher Hitzeschutz durch hohe Speicherfähigkeit der Konstruktion ● Diffusionsoffene Außenwand, gefertigt aus natürlichen Rohstoffen ● Gemeinsame Hausabnahme und Schlüsselübergabe zusammen mit unseren Bauherren ● Alles aus einer Hand. Auf Wunsch mit Baunebengewerken (Keller, Carport, Garage) ● 30 Jahre Garantie auf die Tragkonstruktion und fünf Jahre Gewährleistung mit kostenfreiem Kundendienst
Lage
Kloppenheim, ein charmanter Ortsteil von Wiesbaden, vereint dörfliches Flair mit der Nähe zur Stadt. Umgeben von Feldern und Weinbergen bietet der Stadtteil Ruhe und Natur direkt vor der Haustür - ideal für alle, die dem Trubel entkommen und trotzdem schnell in der Innenstadt oder auf der A3 sein möchten. Die gewachsene Nachbarschaft, gute Anbindung, Kindergärten, Vereine und der hohe Freizeitwert machen Kloppenheim zu einem echten Wohlfühlort - perfekt für Familien, Ruhesuchende und alle, die Wert auf Lebensqualität legen.
Sonstige Angaben
Im ausgewiesenen Gesamtpreis enthalten sind das Grundstück, eine eventuell anfallende Maklerprovision, die Bodenplatte sowie das Haus gemäß der Bau- und Leistungsbeschreibung. Dargestellte Anbauteile sind teilweise Sonderausstattung und optional gegen Aufpreis erhältlich. Nicht enthalten sind die üblichen Baunebenkosten (z. B. Hausanschlüsse, Außenanlagen, Genehmigungsgebühren) sowie die Kaufnebenkosten (Grunderwerbsteuer, Notar- und Grundbuchkosten). Das dargestellte Haus ist ein Vorschlag - bei RENSCH-HAUS planen wir grundsätzlich individuell, frei und flexibel, ganz nach Ihren Wünschen - wie beim Architekten. Die finale Ausführung erfolgt individuell und kann bei Bedarf noch an die Gegebenheiten des Grundstücks angepasst werden. Die Angaben zum dargestellten Baugrundstück beruhen auf Angaben des Eigentümers. Angebot und Zwischenverkauf sind freibleibend. Die Planung der modernen Doppelhaushälfte erfolgt auf einem noch ungeteilten Grundstück. Der Grundstückspreis i.H.v. 390.000 EUR plus 3,57 % Courtage inkl. MwSt. bezieht sich auf den anteiligen Grundstückswert für eine Haushälfte. Eine Teilung des Grundstücks ist grundsätzlich denkbar, muss jedoch noch rechtlich und baulich geprüft werden. Alternativ ist auch ein gemeinschaftlicher Erwerb mit einer zweiten Partei möglich - ideal für Familien, Freunde oder Baupartner! Sollte das angebotene Grundstück nicht zu Ihren Vorstellungen passen, unterstützen wir Sie bei der Suche nach einer passenden Alternative. Wir beraten Sie gerne.
Grundriss
Grundriss
>

Grundriss
>

Grundriss
>

Adresse
65207 Wiesbaden
Interessante Orte
Preis- und Lageinformationen
Preistrend für Bestandsimmobilien in Kloppenheim