In einer der besten Wohnlagen Bad Homburgs, unmittelbar am Hardtwald, befindet sich diese freistehende Villa auf einem ca. 740 m² großen, gepflegten Südgrundstück. Die im Jahr 1975 errichtete, zweigeschossige Immobilie überzeugt durch ihre ruhige Lage, eine durchdachte Raumaufteilung und zahlreiche Ausstattungsdetails.
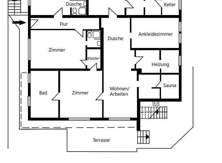
Der großzügige Wohn- und Essbereich mit bodentiefen Fenstern öffnet sich zur ca. 87 m² großen Südterrasse – ideal für entspannte Stunden im Freien. Ein Kaminzimmer mit Bibliothek schafft einen zusätzlichen Rückzugsraum. Insgesamt bietet die Villa vier Schlafzimmer mit en Suite Bädern, ein Gäste- bzw. Arbeitszimmer im Erdgeschoss sowie ein weiteres Arbeits-/Wohnzimmer im Gartengeschoss. Ergänzt wird das Raumangebot durch eine Sauna, einen Fitnessbereich und diverse Einbauschränke bzw. eine Ankleide.
Technisch ist das Haus u.a. mit elektrischen Jalousien, einer Alarmanlage mit Bewegungsmeldern sowie einer großen Markise ausgestattet. Eine Doppelgarage und zusätzliche Stellplätze vor dem Haus bieten ausreichend Platz für Fahrzeuge.
Der Haupteingang erfolgt über einen seitlich gelegenen Zugang. Die Einliegerwohnung im Gartengeschoss verfügt über einen separaten Eingang mit eigener Adresse. Die Villa ist im Grundbuch in zwei Wohneinheiten eingetragen und kann bei Bedarf auch getrennt genutzt werden.
Eine bauliche Aufstockung ist grundsätzlich möglich – weitere Informationen dazu erhalten Sie gerne auf Anfrage.
Wohnen am Hardtwald • charmante Villa mit Traumterrasse in bester Lage von Bad Homburg
61350 Bad Homburg vor der Höhe
Die vollständige Adresse der Immobilie erhalten Sie vom Anbieter.
Auf Karte anzeigen
Die vollständige Adresse der Immobilie erhalten Sie vom Anbieter.
Finanzierungszertifikat
In nur zwei Minuten zu Ihrem persönlichen Finanzierungszertifkat.
Infos
| Haustyp | Villa |
|---|---|
| Wohnfläche ca. | 330 m2 |
| Nutzfläche | 140 m2 |
| Grundstücksfläche | 740 m2 |
| Zimmer | 9 |
| Schlafzimmer | 4 |
| Badezimmer | 4 |
| Garage/Stellplatz | Garage |
| Anzahl Garage/Stellplatz | 2 |
Kosten
| Kaufpreis |
0 € |
|---|---|
| Provision |
3,57% inkl. 19% MwSt. Der Käufer zahlt im Erfolgsfall an die Firma BESTLAGE360 - COBIC HOMES eine Käufer-Maklerprovision in Höhe von 3,57% einschl. 19% Mehrwertsteuer. Die Provision errechnet sich aus dem beurkundeten Kaufpreis. |
Finanzierungsrechner:
Kaufpreis:
600.000 €
Eigenkapital:
600.000 €
Monatliche Rate
0 €
Effektiver Jahreszins
0 %
Sollzinsbindung
10 Jahre
Bausubstanz & Energieausweis
| Baujahr | 1975 |
|---|---|
| Objektzustand | Gepflegt |
| Qualität der Austattung | Luxus |
| Heizungsart | Fußbodenheizung |
| Wesentliche Energieträger | Strom |
Beschreibung des Objekts
Ausstattung
Extras:
• ERSTKLASSIGE Wohnlage in Bad Homburg (Top-Lage)
• Aufstocken möglich (Näheres auf Anfrage)
• Großer lichtdurchfluteter Wohn-/Essbereich
• Großzügig angelegte Fensterfront im Wohn-/Essbereich
• Schönes Kaminzimmer/Bibliothek
• Hübsch angelegtes Gartengrundstück
• Einzigartige Südterrasse (ca. 87 m² groß)
• Große Markise
• Bodentiefe Fenster
• Alarmanlage mit Bewegungsmeldern
• Elektrische Jalousien
• Diverse Einbauschränke/Ankleide
• 4 Bäder (en Suite) + 1 Gäste-WC
• Gäste/Arbeitszimmer im EG
• 4 Schlafzimmer mit en Suite Bädern
• Arbeits/Wohnzimmer im Gartengeschoss
• Sauna und Fitnessraum
• Doppelgarage sowie weitere PKW-Stellplätze vorm Haus
u.v.a.m.
Lage
Bad Homburg v. d. Höhe ist eine der beliebtesten und begehrtesten Wohnorte im ganzen Rhein-Main Gebiet. Die Verkehrsanbindung in die Frankfurter Innenstadt ist optimal durch die Anbindung an die A661 und A5. Bad Homburg ist umgeben von dem wunderschönen Naturpark Hochtaunus, der zu zahlreichen Ausflügen in der freien Natur einlädt. Zahlreiche Einkaufs- und Freizeitmöglichkeiten finden sich in unmittelbarer Nähe in der Innenstadt.
Sonstige Angaben
Liebe Eigentümer,
für unsere anspruchsvollen Interessenten sind wir ständig auf der Suche nach exklusiven Wohnungen und Häusern. Sollten Sie sich mit dem Gedanken tragen Ihre Immobilie zu verkaufen oder zu vermieten, freuen wir uns von Ihnen zu hören.
Ihr Ansprechpartner: Edin Cobic
Tel: +49 (0)69/ 788 088 20
Mobil: +49 (0)173/ 98 13 187
E.Cobic@Bestlage360.de
www.Bestlage360.de
Weitere Dokumente
Beste PerformanceWas können wir für Sie tun
Weitere Angebote für Sie
Grundriss
Wir suchen
>
>
Unser Service für Sie
>
>
Instagram
>
>
Wir für Sie
>
>
Villa zu verkaufen
>
>
Grundriss-Erdgeschoss
>
>
Grundriss-Gartengeschoss
>
>
Adresse
61350 Bad Homburg vor der Höhe
Interessante Orte
Preis- und Lageinformationen
Preistrend für Bestandsimmobilien in Bad Homburg vor der Höhe