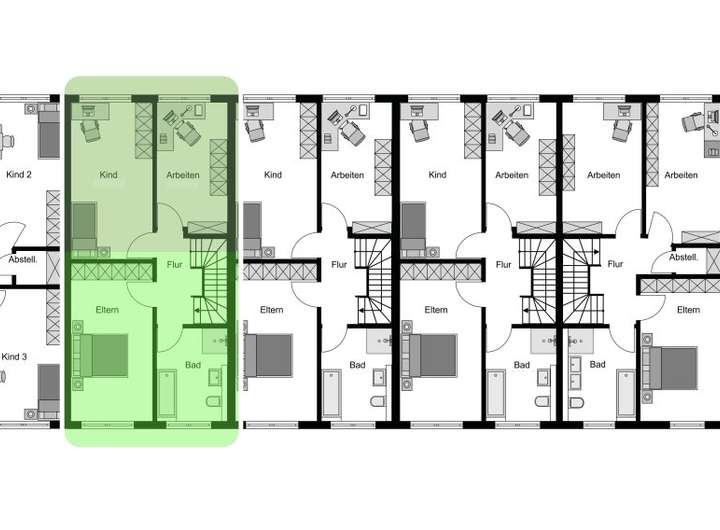
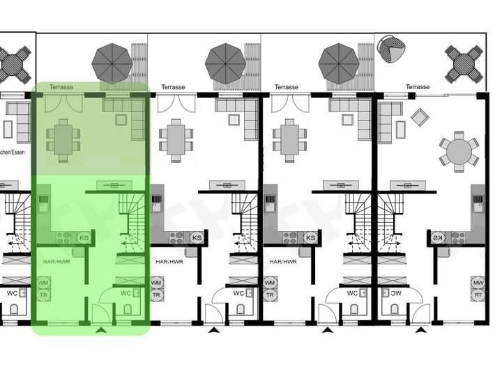
Willkommen in Ihrem neuen Traumhaus - einem individuell projektierten Reihenhaus von STREIF in Langen, Hessen. Dieses moderne, energieeffiziente Gebäude bietet Ihnen und Ihrer Familie auf 160 m² Wohnfläche viel Platz zum Wohlfühlen. Mit insgesamt 6 Zimmern, darunter 5 großzügige Schlafzimmer, 2 luxuriöse Badezimmer und einem zusätzlichen Gäste-WC, ist dieses Haus ideal für Familien und als Investitionsobjekt. Die offene Raumgestaltung und die Möglichkeit, Ihr Traumhaus nach Ihren Wünschen zu gestalten, machen dieses Angebot besonders attraktiv. Die Bauweise orientiert sich an höchsten Standards der Nachhaltigkeit und Energieeffizienz, was eine wertvolle Investition für die Zukunft darstellt. Das STREIF-Bau-Konzept ermöglicht es Ihnen, aktiv am Bau Ihres Hauses mitzuwirken, während die haustechnischen Gewerke von erfahrenen Fachbetrieben übernommen werden.
Energieeffizient & QNG-förderfähig - Ihr neues Reihenhaus in Langen
63225 Langen (Hessen)
Die vollständige Adresse der Immobilie erhalten Sie vom Anbieter.
Auf Karte anzeigen
Die vollständige Adresse der Immobilie erhalten Sie vom Anbieter.
Finanzierungszertifikat
In nur zwei Minuten zu Ihrem persönlichen Finanzierungszertifkat.
Infos
| Wohnfläche ca. | 160 m2 |
|---|---|
| Grundstücksfläche | 275 m2 |
| Zimmer | 6 |
| Schlafzimmer | 3 |
| Badezimmer | 2 |
| Garage/Stellplatz | Carport |
| Anzahl Garage/Stellplatz | 1 |
Kosten
| Kaufpreis |
687.132 € |
|---|
Finanzierungsrechner:
Kaufpreis:
600.000 €
Eigenkapital:
600.000 €
Monatliche Rate
0 €
Effektiver Jahreszins
0 %
Sollzinsbindung
10 Jahre
Bausubstanz & Energieausweis
| Baujahr | 2026 |
|---|---|
| Bauphase | Haus in Planung (projektiert) |
| Qualität der Austattung | Gehoben |
| Heizungsart | Wärmepumpe |
| Energieausweis | liegt zur Besichtigung vor |
Beschreibung des Objekts
Ausstattung
Die Ausstattung des Mehrfamilienhauses ist gehoben und lässt keine Wünsche offen. Die Bodenbeläge bestehen aus hochwertigen Materialien: Fliesen, Laminat und optional Parkett. Diese Bodenbeläge sind nicht nur pflegeleicht, sondern auch äußerst langlebig und tragen zur Wertsteigerung Ihres Objekts bei. Die Befeuerungsart erfolgt über eine moderne Wärmepumpe, die nicht nur umweltfreundlich, sondern auch kosteneffizient in der Nutzung ist. Darüber hinaus erfüllt das Haus den Niedrigenergie-Standard, was Ihre Energiekosten erheblich senken wird. Jedes Badezimmer ist mit einer Dusche, einer Wanne und einem Fenster ausgestattet, was zusätzlichen Komfort und Licht bietet.
Lage
Langen (Hessen) ist ein attraktiver Wohnort mit einer hervorragenden Infrastruktur. In unmittelbarer Nähe finden Sie alles, was Sie für den Alltag benötigen: Apotheken, Einkaufszentren, Fitnessstudios sowie Grundschulen und Kindergärten. Der Bahnhof und die Busverbindungen gewährleisten eine schnelle Anbindung an die umliegenden Städte. Zudem laden Parks in der Umgebung zu entspannenden Spaziergängen und Freizeitaktivitäten ein.
Sonstige Angaben
Dieses Projekt ermöglicht aktiv bei der Erstellung Ihres Hauses mitzuarbeiten. In dieser Ausbaustufe sind die haustechnischen Gewerke, wie Heizung, Lüftung, Sanitär und Estrich, bereits inklusive. STREIF bietet Ihnen verschiedene Dienstleistungspakete an, um Ihr Bauvorhaben optimal zu unterstützen. Gegen Aufpreis können Sie auch eine Ökobilanzierung für Ihr Haus erstellen lassen. Profitieren Sie von den Fördermöglichkeiten für klimafreundliche Neubauten und sichern Sie sich attraktive Darlehen für Ihr neues Zuhause!
Adresse
63225 Langen (Hessen)
Interessante Orte
Preis- und Lageinformationen
Preistrend für Bestandsimmobilien in Langen (Hessen)