Willkommen in Ihrem neuen Traumhaus in Langen, Hessen! Dieses moderne Doppelhaus bietet Ihnen und Ihrer Familie auf einer großzügigen Wohnfläche von 120 m² mit 6 Zimmern, darunter 3 Schlafzimmer, ein Badezimmer mit Dusche, Wanne und Fenster sowie ein zusätzliches Gäste-WC, ein komfortables und ansprechendes Zuhause. Das durchdachte Raumkonzept sorgt für viel Licht und eine einladende Atmosphäre, die zum Verweilen einlädt. Dank der flexiblen Planung der STREIF-Architekten können Sie Ihr neues Zuhause nach Ihren individuellen Wünschen gestalten. Der Bau erfolgt nach dem KfW 40 EE-Standard, was Ihnen nicht nur ein modernes Wohngefühl, sondern auch ein umweltfreundliches und energiesparendes Zuhause garantiert.
ab 1,13% Jahreszins QNG-förderfähig & Energieeffizient + Reihenmittelhaus in Toplage in Langen
63225 Langen (Hessen)
Die vollständige Adresse der Immobilie erhalten Sie vom Anbieter.
Auf Karte anzeigen
Die vollständige Adresse der Immobilie erhalten Sie vom Anbieter.
Finanzierungszertifikat
In nur zwei Minuten zu Ihrem persönlichen Finanzierungszertifkat.
Infos
| Wohnfläche ca. | 120 m2 |
|---|---|
| Grundstücksfläche | 275 m2 |
| Zimmer | 6 |
| Schlafzimmer | 3 |
| Badezimmer | 1 |
| Garage/Stellplatz | Carport |
| Anzahl Garage/Stellplatz | 1 |
Kosten
| Kaufpreis |
597.002 € |
|---|
Finanzierungsrechner:
Kaufpreis:
600.000 €
Eigenkapital:
600.000 €
Monatliche Rate
0 €
Effektiver Jahreszins
0 %
Sollzinsbindung
10 Jahre
Bausubstanz & Energieausweis
| Baujahr | 2026 |
|---|---|
| Qualität der Austattung | Gehoben |
| Heizungsart | Wärmepumpe |
| Energieausweis | liegt zur Besichtigung vor |
Beschreibung des Objekts
Ausstattung
Die gehobene Ausstattung des Hauses umfasst hochwertige Bodenbeläge wie Fliesen, Laminat und Parkett, die nicht nur optisch ansprechend sind, sondern auch pflegeleicht und langlebig. Die Wärmepumpe sorgt für eine effiziente und umweltfreundliche Beheizung des Hauses, was sich positiv auf Ihre Energiekosten auswirkt. Durch den Niedrigenergie-Standard profitieren Sie von einer ausgezeichneten Energiebilanz und einem angenehmen Wohnklima. Die hervorragende Schallisolierung der STREIF-Wandkonstruktion garantiert Ihnen ein ruhiges Wohnen, selbst wenn mehrere Generationen unter einem Dach leben.
Lage
Langen bietet Ihnen eine hervorragende Infrastruktur mit einer Vielzahl von Einkaufsmöglichkeiten, Schulen, Kindergärten und Freizeitangeboten. In unmittelbarer Nähe finden Sie eine Apotheke, den Bahnhof, Busanbindungen, ein Einkaufscenter, Fitnessstudios, ein Krankenhaus sowie einen Park, der sich ideal für entspannte Spaziergänge und Freizeitaktivitäten eignet. Diese zentrale Lage ermöglicht Ihnen sowohl eine schnelle Anbindung an das städtische Leben als auch die Vorteile eines ruhigen, familienfreundlichen Wohnumfeldes.
Sonstige Angaben
Dieses projektierten Doppelhaus bietet Ihnen die Möglichkeit, aktiv an der Gestaltung Ihres neuen Zuhauses mitzuwirken. In dieser Ausbaustufe sind die haustechnischen Gewerke wie Heizung, Lüftung, Sanitär und Estrich bereits professionell durch Fachbetriebe ausgeführt.
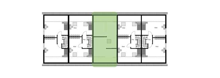
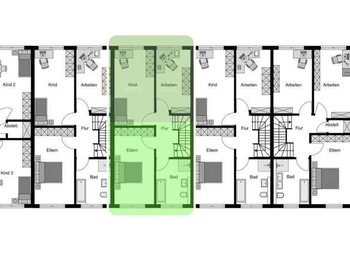
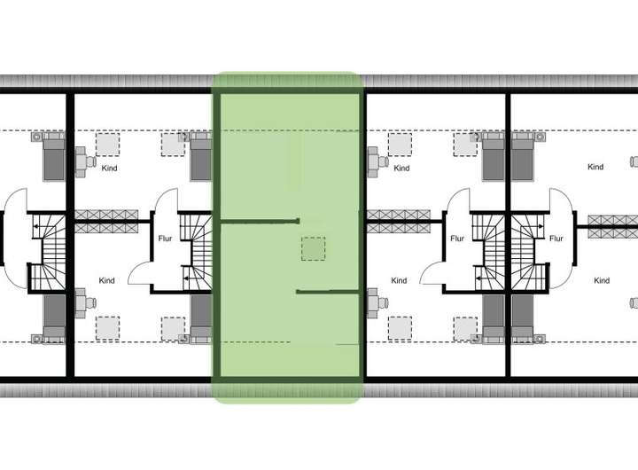
Grundriss
EG
>
>
OG
>
>
DG
>
>
Adresse
63225 Langen (Hessen)
Interessante Orte
Preis- und Lageinformationen
Preistrend für Bestandsimmobilien in Langen (Hessen)