FAMILIENFREUNDLICHE LAGE AM ORTSRAND VON FRANKFURT NIEDER-ESCHBACH.
Hier erwartet Sie ein gut vermietetes, geräumiges Reihenendhaus in familienfreundlicher und naturnaher Ortsrandlage von Frankfurt (Nieder-Eschbach).
Das Reihenhaus wurde um 2001 in Massivbauweise erstellt und liegt in vorteilhafter und sonnenverwöhnter Südlage, hübsch eingebettet in einem Wohngebiet mit verkehrsberuhigter Straßenführung und Spielstraßen.
Das Haus ist vollständig unterkellert und verfügt insgesamt über 4 Zimmer, 2 Tageslichtbäder, eine Küche und ein separates Gäste-WC. Im Außenbereich erwarten Sie die Sonnenterrasse, der Garten sowie eine Garage.
VIEL PLATZ, VIELE MÖGLICHKEITEN. Die Gesamtwohnfläche beläuft sich auf rund 146 m² und verteilt sich über zwei Vollgeschosse und ein ausgebautes Dachgeschoss. Hinzu kommt eine üppige Nutzfläche von etwa 51 m² durch Keller- und Vorratsräume.
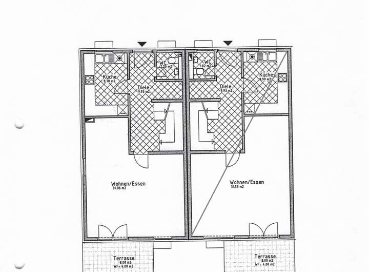
Die Raumaufteilung gestaltet sich wie folgt:
Im Erdgeschoss erwartet Sie der Eingangsbereich (Flur mit ca. 9 m²) mit einer praktischen Garderobennische und dem Gäste-WC. Auf dieser Etage befinden sich ebenfalls eine Küche rd. 9 m² große Küche sowie der Wohn- und Essbereich (ca. 30 m²) mit direktem Zugang zur Terrasse und in den Garten.
Im Obergeschoss befinden sich ein großzügiges Schlafzimmer (ca. 23 m²), ein rd. 8 m² großes Tageslichtbad (Hauptbad mit Wanne, Dusche und WC) und ein Kinder- oder Arbeitszimmer (ca. 17 m²).
Das ausgebaute Dachgeschoss bietet ebenfalls viel Platz. Hier befinden sich zwei weitere Schlafzimmer mit rd. 13 und 19 m² und ein Duschbad mit Tageslicht (ca. 7 m²) und ein kleiner Heizungsraum.
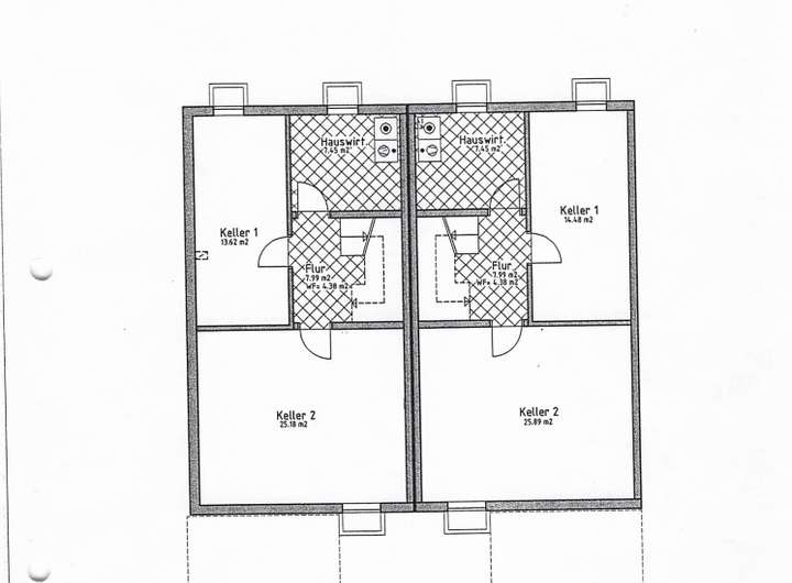
Auch Kellergeschoss bietet üppige Nutzfläche und unterteilt sich in einen ca. 7 m² großen Hauswirtschaftsraum, einen Vorratsraum (ca. 14 m²) und einen weiteren großen Kellerraum (rd. 25 m²).
Zur wesentlichen Ausstattung des Hauses zählen: eine Einbauküche, ein Tageslichtbad mit Wanne und Dusche, ein zweites Tageslichtbad mit Dusche, ein separates Gäste-WC, eine moderne und energieeffiziente Gas-Brennwertheizung, eine Regenwasserzisterne für die Gartenbewässerung, Isolierverglasung und Rollläden sowie die bereits erwähnte Garage mit davor gelegenenem PKW-Stellplatz.
UNSER FAZIT:
Dieses Reihenhaus bietet viel Platz für Familien oder Paare, die Wert auf eine gute Anbindung und eine angenehme Wohngegend legen. Mit einer Wohn- und Nutzfläche von rund 198 m² bietet es zudem ausreichend Platz für ein komfortables Wohnen. Hier wohnen Sie natur- und stadtnah zugleich.
Das Haus ist gut vermietet. Das Mietverhältnis ist ungekündigt und besteht seit 2019. Das Mietverhältnis übergeht bei Kauf in den Käufer.
Hinweis zu den Objektbildern: Zur Wahrung der Privatsphäre der derzeitigen Mieter konnten keine Innenaufnahmen erstellt werden. Aus diesem Grund stehen ausschließlich Außenaufnahmen sowie die Grundrisse zur Verfügung. Wir bitten um Ihr Verständnis.
NEUGIERIG? Schön, dass wir Ihr Interesse wecken konnten. Wir würden uns freuen, Ihnen diese Immobilie persönlich vorstellen zu dürfen. Senden Sie uns noch heute Ihre Kontaktanfrage, und wir melden uns zur Terminabstimmung bei Ihnen.
REIHENHAUS IN FAMILIENFREUNDLICHER ORTSRANDLAGE VON NIEDER-ESCHBACH
60437 Frankfurt am Main
Die vollständige Adresse der Immobilie erhalten Sie vom Anbieter.
Auf Karte anzeigen
Die vollständige Adresse der Immobilie erhalten Sie vom Anbieter.
Finanzierungszertifikat
In nur zwei Minuten zu Ihrem persönlichen Finanzierungszertifkat.
Infos
| Haustyp | Reiheneckhaus |
|---|---|
| Etagenzahl | 3 |
| Wohnfläche ca. | 146 m2 |
| Nutzfläche | 50,63 m2 |
| Grundstücksfläche | 236 m2 |
| Bezugsfrei ab | 01.10.2025 Vermietet |
| Zimmer | 5 |
| Schlafzimmer | 4 |
| Badezimmer | 2 |
| Garage/Stellplatz | Garage |
| Anzahl Garage/Stellplatz | 2 |
Kosten
| Kaufpreis |
820.000 € |
|---|---|
| Provision |
2,98 % vom Gesamtverkaufspreis inkl. MwSt. Die Käufer-Vermittlungsprovision beträgt 2,98% vom Gesamtverkaufspreis, inkl. gesetzlicher MwSt. und ist verdient und fällig mit Abschluss des notariellen Kaufvertrages. Mit der Verkäuferseite besteht ebenfalls ein provisionspflichtiger Maklervertrag in gleicher Höhe (gem. §656c BGB). |
Finanzierungsrechner:
Kaufpreis:
600.000 €
Eigenkapital:
600.000 €
Monatliche Rate
0 €
Effektiver Jahreszins
0 %
Sollzinsbindung
10 Jahre
Bausubstanz & Energieausweis
| Baujahr | 2001 |
|---|---|
| Bauphase | Haus fertig gestellt |
| Objektzustand | Gepflegt |
| Qualität der Austattung | Normal |
| Heizungsart | Zentralheizung |
| Wesentliche Energieträger | Gas |
| Energieausweis | liegt vor |
| Energieausweistyp | Verbrauchsausweis |
| Energieverbrauchskennwert | 79,5 kWh/(m²*a) |
| Energieeffizienzklasse | C |
79,5
kWh/(m²*a)
Energieeffizienzklasse C
- A+
- A
- B
- C
- D
- E
- F
- G
- H
- 0
- 25
- 50
- 75
- 100
- 125
- 150
- 175
- 200
- 225
- >250
Beschreibung des Objekts
Ausstattung
- Garten in Südlage
- Sonnige Südterrasse
- Kleiner Vorgarten
- Garage (mit Gartenzugang, Beleuchtung und Stromanschluss)
- PKW-Stellplatz vor der Garage
- Keller, Wasch- und Vorratsraum
- Gäste-WC (mit Fenster)
- Tageslichtbad mit Wanne, Dusche und WC (im 1. OG)
- Tageslichtbad mit Dusche und WC (im DG)
- Energieeffiziente Gas-Brennwertheizung (von 2012)
- Fenster: Isolierverglasung in Kunststoffrahmen
- Kunststoffrollläden
Lage
WILLKOMMEN IN FRANKFURT NIEDER-ESCHBACH - VERKEHRSGÜNSTIG, FAMILIENFREUNDLICH UND NATURNAH.
Das Haus liegt eingebettet in einem Wohngebiet mit verkehrsberuhigter Straßenführung (Spielstraßen). Das Umfeld wirkt beschaulich und familienfreundlich.
Nieder-Eschbach ist ein nördlicher Stadtteil von Frankfurt und liegt östlich des Bad Homburger Kreuzes im rechten Winkel zwischen den Bundesautobahnen 5 und 661. Nieder-Eschbach grenzt im Norden an die Bad Homburger, Stadtteile Ober-Eschbach und Ober-Erlenbach, im Süden an Frankfurt-Bonames und Kalbach-Riedberg und im Osten an Nieder-Erlenbach.
1. Einkaufsmöglichkeiten vor Ort:
Supermärkte und Discounter:
Ganz in der Nähe finden sich zahlreiche Einkaufsmöglichkeiten wie ein REWE-Markt, Aldi Süd und Netto Marken-Discount. Diese sind fußläufig oder in wenigen Minuten mit dem Auto erreichbar. Zusätzlich gibt es kleinere Läden für den täglichen Bedarf, etwa Bäckereien (z. B. Backwerk oder Kamps) sowie Metzgereien.
Shopping:
Das nahegelegene NordWestZentrum, eines der größten Einkaufszentren Frankfurts, ist in ca. 10 bis 15 Minuten mit dem Auto oder Bus zu erreichen. Es bietet eine breite Auswahl an Modegeschäften, Elektronik, Gastronomie und Dienstleistungen.
2. Öffentlicher Nahverkehr:
Bus: Mehrere Buslinien bedienen den Günter-Vogt-Ring und verbinden Nieder-Eschbach mit umliegenden Stadtteilen sowie dem Zentrum Frankfurts. Beispielsweise die Buslinien 27 und 29, die Nieder-Eschbach mit den Nachbarstadtteilen Bonames und Nieder-Erlenbach verbinden. Die Linie 29 erschließt außerdem das Gewerbegebiet. Die Haltestelle "Nieder-Eschbach Mitte" ist in wenigen Minuten zu Fuß erreichbar.
U-Bahn: Die U2-Linie (Station: Nieder-Eschbach) ist ein großer Pluspunkt der Gegend. Sie bietet eine direkte Verbindung in die Innenstadt (Hauptwache, Konstablerwache) sowie zu weiteren Stadtteilen. Die Haltestelle liegt etwa 10 Gehminuten vom Haus entfernt
Regionalverkehr: Durch die Nähe zur S-Bahn-Station Bad Homburg ist auch eine schnelle Verbindung in das Rhein-Main-Gebiet und nach Frankfurt Hauptbahnhof gegeben.
3. Schulen und Kindergärten:
Kindergärten: In der Umgebung gibt es mehrere Kitas und Kindergärten, z. B. die Kindertageseinrichtung der evangelischen Gemeinde Am Bügel, Kinderzentrum Gladiolenstraße, Evangelischer Kindergarten Nieder-Eschbach, Kath. Kinder-Tageseinrichtung St. Stephanus, Kindertagesstätte Hexenkessel, Kita Erdmännchen, Krabbelstube Kinderladen Pfiffikus und die Krabbelstube Lea des Diakonischen Werkes.
Schulen: Folgende Schulen befinden sich im Stadtteil Nieder-Eschbach: Otto-Hahn-Schule (OHS) Additive Gesamtschule mit Schulzweigen Föderstufe, Hauptschule, Realschule, Gymnasium (G9), Gymnasiale Oberstufe sowie die Grundschule Michael-Grzimek-Schule (MGS).
In den umliegenden Stadtteilen befinden sich mehrere weiterführende Schulen, darunter Gymnasien und Realschulen wie die Albert-Schweitzer-Schule (Frankfurter Berg) oder die Gesamtschule Kalbach-Riedberg.
4. Allgemeine Verkehrsanbindung:
Die Wohnlage ist gut an das Straßennetz angebunden. Über die nahegelegene A661 sowie die A5 sind die umliegenden Städte und das gesamte Rhein-Main-Gebiet schnell erreichbar. Die Innenstadt von Frankfurt ist mit dem Auto in ca. 20 Minuten erreichbar.
Flughafen: Der Flughafen Frankfurt ist etwa 25 Autominuten entfernt und ebenfalls gut über die Autobahnen zu erreichen.
5. Allgemeines zum Wohnumfeld
Nieder-Eschbach zeichnet sich durch eine ruhige, grüne Umgebung aus, die ideal für Familien und Berufspendler ist. Spielplätze und Grünflächen sind gut verteilt, und der Stadtteil bietet ein angenehmes Wohnumfeld.
Für Freizeitaktivitäten sind der Nieder-Eschbacher Weiher sowie das Kalbacher Feld beliebte Ausflugsziele. Sportvereine, Fitnessstudios und Schwimmbäder sind ebenfalls in der Nähe verfügbar.
Kulinarisch gibt es eine Auswahl an internationalen Restaurants, Cafés und lokalen Gasthäusern.
Sonstige Angaben
HINWEIS ZUM ENERGIEAUSWEIS: Der Energieausweis wurde bereits vom Eigentümer beantragt und steht kurzfristig zur Verfügung.
IHRE ANFRAGE AN UNS: Bitte geben Sie in Ihrer Anfrage stets eine Rückrufnummer an, damit wir Sie im Falle von Rückfragen telefonisch erreichen können. Vielen Dank!
WAS IST IHRE IMMOBILIE HEUTE WERT? Wir ermitteln den aktuellen Marktwert für Ihre Immobilie unverbindlich und kostenfrei.
SIE MÖCHTEN EINE IMMOBILIE VERKAUFEN ODER VERMIETEN?
Für solvente Kunden mit ernsthaftem Kaufinteresse suchen wir passende Häuser und Eigentumswohnungen.
Profitieren Sie von unserer langjährigen Markt- und Verkaufserfahrung. Wir bieten Ihnen nicht nur geprüfte Qualität, sondern arbeiten auch regional und bundesweit in einem der stärksten Maklernetzwerke mit gut selektierten Partnern.
Gern ermitteln wir kostenfrei und unverbindlich den aktuellen Marktwert Ihrer Immobilie. Auf Wunsch entwickeln wir eine individuelle und speziell Ihrem Objekt angepasste Vermarktungsstrategie. Wir stehen Ihnen über die gesamte Vermittlung bis zum erfolgreichen Verkauf und darüber hinaus, als persönlicher Ansprechpartner zur Seite.
Hinweis zu den Objektdaten: Alle genannten Angaben und Unterlagen zum Objekt wurden vom Eigentümer bezogen. Trotz sorgfältiger Prüfung kann für die Richtigkeit und Vollständigkeit dieser Informationen unsererseits nicht gehaftet werden. Irrtümer und/oder Änderungen bleiben vorbehalten.
Information zum Geldwäschegesetz (GwG): Gemäß § 2 Absatz 1 Nr. 10 GwG ist unser Immobilienbüro verpflichtet, bei Kontaktaufnahme die Identität des Kunden festzustellen. Zu diesem Zweck bitten wir Sie um Verständnis, dass wir Ihre persönlichen Daten (Name, Anschrift, Geburtsdatum, Geburtsort und Nationalität) vor Anbahnung einer Geschäftsbeziehung zu erheben haben. Dies erfolgt mittels einer Kopie Ihres Personalausweises (Bei Firmen und juristischen Person ist ein Handelsregisterauszug notwendig).
Hinweis zum Widerrufsrecht: Das Widerrufsrecht stellt gemäß § 355 des Bürgerlichen Gesetzbuchs (BGB) ein Recht zum Schutz des Verbrauchers dar. Es ermöglicht, unter bestimmten Voraussetzungen von einem bereits geschlossenen Vertrag, innerhalb der gesetzlichen Fristen durch Erklärung des Widerrufs zurückzutreten.
Alle aktuellen Angebote finden Sie auf: www.stadtblick-immobilien.de
Adresse
60437 Frankfurt am Main
Interessante Orte
Preis- und Lageinformationen
Preistrend für Bestandsimmobilien in Nieder-Eschbach