Das SUNSHINE 107 macht überall eine super Figur, gerade auch auf schmalen Grundstücken und in Baulücken im urbanen Umfeld. Ob mit Satteldach und verspielten Holzfassadenelementen oder schnörkellosem Baukörper für echte Puristen: Das SUNSHINE 107 ist so oder so genau dein Typ! Dank flexibler Grundrissplanung kannst du die Zimmeraufteilung individuell gestalten, sodass sich auch dein Nachwuchs rundherum wohlfühlt. Ohne Keller zu bauen, bedeutet bei diesen traumhaften Einfamilienhäusern keine Abstriche. Da nehmt doch lieber den Technikraum im Erdgeschoss, der zusätzlich auch für anderes gut ist - und gönnt euch einen Balkon. Draußen sein im Schlafanzug, einfach herrlich. Und darunter gibt’s so auch die witterungsgeschützte Terrasse. Der Preis bezieht sich auf den Standard-Leistungsumfang in der Ausbaustufe Ausbauhaus-Plus als Effizienzhaus 55 I-KON Standard inkl. Bodenplatte, Zuhause-Paket und Küche gemäß gültiger Bau- und Leistungsbeschreibung Stand 06/2024 und Preisliste 04/2025. Grundrisse und Abbildungen können Extras zeigen. Flächenangaben nach DIN 277.
Maßgeschneidertes Wohnen in Wintersdorf
04600 Altenburg
Die vollständige Adresse der Immobilie erhalten Sie vom Anbieter.
Auf Karte anzeigen
Die vollständige Adresse der Immobilie erhalten Sie vom Anbieter.

Finanzierungszertifikat
In nur zwei Minuten zu Ihrem persönlichen Finanzierungszertifkat.
Infos
Haustyp | Einfamilienhaus |
---|---|
Etagenzahl | 2 |
Wohnfläche ca. | 107 m2 |
Grundstücksfläche | 520 m2 |
Zimmer | 3 |
Schlafzimmer | 2 |
Badezimmer | 1 |
Kosten
Kaufpreis |
354.182 € |
---|
Finanzierungsrechner:
Kaufpreis:
600.000 €
Eigenkapital:
600.000 €
Monatliche Rate
0 €
Effektiver Jahreszins
0 %
Sollzinsbindung
10 Jahre
Bausubstanz & Energieausweis
Baujahr | 2025 |
---|---|
Bauphase | Haus in Planung (projektiert) |
Qualität der Austattung | Gehoben |
Heizungsart | Wärmepumpe |
Beschreibung des Objekts
Ausstattung
Deine Sicherheit steht bei Living Haus an erster Stelle: Mit der 18-monatigen Festpreisgarantie bist du vor unerwarteten Preiserhöhungen geschützt. Sollten die Baukosten sinken, profitierst du ebenfalls durch entsprechende Anpassungen deines Hauspreises. Essenzielle Bauversicherungen wie Bauherrenhaftpflicht, Bauleistungs-, Wohngebäude- und Bauhelfer-Unfallversicherung sowie ein umfangreicher Baufinanzierungsschutz sind bereits integriert. Für Finanzierungslösungen steht das Zuhause-Darlehen zur Verfügung, welches oft zu einem Zins angeboten wird, der unter dem Marktniveau liegt. Das innovative Living Haus Bauherren-Cockpit unterstützt dich bei allen Aspekten deines Projekts und stellt sicher, dass du stets informiert bleibst. Die DGNB-Serienzertifizierung in Gold sowie die QDF-Zertifizierung garantieren höchste ökologische Standards. Auf die Grundkonstruktion des Gebäudes gewährt Living Haus eine beeindruckende 30-jährige Garantie. Zwei Tage Ausstattungsberatung in der Haus-Statterei helfen dir dabei deine Wünsche zu konkretisieren. Die komplette Bauantragsplanung wird von erfahrenen Architekten übernommen und auch das Bodengutachten ist bereits inklusive. Mit einer vorkonfigurierten I-KON-Lösung kannst du mittels einer integrierten PV-Anlage samt Speicherbatterie einen großen Teil deines Energiebedarfs selbst decken. Moderne Wärmepumpentechnik mit Komfortlüftung sorgt für ein angenehmes Wohnklima. Im Zuhause-Paket sind sämtliche Materialien für den Innenausbau enthalten - von Fliesen bis hin zu bodengleichen Duschen mit Echtglasabtrennung; ebenso eine individuell geplante Küche als fester Bestandteil deiner Ausstattung. Durch den hohen Vorfertigungsgrad wird der Bauprozess effizienter gestaltet, inklusive aller notwendigen Baustelleneinrichtungen wie Abfallcontainer und Montagekran. Dein »Wie ich es will Fertighaus«.
Lage
In der ruhigen und naturnahen Gemeinde Wintersdorf, idyllisch im Altenburger Land gelegen, bietet sich dir eine hervorragende Gelegenheit, den Bau eines individuellen Fertighauses zu realisieren. Hier findest du ein entspanntes Lebensgefühl, das dir eine hohe Lebensqualität verspricht. Die unmittelbare Umgebung, geprägt von Feldern und Wäldern, lädt zu erholsamen Spaziergängen und vielfältigen Freizeitaktivitäten in der Natur ein. Du profitierst von einer guten Grundversorgung mit allen wichtigen Einrichtungen des täglichen Bedarfs in den umliegenden Ortschaften und insbesondere in der nahegelegenen Kreisstadt Altenburg. Altenburg bietet dir umfassende Einkaufsmöglichkeiten, diverse Schulen, Kindergärten und eine exzellente medizinische Versorgung. Durch die gute Anbindung an das regionale Straßennetz bist du zudem flexibel für Beruf und Freizeit in den umliegenden Städten wie Leipzig oder Gera.
Sonstige Angaben
Das hier angebotene Grundstück ist im obigen Preis eingerechnet, es wird ohne zusätzliche Provision an einen Living Haus-Bauherren bereitgestellt. Zusätzliche Baunebenkosten müssen noch hinzugerechnet werden, hierüber beraten wir dich gern. Wir bieten auch interessante Finanzierungsmöglichkeiten inklusive Beantragung aller Fördermittel! Die Hausabbildungen und die Bilder der Inneneinrichtung zeigen möglicherweise Extras, die nicht im angegebenen Kaufpreis inbegriffen sind. Gute Beratung ist der Anfang von Allem. Deshalb analysieren wir gemeinsam mit euch eure Vorstellungen, Wünsche und Bedürfnisse und finden so das für Dich und Deine Familie passende Living Haus. Interessiert? Kontaktiere mich und vereinbare noch heute einen kostenlosen und unverbindlichen Beratungstermin unter 0162 9707991.
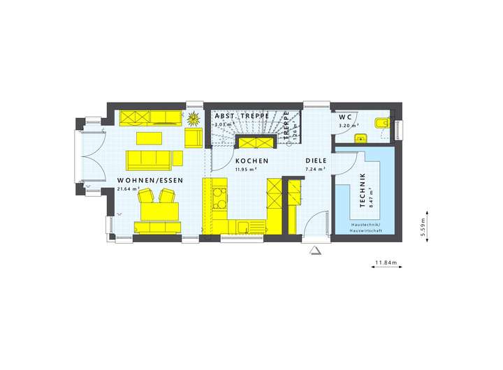
Grundriss
SUN 107 V2 EG
>

SUN 107 V2 DG
>

SUN 107 V3 EG
>

SUN 107 V3 DG
>

Adresse
04600 Altenburg
Interessante Orte
Preis- und Lageinformationen
Preistrend für Bestandsimmobilien in Altenburg