Provisionsfrei: 8,5% Mietrendite für Kapitalanleger - 15.792 Eurpo KM pro Jahr - Kein Denkmalschutz
Das Objekt ist zum 01.08.2025 unbefristet mit einer Mindestmietdauer von 4 Jahren an eine zuverlässige, sympathische Familie vermietet, die mit der Immobilie sehr pfleglich umgeht.
Die Miete beträgt 1316 Euro Kaltmiete pro Monat. Dadurch kann man mit festen Mieteinnahmen von 15.792 Euro pro Jahr, bzw. 63.000 Euro über 4 Jahre rechnen.
Aufgrund der Moderinisierungen der vergangen Jahre (Heizkörper mit Kupfeleitungen, Fenster, Dach)
sind in den kommenden Jahren keine zwingenden Modernisierungen erforderlich.
Dieses charmante Fachwerkhaus vereint den rustikalen Charme historischer Architektur mit solider Bauweise und modernen Annehmlichkeiten. Das Haus besticht durch seine warmen Holzelemente, die klassischen Fachwerkdetails und bietet dabei viel Raum zur individuellen Gestaltung und Nutzung – ideal für Familien, die sich ein Zuhause mit Charakter wünschen.
Die flexible Aufteilung des Hauses ermöglicht die Nutzung sowohl als Einfamilien- als auch als Zweifamilienhaus, was es ideal für Familiengenerationen oder für eine Kombination aus Wohnen und Arbeiten macht.
Ausstattung und Zustand:
Fenster: Alle Fenster sind doppelt verglast und stammen aus 2004
Dach: Das Dach ist mit langlebigen Betondachsteinen Mitte der 90er Jahre neu eingedeckt worden
Heizung: Die Beheizung erfolgt durch einen Gas-Brennwert-Kessel. Die Räume mit Heizkörpern ausgestattet. Die Leitungen sind bereits aus Kupfer.
Kamin: Das Wohnzimmer bietet einem Kamin, der an kalten Wintertagen eine behagliche Atmosphäre schafft und zusätzlich zur Heizungsanlage genutzt werden kann.
Außenbereich: Die teilüberdachte Terrasse lädt zum Verweilen ein, unabhängig vom Wetter. Hier können Sie gesellige Abende im Freien genießen oder einfach nur entspannen.
Nutzraum: Ein kleiner Anbau erweitert das Raumangebot des Hauses. Er eignet sich perfekt als Werkstatt, Hobbyraum oder Lagerfläche und ist vielseitig nutzbar.
Fachwerktraum: Faktor 11, 16.000 Euro KM/a, 4 Jahre fest vermietet
38162 Cremlingen
Die vollständige Adresse der Immobilie erhalten Sie vom Anbieter.
Auf Karte anzeigen
Die vollständige Adresse der Immobilie erhalten Sie vom Anbieter.
Finanzierungszertifikat
In nur zwei Minuten zu Ihrem persönlichen Finanzierungszertifkat.
Infos
| Haustyp | Einfamilienhaus |
|---|---|
| Wohnfläche ca. | 188 m2 |
| Grundstücksfläche | 460 m2 |
| Zimmer | 8 |
| Schlafzimmer | 7 |
| Badezimmer | 2 |
Kosten
| Kaufpreis |
176.000 € |
|---|---|
| Provision | Nein |
Finanzierungsrechner:
Kaufpreis:
600.000 €
Eigenkapital:
600.000 €
Monatliche Rate
0 €
Effektiver Jahreszins
0 %
Sollzinsbindung
10 Jahre
Bausubstanz & Energieausweis
| Baujahr | 1912 |
|---|---|
| Heizungsart | Zentralheizung |
| Wesentliche Energieträger | Gas |
| Energieausweis | liegt vor |
| Energieausweistyp | Bedarfsausweis |
Beschreibung des Objekts
Lage
Das Einfamilienhaus befindet sich in dem idyllischen Stadtteil Cremlingen, welcher sich südöstlich der Stadt Braunschweig befindet. Cremlingen zeichnet sich durch seine ruhige und familienfreundliche Atmosphäre aus. Die Umgebung bietet zahlreiche Grünflächen und Naherholungsmöglichkeiten, ideal für Naturliebhaber und sportlich Aktive. Einkaufsmöglichkeiten, Schulen und öffentliche Verkehrsmittel sind in unmittelbarer Nähe und sorgen für eine gute Infrastruktur.
Die Stadt Braunschweig ist bekannt für ihre historische Altstadt mit ihren malerischen Gassen, Fachwerkhäusern und dem imposanten Dom. Kulturelle Highlights wie das Residenzschloss, das Herzog Anton Ulrich-Museum und das Staatstheater bieten ein abwechslungsreiches Freizeitangebot. Die Universitätsstadt verbindet Geschichte mit Moderne und bietet eine breite Palette an Einkaufsmöglichkeiten, Restaurants und Cafés. Die gute Anbindung an Autobahnen und das Schienennetz ermöglichen eine schnelle Verbindung zu anderen Städten in der Region.
Die Region um Braunschweig ist geprägt von ihrer wunderschönen Natur und ihren zahlreichen Seen und Wäldern. Die vielfältige Landschaft lädt zu ausgedehnten Spaziergängen, Radtouren und Wanderungen ein. Die Nähe zum Harz und zur Lüneburger Heide bietet zudem zahlreiche Ausflugsmöglichkeiten und Freizeitaktivitäten für Naturliebhaber und Outdoor-Enthusiasten. Die Region ist bekannt für ihre hohe Lebensqualität und ihre gute Anbindung an die Natur.
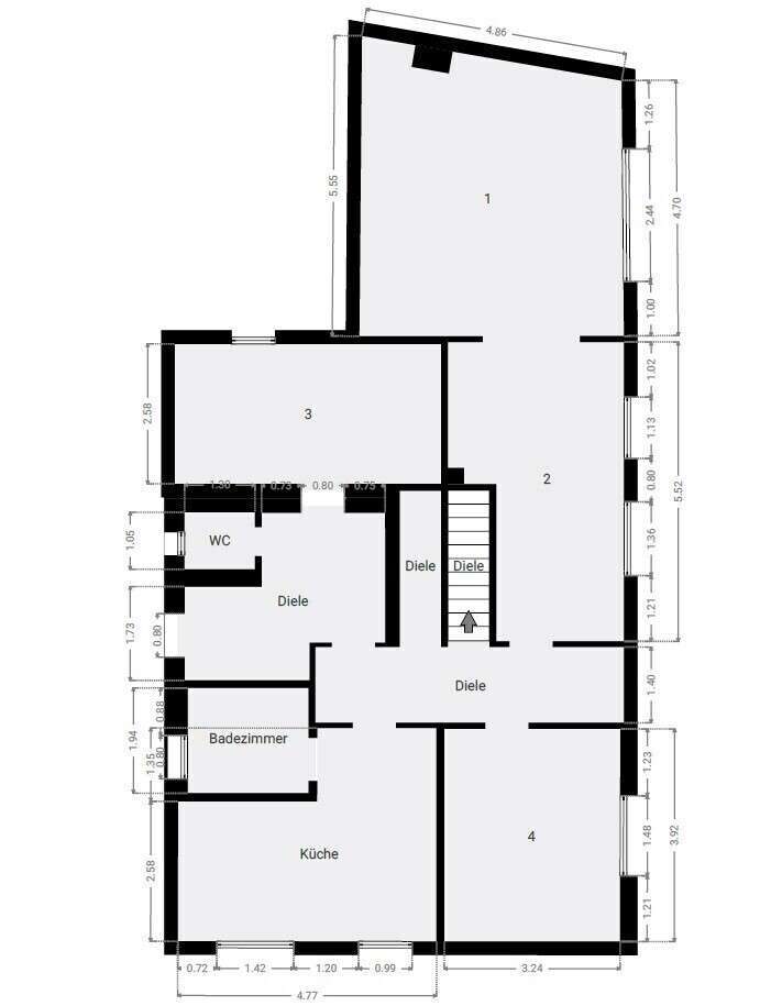
Grundriss
X_Grundriss_EG
>
>
X_Grundriss_OG
>
>
Adresse
38162 Cremlingen
Interessante Orte
Preis- und Lageinformationen
Preistrend für Bestandsimmobilien in Cremlingen