*** Zwei Mehrfamilienhäuser auf einem Grundstück ***
Aus Rücksicht auf die Privatsphäre der Mieter stellen wir Ihnen ein ausführliches Exposé mit weiteren Informationen und zusätzlichen Bildern gerne nach Ihrer schriftlichen Anfrage zur Verfügung. Wir bitten um Ihr Verständnis.
Bei diesem Angebot handelt es sich um zwei Mehrfamilienhäuser auf einem 437 m² großen Grundstück mit insgesamt 7 Wohneinheiten (ca. 353 m² Wohnfläche). Es besteht die Möglichkeit eine weitere Einheit mit ca. 50 m² Wohnfläche entstehen zu lassen.
Alle Wohnung sind aktuell vermietet. Die monatlichen Mieteinnahmen belaufen sich auf insgesamt 3.209 € kalt.
Die Mieten wurden lange nicht erhöht, sodass eine sofortige Mieterhöhung mit 15% vollzogen werden könnte (Kappungsgrenze).
Die Wohnungen im Vorderhaus verfügen über eine Gastherme. In zwei der 4 Wohnungen wurden diese vor ein paar Jahren erneuert. Das gesamte Hinterhaus wird durch ein Gaszentralheizung erwärmt, welche 2017 erneuert wurde.
Die Wohnungen sowie die Häuser befinden sich zum Teil in einem sanierungsbedürftigen Zustand (Fassade, Elektrik).
Insgesamt handelt es sich um:
2x 1 Zimmer-Wohnungen mit ca. 21 m² Wohnfläche und 34 m² Wohnfläche
5x 3 Zimmer-Wohnungen mit ca. 54-66 m² Wohnfläche
Beide Häuser sind unterkellert.
Lassen Sie sich diese einmalige Investitionsgelegenheit nicht entgehen.
Wir freuen uns auf Ihre Kontaktaufnahme und darauf Sie bei einer Besichtigung persönlich kennenzulernen.
FÜR INVESTOREN! 2 Häuser mit 7 Einheiten in zentraler Lage von Wiesbaden-Dotzheim
65199 Wiesbaden
Die vollständige Adresse der Immobilie erhalten Sie vom Anbieter.
Auf Karte anzeigen
Die vollständige Adresse der Immobilie erhalten Sie vom Anbieter.
Finanzierungszertifikat
In nur zwei Minuten zu Ihrem persönlichen Finanzierungszertifkat.
Infos
| Haustyp | Mehrfamilienhaus |
|---|---|
| Wohnfläche ca. | 353 m2 |
| Nutzfläche | 50 m2 |
| Grundstücksfläche | 437 m2 |
| Bezugsfrei ab | Nach Vereinbarung |
| Zimmer | 17 |
| Schlafzimmer | 10 |
| Badezimmer | 7 |
| Garage/Stellplatz | Außenstellplatz |
| Anzahl Garage/Stellplatz | 2 |
Kosten
| Kaufpreis |
895.000 € |
|---|---|
| Provision |
Die Käuferprovision beträgt 7,14 % vom notariellen Kaufpreis inkl. gesetzlicher Mehrwertsteuer |
Finanzierungsrechner:
Kaufpreis:
600.000 €
Eigenkapital:
600.000 €
Monatliche Rate
0 €
Effektiver Jahreszins
0 %
Sollzinsbindung
10 Jahre
Bausubstanz & Energieausweis
| Baujahr | 1900 |
|---|---|
| Heizungsart | Zentralheizung |
| Wesentliche Energieträger | Gas |
| Energieausweis | laut Gesetz nicht erforderlich |
Beschreibung des Objekts
Ausstattung
* Zentrale Lage
* 2 Häuser mit insgesamt 7 Wohnungen
* Ca. 353 m² Wohnfläche
* Grundstück 437 m²
* Lagerfläche unterhalb der Terrasse ca. 50 m²
* 2 Stellplätze
* 7 Badezimmer
* Terrasse (gemeinschaftliche Nutzung)
* Böden: Laminat/ PVC / Fliesen
* Hinterhaus: Gaszentralheizung von 2017 / Vorderhaus: Gasthermen
* Keller
* Es wurde nach Bedarf teilweise saniert
z.B.
- Überprüfung + bedarfsweise Sanierung der Stromleitungen durch ein Elektrorunternehmen
- Austausch der Gaszentralheizung im Hinterhaus + bei mind. 2 Wohnungen im Vorderhaus
- Vorderhaus: Renovierung von 2 Wohnungen in den letzten 3 Jahren
- Hinterhaus: Renovierung der Wohnung im EG
Lage
Die Immobilie befindet sich in Wiesbaden-Dotzheim, einem der größten und beliebtesten Stadtteile der hessischen Landeshauptstadt. Dotzheim überzeugt durch seine gute Infrastruktur, die Nähe zur Natur und die schnelle Anbindung an die Wiesbadener Innenstadt.
Einkaufsmöglichkeiten für den täglichen Bedarf, Ärzte, Apotheken sowie Schulen und Kindergärten befinden sich in unmittelbarer Umgebung. In direkter Nähe befinden sich mehrere Restaurants sowie eine Kita. Auch das Helios Dr. Horst Schmidt Klinikum ist schnell erreichbar. Für Freizeit und Erholung laden die nahegelegenen Grünflächen und ein Freizeitpark sowie die umliegenden Wälder und Felder zum Spazieren, Joggen oder Radfahren ein.
Die Verkehrsanbindung ist hervorragend: Über die B54 und B262 erreichen Sie sowohl die Wiesbadener Innenstadt als auch die A66 in wenigen Fahrminuten – ideal für Pendler Richtung Mainz, Frankfurt oder den Rheingau. Mehrere Buslinien sorgen zudem für eine gute Anbindung an den öffentlichen Nahverkehr.
Sonstige Angaben
Wir stehen Ihnen jederzeit gerne zur Verfügung und besichtigen nach Möglichkeit sieben Tagen die Woche.
Alle Angaben beruhen auf Informationen des Auftraggebers, daher übernehmen wir keine Garantie für die Richtigkeit der Angaben. Bei Zustandekommen eines Kaufvertrages haben wir Anspruch auf Zahlung der Provision.
Aufgrund des Geldwäschegesetzes (GWG) können wir Ihre Anfrage nur bearbeiten, wenn Sie Ihren vollständigen Namen, Ihre Anschrift und Ihre Telefonnummer angeben.
Nach Erhalt Ihrer Anfrage setzen wir uns umgehend mit Ihnen in Verbindung.
Weitere Angebote finden Sie auf unserer Website: www.sommerimmo.de
*** Sie möchten Ihr(e) Haus/Wohnung verkaufen oder wünschen eine kostenlose Immobilienbewertung?
Rufen Sie uns einfach an: 0176-57645721 oder schreiben Sie uns: sommer@sommerimmo.de ***
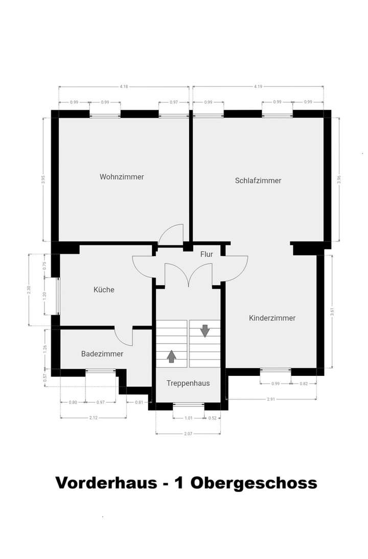
Grundriss
Vorderhaus - Erdgeschoss
>
>
Vorderhaus - 1 Obergeschoss
>
>
Vorderhaus - Dachgeschoss
>
>
Hinterhaus - Erdgeschoss
>
>
Hinterhaus - 1 Obergeschoss
>
>
Hinterhaus - Dachgeschoss
>
>
Adresse
65199 Wiesbaden
Interessante Orte
Preis- und Lageinformationen
Preistrend für Bestandsimmobilien in Dotzheim