Inmitten der beliebten Mainzer Oberstadt erwartet Sie dieses freistehende Einfamilienhaus mit rd. 110 m² Wohnfläche auf einem großzügigen und eingewachsenen Grundstück. Das im Jahr 1949 errichtete und vollunterkellerte Haus überzeugt durch seinen gut durchdachten Grundriss, helle Räume und viel Potenzial für individuelle Gestaltung.
Im Erdgeschoss befindet sich ein großzügiges Wohn- und Esszimmer mit schönem Parkettboden und großen Fenstern. Von hier hat man einen schönen Blick in den tollen Vorgarten. Angrenzend befindet sich die geräumige Küche mit kleiner Speisekammer. Von der Küche aus gelangt man auf die große, zum Teil überdachte Terrasse und hat einen direkten Zugang in den Garten. Ferner befindet sich auf dieser Ebene ein Gäste-WC mit Tageslichtsduschbad. Über die elegante Holztreppe gelangt man in das Obergeschoss. Hier stehen Ihnen ein sehr großzügiges Schlafzimmer mit Balkon und ein weiteres Schlafzimmer mit Blick in den Garten zur Verfügung. Ein Wannenbad mit Tageslicht ist ebenfalls vorhanden. Das Dachgeschoss ist zum Teil ausgebaut und bietet ein weiteres Zimmer. Ferner gibt es hier noch einen großen Speicherraum. Im Kellergeschoss befindet sich ein Partykeller und zwei große Kellerräume, sowie der Heizraum. Die Beheizung erfolgt durch eine Gaszentralheizung.
Eine Garage, sowie ein Stellplatz davor runden das Angebot ab. Das Haus ist bereits freigestellt.
Fazit:
Ein Einfamilienhaus mit viel Potenzial in einer der besten Lagen von Mainz. Hier haben Sie die Möglichkeit, Ihre Wohnträume nach Ihren eigenen Vorstellungen zu verwirklichen – sei es durch Modernisierung oder Ausbau. Die Immobilie eignet sich ideal für Familien, die naturnah und ruhig, zugleich aber stadtnah wohnen möchten.
Weitere Details und eine Besichtigung erhalten Sie gerne auf Anfrage. 0176-21537234
MAINZ-OBERSTADT: Charmantes Einfamilienhaus mit tollem Gartengrundstück in begehrter Wohnlage
55131 Mainz
Die vollständige Adresse der Immobilie erhalten Sie vom Anbieter.
Auf Karte anzeigen
Die vollständige Adresse der Immobilie erhalten Sie vom Anbieter.
Finanzierungszertifikat
In nur zwei Minuten zu Ihrem persönlichen Finanzierungszertifkat.
Infos
| Haustyp | Sonstige |
|---|---|
| Wohnfläche ca. | 110 m2 |
| Grundstücksfläche | 400 m2 |
| Bezugsfrei ab | sofort frei |
| Zimmer | 4 |
| Schlafzimmer | 3 |
| Badezimmer | 2 |
| Garage/Stellplatz | Garage |
| Anzahl Garage/Stellplatz | 1 |
Kosten
| Kaufpreis |
685.000 € |
|---|---|
| Provision |
3,57% inkl. Mwst. |
Finanzierungsrechner:
Kaufpreis:
600.000 €
Eigenkapital:
600.000 €
Monatliche Rate
0 €
Effektiver Jahreszins
0 %
Sollzinsbindung
10 Jahre
Bausubstanz & Energieausweis
| Baujahr | 1949 |
|---|---|
| Heizungsart | Zentralheizung |
| Wesentliche Energieträger | Gas |
| Energieausweis | liegt vor |
| Energieausweistyp | Bedarfsausweis |
| Energieverbrauchskennwert | 329,0 kWh/(m²*a) |
| Energieeffizienzklasse | H |
329,0
kWh/(m²*a)
Energieeffizienzklasse H
- A+
- A
- B
- C
- D
- E
- F
- G
- H
- 0
- 25
- 50
- 75
- 100
- 125
- 150
- 175
- 200
- 225
- >250
Beschreibung des Objekts
Ausstattung
Baujahr 1949
•freistehendes Einfamilienhaus
•voll unterkellert
•großzügiges, eingewachsenes Gartengrundstück
•Balkon im Obergeschoss
•Garage vorhanden
•ruhige, familienfreundliche Lage
•gute Anbindung an die Mainzer Innenstadt
Lage
Die Mainzer Oberstadt zählt zu den beliebtesten Stadtteilen von Mainz. Sie bietet eine hervorragende Infrastruktur mit Schulen, Kindergärten, Ärzten und Einkaufsmöglichkeiten in direkter Nähe. Zudem sind die Mainzer Innenstadt und der Hauptbahnhof in wenigen Minuten erreichbar. Gleichzeitig überzeugt die Oberstadt durch ihre Nähe zu Grünflächen und Naherholungsgebieten, die zu Spaziergängen und Freizeitaktivitäten einladen.
Zentrale Lage: Innenstadt und Hauptbahnhof schnell erreichbar
•Sehr gute Infrastruktur: Schulen, Kitas, Ärzte und Einkaufsmöglichkeiten in direkter Nähe
•Gute Verkehrsanbindung: ÖPNV und Autobahnen schnell erreichbar
•Grünes Wohnumfeld: Parks, Bäume und gewachsene Gärten sorgen für hohe Lebensqualität
•Ruhiges, etabliertes Wohnviertel mit gepflegter Nachbarschaft
•Wertstabile Immobilienlage in einem der beliebtesten Stadtteile von Mainz
Sonstige Angaben
Hinweise: Alle Angaben nach bestem Wissen. Irrtum und Zwischenverkauf vorbehalten. Der Käufer zahlt im Erfolgsfall an die Firma WOHNRAUM Immobilien Nargang e.K. eine Maklerprovision in Höhe von 3,57 % inkl. 19% MwSt.. Die Provision errechnet sich aus dem beurkundeten Kaufpreis. Der Immobilienmakler hat einen provisionspflichtigen Maklervertrag in gleicher Höhe mit dem Verkäufer abgeschlossen. Dieses Exposé ist eine Vorinformation, als Rechtsgrundlage gilt allein der notariell abgeschlossene Kaufvertrag. Die im Exposé und etwaigen Anlagen und Plänen enthaltenen Angaben und Objektbeschreibungen beruhen ausschließlich auf Angaben des Verkäufers oder sonstiger Dritter. Deren sachliche Richtigkeit haben wir nicht überprüft. Für die Richtigkeit und Vollständigkeit unserer Angebote und Ihrer künftigen Ergänzungen können wir keine Haftung übernehmen Widerrufsbelehrung: Widerrufsrecht Sie haben das Recht, binnen vierzehn Tagen ohne Angabe von Gründen diesen Vertrag zu widerrufen. Die Widerrufsfrist beträgt vierzehn Tage ab dem Tag des Vertragsabschlusses. Um Ihr Widerrufsrecht auszuüben, müssen Sie uns WOHNRAUM Immobilien Nargang e.K. Eric Nargang, Rheinallee 73, 55118 Mainz,Tel: 06131-62 999 42, Fax: 06131-62 99943 www.wohnraum-nargang.de, mail@wohnraum-nargang.de mittels einer eindeutigen Erklärung (z. B. ein mit der Post versandter Brief, Telefax oder E-Mail) über Ihren Entschluss, diesen Vertrag zu widerrufen, informieren. Sie können dafür das beigefügte Muster-Widerrufsformular verwenden, das jedoch nicht vorgeschrieben ist. Zur Wahrung der Widerrufsfrist reicht es aus, dass Sie die Mitteilung über die Ausübung des Widerrufsrechts vor Ablauf der Widerrufsfrist absenden. Folgen des Widerrufs Wenn Sie diesen Vertrag widerrufen, haben wir Ihnen alle Zahlungen, die wir von Ihnen erhalten haben, unverzüglich und spätestens binnen vierzehn Tagen ab dem Tag zurückzuzahlen, an dem die Mitteilung über Ihren Widerruf dieses Vertrags bei uns eingegangen ist. Für diese Rückzahlu...
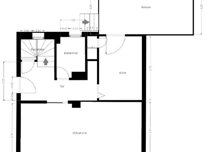
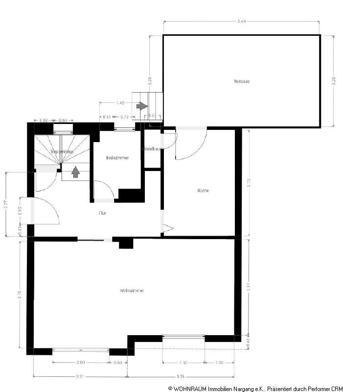
Grundriss
Grundriss KG
>
>
Grundriss EG
>
>
Grundriss OG
>
>
Grundriss DG
>
>
Adresse
55131 Mainz
Interessante Orte
Preis- und Lageinformationen
Preistrend für Bestandsimmobilien in Oberstadt