Dieses charmante Einfamilienhaus in Rödermark wurde 1982 erbaut und zuletzt im Jahr 2000 modernisiert. Mit einer Wohnfläche von ca. 190 m² und einer Grundstücksgröße von ca. 254 m² bietet es viel Platz für die ganze Familie. Das Haus verfügt über 7 Zimmer, 2 Badezimmer und ein Gäste-WC. Die Ölheizung sorgt für wohlige Wärme, und ein Carport bietet Platz für Ihr Fahrzeug. Das Haus ist voll unterkellert und bietet somit zusätzlichen Stauraum. Die normale Innenausstattung lässt Raum für individuelle Gestaltungswünsche. Dieses Haus steht zum Verkauf und ist nicht vermietet.
Gepflegtes Einfamilienhaus mit 7 Zimmern in Rödermark
Bruchwiesenstraße 53,
63322 Rödermark
Auf Karte anzeigen
Finanzierungszertifikat
In nur zwei Minuten zu Ihrem persönlichen Finanzierungszertifkat.
Infos
| Haustyp | Doppelhaushaelfte |
|---|---|
| Etagenzahl | 3 |
| Wohnfläche ca. | 190 m2 |
| Nutzfläche | 190 m2 |
| Grundstücksfläche | 254 m2 |
| Zimmer | 7 |
| Schlafzimmer | 2 |
| Badezimmer | 2 |
| Garage/Stellplatz | Carport |
| Anzahl Garage/Stellplatz | 1 |
Kosten
| Kaufpreis |
517.000 € |
|---|---|
| Provision | Nein |
Finanzierungsrechner:
Kaufpreis:
600.000 €
Eigenkapital:
600.000 €
Monatliche Rate
0 €
Effektiver Jahreszins
0 %
Sollzinsbindung
10 Jahre
Bausubstanz & Energieausweis
| Baujahr | 1982 |
|---|---|
| Letzte Sanierung | 2000 |
| Bauphase | Haus fertig gestellt |
| Qualität der Austattung | Normal |
| Heizungsart | Öl-Heizung |
| Wesentliche Energieträger | Öl |
| Energieausweis | liegt zur Besichtigung vor |
Beschreibung des Objekts
Lage
Rödermark ist eine Stadt im Landkreis Offenbach, Hessen. Die Stadt bietet eine gute Infrastruktur mit Einkaufsmöglichkeiten für den täglichen Bedarf sowie Ärzten und Apotheken. Die Anbindung an den öffentlichen Nahverkehr ist durch Buslinien gegeben, die Sie schnell in die umliegenden Städte und Gemeinden bringen. Nahegelegene Grünflächen und Naherholungsgebiete laden zu Freizeitaktivitäten im Freien ein.
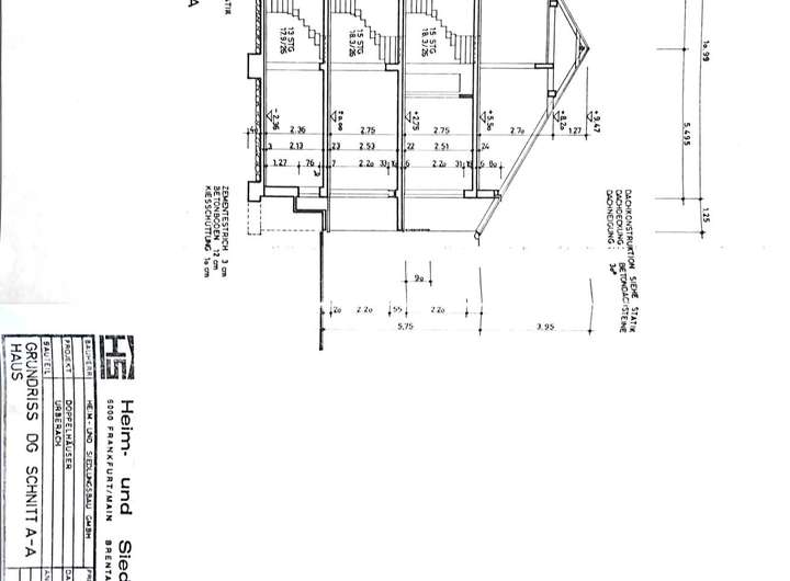
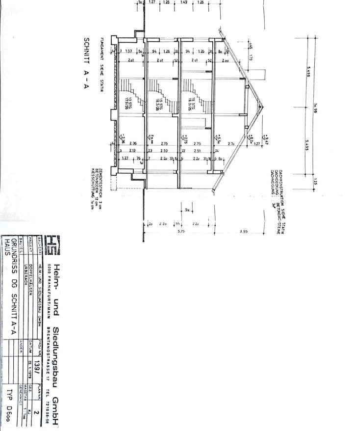
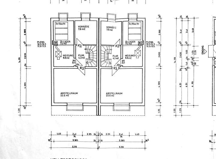
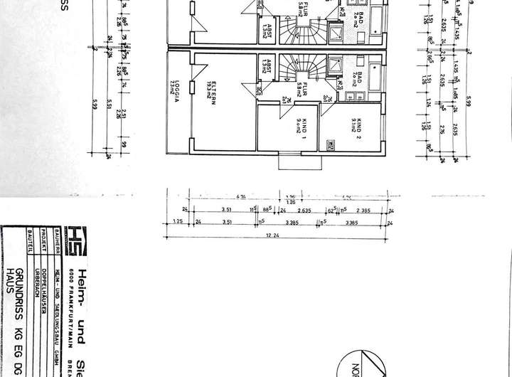
Grundriss
Plan_EG
>
>
Plan_OG
>
>
Plan_DG
>
>
Plan_Keller
>
>
Plan_Seitenansicht
>
>
Adresse
Bruchwiesenstraße 53, 63322 Rödermark
Interessante Orte
Preis- und Lageinformationen
Preistrend für Bestandsimmobilien in Rödermark