FEELS LIKE HOME. LOOKS LIKE YOU. Ein Zuhause, das deine Handschrift trägt – individuell, durchdacht und bezahlbar. Dein Traum vom Eigenheim ist näher, als du denkst. Warum warten? START YOUR HOME JOURNEY TODAY.
Heute dein Zuhause, morgen deine Zukunft.
04610 Meuselwitz
Die vollständige Adresse der Immobilie erhalten Sie vom Anbieter.
Auf Karte anzeigen
Die vollständige Adresse der Immobilie erhalten Sie vom Anbieter.

Finanzierungszertifikat
In nur zwei Minuten zu Ihrem persönlichen Finanzierungszertifkat.
Infos
Haustyp | Einfamilienhaus |
---|---|
Wohnfläche ca. | 155 m2 |
Nutzfläche | 0 m2 |
Grundstücksfläche | 1.400 m2 |
Zimmer | 5 |
Schlafzimmer | 4 |
Badezimmer | 1 |
Anzahl Garage/Stellplatz | 0 |
Kosten
Kaufpreis |
404.011 € |
---|---|
Provision | Nein |
Finanzierungsrechner:
Kaufpreis:
600.000 €
Eigenkapital:
600.000 €
Monatliche Rate
0 €
Effektiver Jahreszins
0 %
Sollzinsbindung
10 Jahre
Bausubstanz & Energieausweis
Baujahr | 2026 |
---|---|
Bauphase | Haus in Planung (projektiert) |
Qualität der Austattung | Gehoben |
Heizungsart | Wärmepumpe |
Beschreibung des Objekts
Ausstattung
THINK BLACK – All in. - Schlüsselfertig & sofort bezugsbereit – ohne zusätzlichen Aufwand - Kompletter Innenausbau – keine Handwerkersuche, kein Planungsstress - Durchdachte Raumaufteilung – moderne Wohnkonzepte für jede Lebensphase - Innovative Haustechnik – zukunftssicheres Wohnen mit höchster Effizienz - Maximaler Komfort – alles fertig, alles drin Für alle, die einfach einziehen und losleben wollen!
Lage
Ihr Traumhaus – genau dort, wo Sie sich zuhause fühlen. Wir bauen nicht einfach nur Häuser – wir schaffen Lebensräume. Und das an dem Ort, der für Sie zählt. Dieses Angebot ist nicht zwingend an das zur Zeit der Anzeigenerstellung verfügbare Grundstück gebunden. Sie besitzen ein Baugrundstück? Dann kommen Sie gern auf mich zu! Viele unserer zukünftigen Baufamilien sind noch auf der Suche nach dem perfekten Platz für ihr neues Zuhause. Vielleicht ist genau Ihr Grundstück der Schlüssel zum Traum vom Eigenheim. Wir bringen Familien und Bauplätze zusammen – zuverlässig, persönlich und mit Herz!
Sonstige Angaben
Vereinbare einen persönlichen Beratungstermin, um über Deinen Haustraum und das angebotene Objekt zu sprechen. Bitte beachte, dass die dargestellten Bilder und Grundrisse nur beispielhaft sind und unter Umständen Sonderbauteile enthalten, die nicht im angegebenen Preis enthalten sind. Hab außerdem bitte Verständnis dafür, dass weitere Details zum angebotenen Grundstück erst nach einem persönlichen Gespräch bekanntgegeben werden und nur vollständige Anfragen bearbeitet werden können.
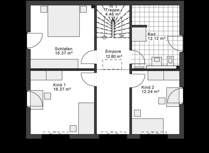
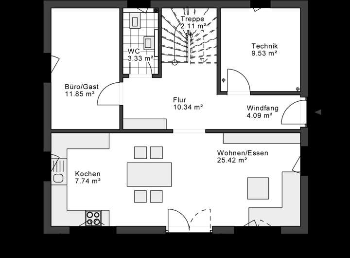
Grundriss
Grundriss EG
>

Grundriss OG
>

Adresse
04610 Meuselwitz
Interessante Orte
Preis- und Lageinformationen
Preistrend für Bestandsimmobilien in Meuselwitz