Das Reihenhausgrundstück liegt am Ende einer kleinen Sackgasse im gemeinschaftlichen Privateigentum. Die Besonderheit ist hier, dass es nur über diese private Sackgasse zu erreichen ist. Es ist das neunte (End-)Haus. Der Garten wird ausschliesslich von anderen Gärten begrenzt. Ideal für kleine Kinder.
Zum Haus gehört ein Miteigentumsanteil an einer Garagenhof-, Verkehrs- und Wegefläche und das Nutzungsrecht an einer Garage. Eine Zentral-Ölheizung bedient alle 9 Wohneinheiten.
Der Altbau ist voll-unterkellert, der Anbau nicht. Baujahr 1969. ImJahr 1991 wurde ein Anbau und ein Wintergarten hinzugefügt, sowie die Nordseite des Altbaus gedämmt.
Das Haus ist unbewohnt.
Der Dachboden-Altbau hat einen massiven Betonboden aber darüber keinerlei Dämmung, auch nicht zwischen den Dachbalken.
Hier wäre der größte Hebel, um den Energieverbrauch zu drücken.
Die Immobilie wird im derzeitigen Zustand (wie gesehen) verkauft. Jegliche Gewährleistungsansprüche, insbesondere für Sachmängel, sind ausgeschlossen, soweit dies gesetzlich zulässig ist. Alle Zahlen sind laut bestem Wissen und Gewissen. Massgeblich sind die Zahlen im Kaufvertrag.
Keine Maklergebühr !
Reihenendhaus an Privatweg, sehr sichere, ruhige Lage mit Anbau & Wintergarten
31303 Burgdorf
Die vollständige Adresse der Immobilie erhalten Sie vom Anbieter.
Auf Karte anzeigen
Die vollständige Adresse der Immobilie erhalten Sie vom Anbieter.
Finanzierungszertifikat
In nur zwei Minuten zu Ihrem persönlichen Finanzierungszertifkat.
Infos
| Haustyp | Reiheneckhaus |
|---|---|
| Etagenzahl | 2 |
| Wohnfläche ca. | 153 m2 |
| Nutzfläche | 211 m2 |
| Grundstücksfläche | 363 m2 |
| Bezugsfrei ab | 1.2.2026 |
| Zimmer | 6 |
| Badezimmer | 2 |
| Garage/Stellplatz | Garage |
| Anzahl Garage/Stellplatz | 1 |
Kosten
| Kaufpreis |
405.000 € |
|---|---|
| Provision | Nein |
Finanzierungsrechner:
Kaufpreis:
600.000 €
Eigenkapital:
600.000 €
Monatliche Rate
0 €
Effektiver Jahreszins
0 %
Sollzinsbindung
10 Jahre
Bausubstanz & Energieausweis
| Baujahr | 1969 |
|---|---|
| Letzte Sanierung | 1991 |
| Bauphase | Haus fertig gestellt |
| Heizungsart | Zentralheizung |
| Wesentliche Energieträger | Öl |
| Energieausweis | liegt vor |
| Energieausweistyp | Bedarfsausweis |
| Energieverbrauchskennwert | 186,1 kWh/(m²*a) |
| Energieeffizienzklasse | F |
186,1
kWh/(m²*a)
Energieeffizienzklasse F
- A+
- A
- B
- C
- D
- E
- F
- G
- H
- 0
- 25
- 50
- 75
- 100
- 125
- 150
- 175
- 200
- 225
- >250
Beschreibung des Objekts
Ausstattung
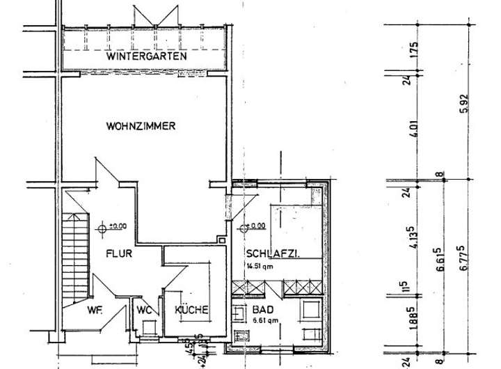
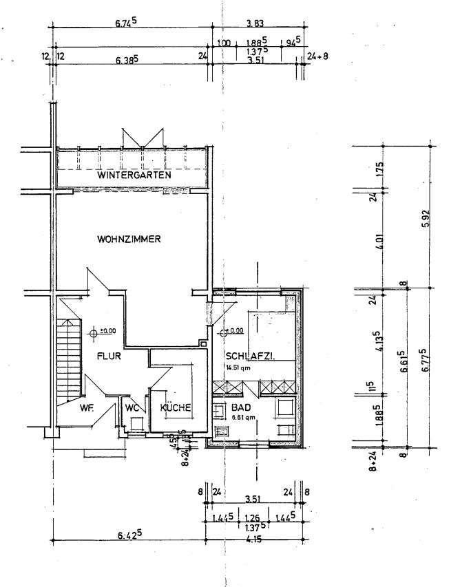
Neben den beiden Badezimmern gibt es noch ein kleines Gästeklo im EG.
Das Haus hat einen eigenen Glasfaser-Internet-Anschluss.
Heizung ist über die Zentral-Ölheizung.
Warmwasser ist über zwei elektrische Durchlauferhitzer.
Lage
Burgdorf ist eine über die A37 angeschlossene 30,000-Stadt im Speckgürtel von Hannover. Burgdorf gilt als sehr sicher und hat gute Schulen für alle Alterklassen. Zur Astrid-Lindgren-Grundschule sind es zu Fuß 12 min.
Sonstige Angaben
Bitte keine Makler.
Bitte schreiben Sie mir über eine immoscout-Nachricht unter Angabe Ihrer Telefonnummer. Ich rufe Sie dann zeitnah zurück und beantworte gerne weitere Fragen. Auch eine Besichtigung können wir zeitnah verabreden.
Bitte fügen Sie der Nachricht ein paar einfache Informationen von sich bei:
Finanzierungsart: Haben Sie bereits eine Finanzierung in Aussicht oder sind Sie auf der Suche nach einer Bank?
Kaufmotiv: Ist es für den Eigenbedarf, als Kapitalanlage oder für eine andere Nutzung?
Dringlichkeit: Gibt es einen Zeitrahmen, in dem Sie das Haus erwerben möchten? Wann sollte der Bezug sein ?
Grundriss
Grundriss_EG
>
>
Keller
>
>
OG_nach_Anbau
>
>
Seitenansicht
>
>
Adresse
31303 Burgdorf
Interessante Orte
Preis- und Lageinformationen
Preistrend für Bestandsimmobilien in Burgdorf