Dieses Einfamilienhaus mit Teilkeller und Garagenhaus wurde 1964 auf einem wunderschönen Grundstück mit ca. 1.142 m² erbaut.
Die Lage ist einmalig schön ! Auf der gegenüberliegenden Straßenseite befindet sich ein Landschaftsschutzgebiet mit freiem Blick auf die Wiesen !
Der Bodenrichtwert vom Gutachterausschuss Hamburg beträgt EURO 590,00 / m² ( Stand 01.01.25 )
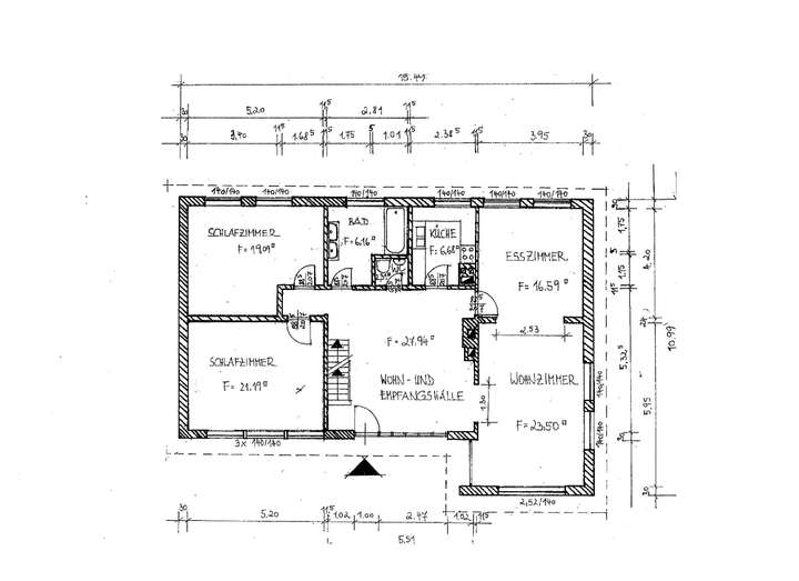
Die Voreigentümer hatten 1991 den Dachboden ausbauen lassen. Bei dieser ausgebauten Fläche handelt es sich um eine Nutzfläche ca. 40 m². Im Erdgeschoss beträgt die Wohnfläche ca. 120 m² ohne Terrassenanteil.
Der offene Dielenbereich mit dem Kamin ist sehr großzügig und repräsentativ. In allen Räumen im Erdgeschoss befindet sich Stäbchen Parkett.
Das Einfamilienhaus bietet eine sehr schöne Raumaufteilung. Alle Zimmer sind großzügig geschnitten und bieten beste Stellmöglichkeiten.
Der Kellerbereich ist auch über eine Außentreppe vom Garten zu erreichen und bietet viel Staufläche.
Beheizt wird das Haus über eine Ölzentralheizung. Ein Gasanschluß befindet sich direkt an der Straße.
Mit Hilfe der Bilder möchten wir Ihnen dieses Haus einmal vorstellen und Sie neugierig auf eine Besichtigung machen.
Sofort frei ! Walmdach Einfamilienhaus in Toplage von Duvenstedt für eine Kernsanierung
Kakenhaner Weg 80,
22397 Hamburg
Auf Karte anzeigen
Finanzierungszertifikat
In nur zwei Minuten zu Ihrem persönlichen Finanzierungszertifkat.
Infos
| Haustyp | Einfamilienhaus |
|---|---|
| Wohnfläche ca. | 120 m2 |
| Nutzfläche | 80 m2 |
| Grundstücksfläche | 1.142 m2 |
| Bezugsfrei ab | sofort frei |
| Zimmer | 4 |
| Schlafzimmer | 3 |
| Badezimmer | 2 |
| Garage/Stellplatz | Garage |
| Anzahl Garage/Stellplatz | 2 |
Kosten
| Kaufpreis |
598.500 € |
|---|---|
| Provision |
2.5 % inkl.Mwst. bezogen auf den Kaufpreis. Wir haben einen entgeltpflichtigen Maklervertrag über den gleichen Provisionssatz mit dem Verkäufer abgeschlossen. ( Maklervertrag mit beiden Seiten gem. § 656 c BGB ) Die Provision ist nach Abschluss des not. Kaufvertrages an uns zu zahlen. |
Finanzierungsrechner:
Kaufpreis:
600.000 €
Eigenkapital:
600.000 €
Monatliche Rate
0 €
Effektiver Jahreszins
0 %
Sollzinsbindung
10 Jahre
Bausubstanz & Energieausweis
| Baujahr | 1964 |
|---|---|
| Objektzustand | Renovierungsbedürftig |
| Qualität der Austattung | Normal |
| Heizungsart | Zentralheizung |
| Wesentliche Energieträger | Öl |
| Energieausweis | liegt vor |
| Energieausweistyp | Bedarfsausweis |
| Energieverbrauchskennwert | 371,9 kWh/(m²*a) |
| Energieeffizienzklasse | H |
371,9
kWh/(m²*a)
Energieeffizienzklasse H
- A+
- A
- B
- C
- D
- E
- F
- G
- H
- 0
- 25
- 50
- 75
- 100
- 125
- 150
- 175
- 200
- 225
- >250
Beschreibung des Objekts
Ausstattung
Diese klassischen Walmdach Anwesen in Toplagen sind bei Kaufinteressenten beliebt, die eine Kernsanierung in die Kaufentscheidung einbeziehen.
Umfangreiche Arbeiten stehen auch bei diesem Haus an und lohnen sich, da die Bausubstanz sehr solide ist.
Auf Wunsch können wir Ihnen einen Energieberater für die energetischen Sanierungsmaßnahmen empfehlen sowie eine erfahrende Baufinanziererin.
Lage
Der Kakenhaner Weg ist gerade bei jungen Familien eine begehrte Lage, da die Schulen, Kindergärten und die Einkaufsmöglichkeiten auch zu Fuß schnell und sicher erreichbar sind.
Duvenstedt bietet eine sehr gute Anbindung an den öffentlichen Nahverkehr und eine Vielzahl an Sach-und Fachgeschäften.
Sonstige Angaben
Alle Angaben und Informationen haben wir von den Eigentümern erhalten und können für die Richtigkeit dieser Angaben oder Aussagen keine Gewähr übernehmen.
Über verbaute nicht sichtbare Baumaterialien können wir keine Angaben machen.
Wir müssen uns Irrtümer und Auslassungen sowie einen kurzfristigen Zwischenverkauf immer vorbehalten.
Bei Interesse an diesem Angebot nehmen Sie gern Kontakt zu uns auf. Wir senden Ihnen dann unser Expose sowie weitere relevante Unterlagen zu.
Grundriss
Erdgeschoss
>
>
Dachgeschoss
>
>
Kellergeschoss
>
>
Adresse
Kakenhaner Weg 80, 22397 Hamburg
Interessante Orte
Preis- und Lageinformationen
Preistrend für Bestandsimmobilien in Duvenstedt