Dieses großzügige Ein-/Zweifamilienhaus wurde etwa im Jahr 1924 in solider, massiver Bauweise errichtet und bietet auf insgesamt ca. 152 m² Wohnfläche vielfältige Nutzungsmöglichkeiten für Familien mit Platzbedarf. Das Haus besticht durch seine ruhige, dörfliche Lage in Hamburg-Spadenland, nur wenige Minuten von der Elbe entfernt, sowie durch das außergewöhnlich große Grundstück mit einer Fläche von insgesamt ca. 2.318 m².
Das Grundstück setzt sich aus zwei Flurstücken (Flurstück 1112 mit ca. 1.342 m² Gartenbauland und Flurstück 1113 mit ca. 976 m²) zusammen. Die Umgebung ist geprägt von Einfamilienhäusern und landwirtschaftlichen Flächen.
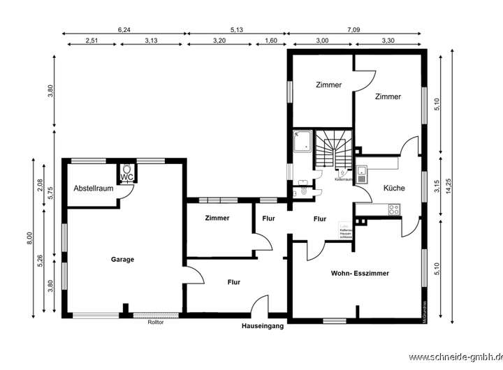
Über den seitlich gelegenen Hauseingang, der sich direkt an der Zufahrt befindet, ist das Wohnhaus zugänglich. Das Erdgeschoss verfügt über eine Wohnfläche von ca. 100 m². Mittelpunkt dieser Ebene ist der großzügige, offene Wohn- und Essbereich, der sich harmonisch mit der Küche verbindet. Die Küche kann zusätzlich auch über den Flur betreten werden. Zwei der insgesamt drei weiteren Zimmer im Erdgeschoss sind direkt von der Küche zu erreichen. Ein helles Duschbad sowie ein separates WC komplettieren das Raumangebot im Erdgeschoss.
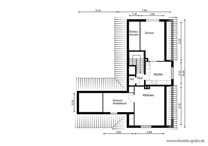
Über eine massive Betontreppe vom Flur aus gelangt man in das Dachgeschoss, das im Jahr 1965 ausgebaut wurde und ca. 52 m² Wohnfläche umfasst. Hier befinden sich ein kleiner Flur, eine Küche, mit Zugang in ein Zimmer mit großem Einbauschrank, ein Wohnzimmer zuzüglich einem weiteren kleineren Zimmer (Büro oder Abstellraum) und abschließend ein separates WC. Der über dem Dachgeschoss befindliche Spitzboden bietet zusätzliche Abstellmöglichkeiten.
An das Wohnhaus grenzt die im Jahr 1972 errichtete, beheizbare Garage mit einer Grundfläche von ca. 8 x 6 Metern. Sie verfügt über Fenster, Heizkörper, ein separates WC, einen Waschmaschinenanschluss sowie einen direkten Zugang ins Haus. Damit bietet dieser Bereich ideale Voraussetzungen für Hobby, Werkstatt oder zusätzliche Abstellflächen.
Diverse weitere Stellplatzmöglichkeiten sind auf dem Grundstück vorhanden.
Das Wohnhaus präsentiert sich insgesamt in einem renovierungs- und modernisierungsbedürftigen Zustand, bietet jedoch aufgrund seiner Größe, Lage und Raumstruktur ein enormes Potenzial für individuelle Wohnideen. Mit handwerklichem Geschick lässt sich hier ein Zuhause schaffen, das den Charme vergangener Zeiten mit modernen Wohnansprüchen vereint.
Weitere Einzelheiten entnehmen Sie bitte den nachfolgenden Ausführungen und den beigefügten Grundrissen.
Handwerker aufgepasst – großes Ein-/Zweifamilienhaus mit Traumgrundstück in Hamburg-Spadenland
21037 Hamburg
Die vollständige Adresse der Immobilie erhalten Sie vom Anbieter.
Auf Karte anzeigen
Die vollständige Adresse der Immobilie erhalten Sie vom Anbieter.
Finanzierungszertifikat
In nur zwei Minuten zu Ihrem persönlichen Finanzierungszertifkat.
Infos
| Haustyp | Einfamilienhaus |
|---|---|
| Wohnfläche ca. | 152 m2 |
| Nutzfläche | 40 m2 |
| Grundstücksfläche | 2.318 m2 |
| Bezugsfrei ab | Nach Absprache |
| Zimmer | 7 |
| Garage/Stellplatz | Garage |
| Anzahl Garage/Stellplatz | 1 |
Kosten
| Kaufpreis |
370.000 € |
|---|---|
| Provision |
3,57 % des Kaufpreises inkl. 19 % USt |
Finanzierungsrechner:
Kaufpreis:
600.000 €
Eigenkapital:
600.000 €
Monatliche Rate
0 €
Effektiver Jahreszins
0 %
Sollzinsbindung
10 Jahre
Bausubstanz & Energieausweis
| Baujahr | 1924 |
|---|---|
| Heizungsart | Zentralheizung |
| Wesentliche Energieträger | Gas |
| Energieausweis | liegt vor |
| Energieausweistyp | Bedarfsausweis |
| Energieverbrauchskennwert | 329,6 kWh/(m²*a) |
| Energieeffizienzklasse | H |
329,6
kWh/(m²*a)
Energieeffizienzklasse H
- A+
- A
- B
- C
- D
- E
- F
- G
- H
- 0
- 25
- 50
- 75
- 100
- 125
- 150
- 175
- 200
- 225
- >250
Beschreibung des Objekts
Ausstattung
Baustoffe, usw.:
- Massive Bauart
- Rotsteinverblend
- Luftschichtmauerwerk ca. 5 bis 8 cm
- Satteldach mit Tondachpfannen in Zementmörtel (Bj. ca. 1965)
- Dachschrägen nicht gedämmt
- Holzbalkendecke (EG/DG)
- Fallrohre und Dachrinnen aus Kunststoff
- Bleileitungen im Kellergeschoss sind nicht ausgeschlossen
Fenster/Tür/Treppe/Bodenbeläge:
- Überwiegend Kunststofffenster mit Zweifachverglasung (ca. Bj. 1980) im Erd- und Dachgeschoss
- Kunststoff-Haustür
- Holz-Innentüren und Zargen
- Marmorfensterbänke
- Betontreppe mit Terazzobelag und Handlauf
- Fußböden: Fliesen, Laminat, Dielenböden, Teppichboden, PVC
Sanitärobjekte:
Duschbad (Erdgeschoss):
- Wand- und Bodenfliesen (weiß/grau)
- Dusche mit Kunststoff-Duschabtrennung
- Waschbecken
- Handtuchheizkörper
WC (Erdgeschoss):
- WC mit u.P. Spülkasten
- Waschbecken
WC (Dachgeschoss) sanierungsbedürftig
Heizungsanlage:
- Gas-Zentralheizung (Bj. 2003, Fa. Vaillant )
- Warmwasseraufbereitung über Durchlauferhitzer
- Plattenheizkörper
Lage
Das Objekt befindet sich ländlich gelegen in Hamburg-Spadenland, nahe des Elbdeich.
Der kleinste Ortsteil der Marschlande ist der nur 3,4 km² große und mit 506 Einwohnern bewohnte Spadenländer.
Er liegt im westlichsten Teil der Vier- und Marschlande direkt an der Elbe. Idyllische Häuser direkt am Deich zeugen von der ländlichen Ruhe obwohl direkt in der Nähe das Leben von Hamburg beginnt.
Weite Landflächen mit Gemüseanbau und Hofläden laden zum Verweilen und Einkauf ein.
Die Hamburger City sowie die Innenstadt von Hamburg-Bergedorf erreichen Sie mit dem Pkw in jeweils ca. 20 Minuten.
Verschiedene Ärzte, zwei Kindergärten und eine Grundschule befinden sich in Ochsenwerder. Weiterführende Schulen sind im benachbarten Kirchwerder oder in Bergedorf vorhanden.
Einkaufe für den täglichen Bedarf (z.B. Edeka, Getränkemarkt, Apotheke, Friseur, Imbiss) können im benachbarten Fünfhausen getätigt werden.
Sonstige Angaben
• Die Straße "Dorferbogen" ist noch nicht endgültig hergestellt. Der Anschluss an die öffentliche Versorgung für Strom, Gas, Wasser, Abwasser und Telefon ist vorhanden.
• Etwaige Sielbaubeiträge sind weder offen noch verrentet.
Das Flurstück 1112 ist zurzeit nach § 2 Abs. 2 des Sieabgabengesetzes beitragsfrei, da es unbebaut ist und im Außenbereich liegt. Für das Siel, bezogen auf das Flurstück 1113, werden keine Siebaubeiträge mehr erhoben.
• Das Grundbuch wird lastenfrei in Abteilung II. geliefert. In Abteilung III. sind Eintragungen vorhanden. Weitere Informationen gerne auf Anfrage.
• Baulasten: Gemäß Auskunft aus dem Baulastenverzeichnis sind keine Eintragungen vorhanden.
• Altlasten: Gemäß Auskunft aus dem Altlastenhinweiskataster sind keine Eintragungen vorhanden.
• Das Objekt wird frei übergeben.
• Übergabe nach Absprache.
• Kaufnebenkosten: Die Grunderwerbssteuer (5,5 % des Kaufpreises) & Notar- und Gerichtskosten (ca. 1,6 % des Kaufpreises) sind vom Käufer zu tragen.
• Dieses Immobilienangebot ist provisionspflichtig für Käufer und Verkäufer. Bei Abschluss eines notariellen Kaufvertrags zahlt sowohl der Käufer als auch der Verkäufer eine Maklercourtage von 3,57 % des Kaufpreises (inkl. gesetzlicher Umsatzsteuer). Die Zahlung erfolgt an die Firma Schneide GmbH, die einen direkten Anspruch auf diese Beträge gegenüber den Vertragspartnern hat.
Für weitere Informationen stehen wir Ihnen vorab gern zur Verfügung.
Grundriss
Grundriss Erdgeschoss
>
>
Grundriss Dachgeschoss
>
>
Adresse
21037 Hamburg
Interessante Orte
Preis- und Lageinformationen
Preistrend für Bestandsimmobilien in Spadenland