Willkommen in Ihrem neuen Zuhause – dieses hochwertig modernisierte Doppelhaushälfte liegt in ruhiger Hanglage eines gepflegten Wohngebiets und bietet Ihnen lichtdurchflutete Räume, moderne Ausstattung sowie einen herrlichen Blick ins Grüne.
Bereits beim Betreten überzeugt das Haus durch seinen durchdachten Eingangsbereich mit großformatigen Bodenfliesen und stilvoller Treppe. Der offen gestaltete Wohnbereich im Obergeschoss begeistert mit warmem Echtholzboden und einem Kamin, der eine gemütliche Atmosphäre schafft. Große Fenster lassen viel Tageslicht herein und bieten einen harmonischen Übergang zum Balkon – ideal für entspannte Stunden im Freien.
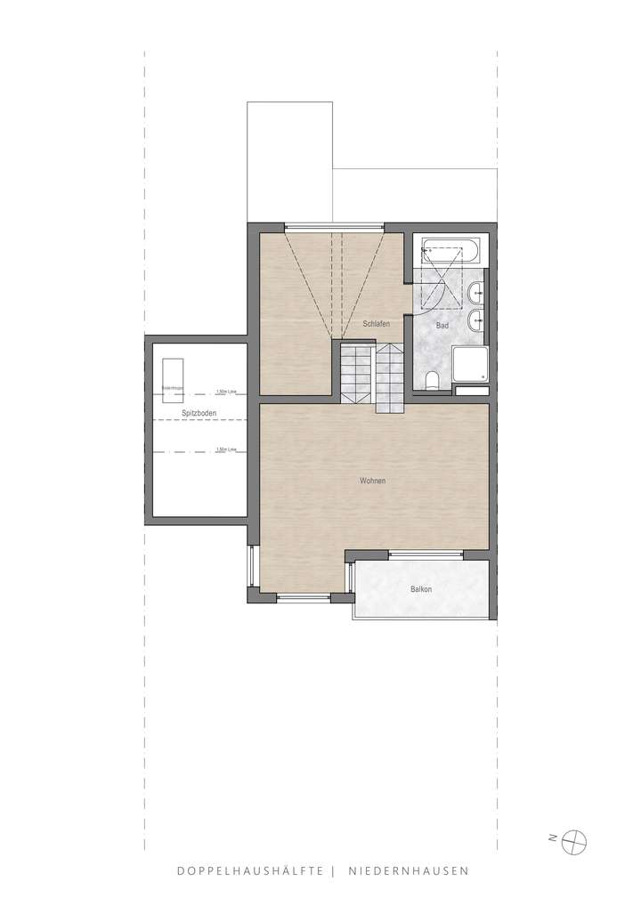
Im Dachgeschoss erwartet Sie ein großzügiger, ruhiger Raum mit charakteristischer Dacharchitektur und großen Fenstern, die eine helle und freundliche Stimmung erzeugen. Der hochwertige Parkettboden rundet das stilvolle Ambiente ab und eignet sich perfekt als Schlafzimmer oder Homeoffice. Ein En-Suite-Bad schließt sich direkt an das Schlafzimmer an und unterstreicht den hochwertigen Wohncharakter der Immobilie.
Auch der Außenbereich überzeugt: Ein gepflasterter Zugang mit Hochbeeten und gepflegten Grünflächen führt zum Haus und unterstreicht den gepflegten Gesamteindruck. Die erhöhte Lage bietet nicht nur Privatsphäre, sondern auch einen traumhaften Fernblick auf die umliegenden Hügel und Natur. Ein schöner Garten mit großzügiger Terrasse lädt zusätzlich zum Verweilen und für genügend individuelle Gestaltung ein.
Ob für Paare oder Familien – dieses Haus vereint modernes Wohnen mit viel Charme und Ruhe in naturnaher Umgebung. Einziehen und wohlfühlen!
Saniertes Haus mit Charakter in Hanglage im Taunus - Garten, Garage, Kamin u. v. m.
65527 Niedernhausen
Die vollständige Adresse der Immobilie erhalten Sie vom Anbieter.
Auf Karte anzeigen
Die vollständige Adresse der Immobilie erhalten Sie vom Anbieter.
Finanzierungszertifikat
In nur zwei Minuten zu Ihrem persönlichen Finanzierungszertifkat.
Infos
| Haustyp | Doppelhaushaelfte |
|---|---|
| Etagenzahl | 2 |
| Wohnfläche ca. | 180 m2 |
| Grundstücksfläche | 345 m2 |
| Bezugsfrei ab | nach Absprache |
| Zimmer | 4 |
| Schlafzimmer | 3 |
| Badezimmer | 2 |
| Garage/Stellplatz | Garage |
| Anzahl Garage/Stellplatz | 2 |
Kosten
| Kaufpreis |
629.900 € |
|---|---|
| Provision | Nein |
Finanzierungsrechner:
Kaufpreis:
600.000 €
Eigenkapital:
600.000 €
Monatliche Rate
0 €
Effektiver Jahreszins
0 %
Sollzinsbindung
10 Jahre
Bausubstanz & Energieausweis
| Baujahr | 1984 |
|---|---|
| Letzte Sanierung | 2025 |
| Objektzustand | Erstbezug nach Sanierung |
| Qualität der Austattung | Gehoben |
| Heizungsart | Gas-Heizung |
Beschreibung des Objekts
Ausstattung
-Fußbodenheizung für angenehmes Raumklima
-Moderne Haustechnik auf aktuellem Stand
-En-Suite-Badezimmer am Hauptschlafzimmer
-Großer Balkon mit Ausblick
-Weitläufige Terrasse mit viel Platz zum Entspannen
-Stilvoller Kamin im Wohnzimmer für behagliche Atmosphäre
-Garage und zusätzlicher Außenstellplatz
-Drei großzügige Schlafzimmer mit flexibler Nutzungsmöglichkeit
Lage
Niedernhausen liegt im südhessischen Rheingau-Taunus-Kreis und bietet die perfekte Kombination aus naturnahem Wohnen und hervorragender Anbindung an die Metropolregion Rhein-Main. Eingebettet in eine grüne Hügellandschaft am Rande des Taunus, überzeugt die Gemeinde durch ihre ruhige, familienfreundliche Umgebung – ideal für alle, die dem hektischen Stadtleben entfliehen möchten, ohne auf urbanen Komfort verzichten zu müssen.
Die verkehrstechnische Anbindung ist exzellent: Über den direkten Anschluss an die A3 sind Frankfurt am Main, Wiesbaden und Mainz in 20 bis 30 Minuten mit dem Auto erreichbar. Auch der internationale Flughafen Frankfurt ist in nur ca. 20 Minuten bequem erreichbar – ein großer Vorteil für Berufspendler oder Vielreisende.
Niedernhausen verfügt zudem über einen eigenen Bahnhof mit S-Bahn- und Regionalzug-Anbindung. Die S2 fährt im 30-Minuten-Takt bis nach Frankfurt Hauptbahnhof, während Regionalzüge eine schnelle Verbindung nach Wiesbaden, Limburg und Idstein bieten.
Trotz der Nähe zu den Großstädten bleibt das Lebensgefühl in Niedernhausen ländlich geprägt. Die Umgebung bietet zahlreiche Freizeitmöglichkeiten in der Natur: Wander- und Radwege, Wälder sowie der nahegelegene Naturpark Rhein-Taunus laden zu Aktivitäten im Grünen ein. Auch kulturell ist einiges geboten – mit Veranstaltungen in der Rhein-Main-Region sowie regionalen Festen und einem aktiven Vereinsleben.
Familien profitieren von einem guten Bildungs- und Betreuungsangebot, darunter mehrere Kindergärten, Grundschulen sowie weiterführende Schulen in der Umgebung.
Niedernhausen ist somit ein idealer Wohnort für alle, die die Nähe zur Stadt mit einem hohen Maß an Lebensqualität und Natur verbinden möchten – ruhig, grün und dennoch zentral gelegen.
Weitere Dokumente
Kurzexposé_DHH_NiedernhausenGrundriss
Am Schäfersberg_EG
>
>
Am Schäfersberg_OG
>
>
Am Schäfersberg_KG
>
>
Adresse
65527 Niedernhausen
Interessante Orte
Preis- und Lageinformationen
Preistrend für Bestandsimmobilien in Niedernhausen