Wir, die Tretter Real Estate GmbH, präsentieren Ihnen heute dieses exklusives Immobilienangebot.
Zum Verkauf steht ein saniertes Reiheneckhaus mit Garten in einer ruhigen, familienfreundlichen Wohngegend von Offenbach. Mit rund 115 m² Wohnfläche auf einem ca. 250 m² großen Grundstück bietet dieses Haus den perfekten Platz für Familien oder Paare, die modernes Wohnen in gepflegter Umgebung schätzen.
Das Haus wurde in den letzten vier Jahren umfassend saniert und präsentiert sich in einem bezugsfertigen, gepflegten Zustand:
- Neue Dacheindeckung mit zusätzlicher Dämmung
- Wärmedämmung der Außenfassade
- Modernisiertes Badezimmer und Gäste-WC
- Neuer Bodenbelag in den Wohnräumen
- Erneuerte Außenanlage und Balkon
Weitere Modernisierungen:
Elektrik (2002)
Fenster EG & 1. OG dreifach verglast (2003)
Fenster im Dachgeschoss dreifach verglast (2016)
Der Keller stammt aus dem Jahr 1927, das darüberliegende Wohnhaus wurde 1973 neu errichtet.
Durch solide Bauweise und kontinuierliche Modernisierung verbindet das Haus klassische Substanz mit zeitgemäßem Wohnkomfort.
Ihre Vorteile:
+ moderne Ausstattung
+ Einzug sofort möglich
+ Offene Küche mit großzügigem Wohn/Essbereich
+ Badezimmer und Gäste-WC mit Tageslicht
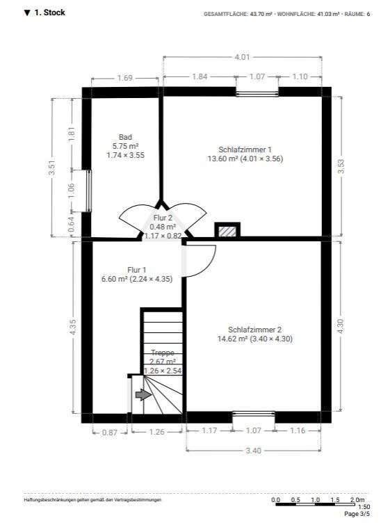
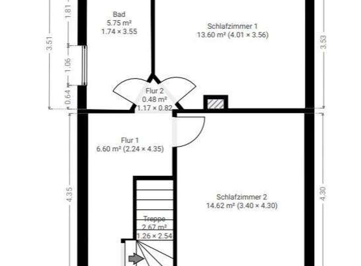
+ 4 Schlafzimmer, ideal für eine Familie
+ Keller mit viel Stauraum
+ dreifachverglaste Fenster
+ Garten
Wir legen höchsten Wert auf Diskretion, Qualität und individuellen Service. Unser Ziel ist es, Ihnen nicht nur ein Haus zu vermitteln, sondern einen Ort, an dem Sie Ihr Leben in vollen Zügen genießen können.
Wir laden Sie herzlich ein, sich dieses besondere Angebot im Rahmen einer privaten Besichtigung näher anzusehen. Zögern Sie nicht, uns für weitere Informationen oder einen individuellen Termin zu kontaktieren.
***Ihr neues Zuhause in Offenbach – saniertes Reiheneckhaus mit Garten***
63071 Offenbach am Main
Die vollständige Adresse der Immobilie erhalten Sie vom Anbieter.
Auf Karte anzeigen
Die vollständige Adresse der Immobilie erhalten Sie vom Anbieter.
Finanzierungszertifikat
In nur zwei Minuten zu Ihrem persönlichen Finanzierungszertifkat.
Infos
| Haustyp | Reiheneckhaus |
|---|---|
| Etagenzahl | 4 |
| Wohnfläche ca. | 115 m2 |
| Grundstücksfläche | 250 m2 |
| Bezugsfrei ab | sofort |
| Zimmer | 5 |
| Schlafzimmer | 4 |
| Badezimmer | 1 |
| Anzahl Garage/Stellplatz | 1 |
Kosten
| Kaufpreis |
569.000 € |
|---|---|
| Provision |
3,57% inklusive 19% Mehrwertsteuer Maßgeblich für die Berechnung der Vergütung ist der ausgehandelte und in dem Hauptvertrag beurkundete Kaufpreis. Die Provision wird bei Vertragsschluss fällig. Als Vertragsabschluss gilt im Falle des Grundstückserwerbs die Beurkundung des Kaufvertrags. Dies gilt auch dann, wenn der Abschluss des Kaufvertrags erst nach Beendigung des Maklervertrags, aber auf Grund der Tätigkeit des Maklers zustande kommt. Der einmal entstandene Provisionsanspruch des Maklers wird nicht dadurch hinfällig, dass der Kaufvertrag wieder aufgehoben, angefochten oder sonst wie rückgängig gemacht wird. Ein Provisionsanspruch besteht auch, wenn der durch die Tretter Real Estate GmbH vermittelte Käufer durch einen Vorkaufsberechtigten ersetzt wird. |
Finanzierungsrechner:
Kaufpreis:
600.000 €
Eigenkapital:
600.000 €
Monatliche Rate
0 €
Effektiver Jahreszins
0 %
Sollzinsbindung
10 Jahre
Bausubstanz & Energieausweis
| Baujahr | 1973 |
|---|---|
| Letzte Sanierung | 2024 |
| Bauphase | Haus fertig gestellt |
| Objektzustand | Saniert |
| Qualität der Austattung | Normal |
| Heizungsart | Zentralheizung |
| Wesentliche Energieträger | Gas |
| Energieausweis | liegt vor |
| Energieausweistyp | Bedarfsausweis |
| Energieeffizienzklasse | F |
Energieeffizienzklasse F
- A+
- A
- B
- C
- D
- E
- F
- G
- H
- 0
- 25
- 50
- 75
- 100
- 125
- 150
- 175
- 200
- 225
- >250
Beschreibung des Objekts
Ausstattung
- Tageslichtbad
- großzügige Terrasse mit Zugang zum Garten
- Offene Küche
- Neues Badezimmer und Gäste-WC
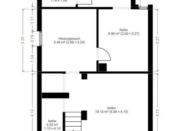
- Vollunterkellert
Lage
Offenbach ist eine lebendige Stadt am Main, die sich direkt an Frankfurt am Main anschließt.
1. Gute Infrastruktur
2. Zentrale Lage und Verkehrsanbindung
3. Alle Geschäfte des täglichen Lebens
4. Freizeitangebote
Sonstige Angaben
Haftungsausschluss:
Alle in diesem Angebot enthaltenen Angaben, Abmessungen und Preisangaben beruhen auf Angaben des Eigentümers (oder eines Dritten). Wir übernimmt hierfür keine Haftung. Irrtum und Zwischenverfügungen bleiben vorbehalten.
Hinweis zum Geldwäschegesetz:
Als Immobilienmakler sind wir nach §1, 2 Abs. 1 Nr 10, 4 Abs. 3 Geldwäschegesetz (GwG) dazu verpflichtet, die Identität des Vertragspartners festzustellen und zu überprüfen. Hierzu ist es erforderlich, dass wir die relevanten Daten Ihres Personalausweises festhalten - beispielsweise mittels einer Kopie. Das Geldwäschegesetz (GwG) sieht vor, dass der Makler die Kopien bzw. Unterlagen fünf Jahre aufbewahren muss.
Bitte denken Sie daher daran, zum Besichtigungstermin Ihren Personalausweis mitzubringen.
Bei Fragen stehen wir Ihnen selbstverständlich gerne zur Verfügung!
Grundriss
Grundriss EG
>
>
Grundriss OG
>
>
Grundriss DG
>
>
Grundriss Keller
>
>
Adresse
63071 Offenbach am Main
Interessante Orte
Preis- und Lageinformationen
Preistrend für Bestandsimmobilien in Stadtmitte