Das kernsanierte Einfamilienhaus aus dem Jahre 1965 befindet sich in einer ruhigen Seitenstraße, unweit der Wiesen und Felder des Bad Homburger Vorortes Ober-Erlenbach. Das Haus überzeugt durch eine gelungene Raumaufteilung mit viel Grundfläche auf zwei Ebenen und eignet sich idealerweise für ein Paar oder eine Familie. Die zeitgemäße Flachdachoptik verleiht der Immobilie eine klare, reduzierte Formensprache und passt ideal zur modernen Architektur. Das Dach wurde 2019 isoliert und erneuert, die 8 m² Solarthermieanlage aus 2008 wurde hierzu deinstalliert und nach der Sanierung wieder installiert. Das Haus ist technisch und energetisch auf dem neuesten Stand. Im Jahr 2019 und 2020 wurden alle Gewerke (Terrasse, Pergola, Fenster, Türzargen, Türen, Elektrik, Leitungen, Innendämmung, Fassade, Bäder, Wände, Böden und Grundriss sowie die Einbauküche) erneuert.
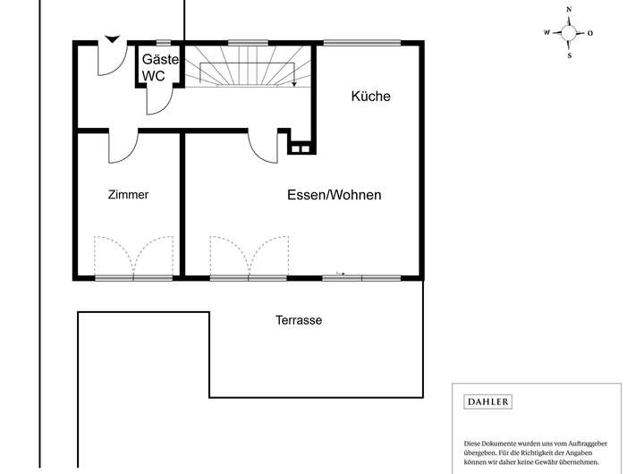
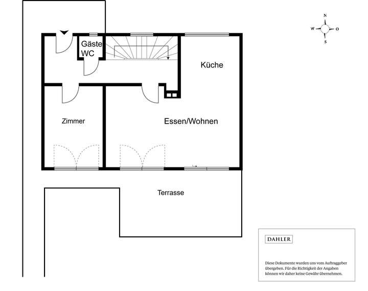
Das geräumige Erdgeschoss ist durch die offene Gestaltung des Wohn- und Esszimmers hell und lichtdurchflutet. Die moderne und funktionale Markeneinbauküche mit Siemens-Geräten und Bora-Dunstabzug bildet das Herzstück des Erdgeschosses und bietet genügend Platz für das Zubereiten von kulinarischen Abenteuern. Der angrenzende offene Wohn- und Essbereich mit fließendem Übergang auf die mit einer Pergola überdachten neu angelegten Terrasse lassen Innen und Außen verschmelzen. Das Gästezimmer sowie das Gäste-WC vervollständigen das Erdgeschoss. Das Obergeschoss bietet drei gut geschnittene Zimmer, sowie ein modernes Dusch- und Wannenbad.
Die zu 2/3 unterkellerte Immobile bietet ausreichend Platz für Wasch-, Fitness-, Hobby-, Vorrats- und Heizungskeller. Im nicht unterkellerten Bereich ist der Vorratsspeicher, für die in 2008 erneuerte Pelletheizung, untergebracht.
Die beiden Einzelgaragen sind mit fernbedienbaren Sektionaltoren ausgestattet, die Hauptgarage zusätzlich mit einer Wallbox. Das Biohort-Gartenhaus bietet zusätzliche Nutzfläche.
Der nach Süd-Westen ausgerichtete und mit Hecken eingefriedete Garten ist liebevoll angelegt, bietet ausreichend Privatsphäre und bereitet wunderschöne Sonnenstunden in der Natur.
Saniertes und bezugsfertiges Einfamilienhaus in Ober-Erlenbach
61352 Bad Homburg vor der Höhe
Die vollständige Adresse der Immobilie erhalten Sie vom Anbieter.
Auf Karte anzeigen
Die vollständige Adresse der Immobilie erhalten Sie vom Anbieter.
Finanzierungszertifikat
In nur zwei Minuten zu Ihrem persönlichen Finanzierungszertifkat.
Infos
| Haustyp | Einfamilienhaus |
|---|---|
| Wohnfläche ca. | 130 m2 |
| Nutzfläche | 86 m2 |
| Grundstücksfläche | 447 m2 |
| Zimmer | 5 |
| Schlafzimmer | 3 |
| Badezimmer | 1 |
| Garage/Stellplatz | Außenstellplatz |
| Anzahl Garage/Stellplatz | 2 |
Kosten
| Kaufpreis |
780.000 € |
|---|---|
| Provision |
3,57 % inkl. gesetzlicher MwSt. von aktuell 19 % bezogen auf den Kaufpreis |
Finanzierungsrechner:
Kaufpreis:
600.000 €
Eigenkapital:
600.000 €
Monatliche Rate
0 €
Effektiver Jahreszins
0 %
Sollzinsbindung
10 Jahre
Bausubstanz & Energieausweis
| Baujahr | 1965 |
|---|---|
| Objektzustand | Saniert |
| Wesentliche Energieträger | Pelletheizung |
| Energieausweis | liegt vor |
| Energieausweistyp | Bedarfsausweis |
| Energieverbrauchskennwert | 114,0 kWh/(m²*a) |
| Energieeffizienzklasse | D |
114,0
kWh/(m²*a)
Energieeffizienzklasse D
- A+
- A
- B
- C
- D
- E
- F
- G
- H
- 0
- 25
- 50
- 75
- 100
- 125
- 150
- 175
- 200
- 225
- >250
Beschreibung des Objekts
Ausstattung
_ kernsaniertes Einfamilienhaus in Leicht-Betonbausweise
_ fünf Zimmer, davon drei Schlafzimmer
_ ein großzügiges Bad im ersten Obergeschoss, Gäste-WC im Erdgeschoss, sowie eine weitere Dusche im Kellergeschoss
_ Parkett und Fliesenböden
_ Einbauküche mit Markeneinbaugeräten
_ Kunstofffenster (2-fach-Verglasung - Innen weiss und Außen Holzoptik anthrazit) aus 2020
_ neue Hauseingangstüre
_ Türsprechanlage mit Kamera der Fa. Bticino
_ elektrische Rollläden
_ neu angelegte Terrasse mit Pergola
_ Pelletheizung aus 2008
_ Solarthermie aus 2008
_ 2/3 teilunterkellert
_ Biohort-Gartenhaus Avantgarde A4
_ zwei Einzelgaragen mit fernbedienbaren Sektionaltoren, zwei Stellplätze und eine Wallbox
Lage
_Ober-Erlenbach Stadtteil von Bad Homburg v. d. Höhe, im Hochtaunuskreis (Hessen)
_ruhige, naturnahe Lage mit dörflichem Charakter
_Familienfreundliches Wohnumfeld mit Einfamilienhäusern und kleinen Wohnanlagen
_gute Verkehrsanbindung: ca. 5 Min. zur A5, ca. 20–25 Min. nach Frankfurt am Main
_Busverbindungen nach Bad Homburg und Umgebung
_nächste S-Bahn in Ober-Eschbach
_Einkaufsmöglichkeiten, Kindergarten, Grundschule im Ort
_vielfältige Freizeit- und Vereinsangebote
_Umgeben von Feldern, Wiesen und Wald – ideal für Spaziergänge & Radtouren
Grundriss
Erdgeschoss
>
>
Obergeschoss
>
>
Kellergeschoss
>
>
Adresse
61352 Bad Homburg vor der Höhe
Interessante Orte
Preis- und Lageinformationen
Preistrend für Bestandsimmobilien in Bad Homburg vor der Höhe