Zum Verkauf steht ein Einfamilienhaus mit ca. 107 m² Wohnfläche auf einem großzügigen Grundstück von 647 m². Das Haus bietet eine wunderbare Basis für kreative Köpfe und handwerklich Begabte, denn es sind Modernisierungs- und Sanierungsarbeiten erforderlich. Dafür haben Sie die Chance, sich hier Ihr Zuhause ganz nach Ihren eigenen Wünschen zu gestalten.
Besonders schön: Der große Garten lädt zum Entspannen ein, und der ca. 25 m² großer Wintergarten mit eigenem Gartenzugang erweitert den Wohnraum auf charmante Weise. Der Keller verfügt außerdem über einen separaten Eingang sowie einen Partyraum – perfekt für gesellige Abende.
Viel Platz für Ideen – Ein Haus zum Gestalten mit großem Grundstück und Wintergarten
38159 Vechelde
Die vollständige Adresse der Immobilie erhalten Sie vom Anbieter.
Auf Karte anzeigen
Die vollständige Adresse der Immobilie erhalten Sie vom Anbieter.
Finanzierungszertifikat
In nur zwei Minuten zu Ihrem persönlichen Finanzierungszertifkat.
Infos
| Haustyp | Einfamilienhaus |
|---|---|
| Etagenzahl | 2 |
| Wohnfläche ca. | 107 m2 |
| Nutzfläche | 145 m2 |
| Grundstücksfläche | 647 m2 |
| Zimmer | 5 |
| Schlafzimmer | 3 |
| Badezimmer | 1 |
| Garage/Stellplatz | Garage |
| Anzahl Garage/Stellplatz | 1 |
Kosten
| Kaufpreis |
199.000 € |
|---|---|
| Provision |
3,57 % inkl Mehrwertsteuer |
Finanzierungsrechner:
Kaufpreis:
600.000 €
Eigenkapital:
600.000 €
Monatliche Rate
0 €
Effektiver Jahreszins
0 %
Sollzinsbindung
10 Jahre
Bausubstanz & Energieausweis
| Baujahr | 1965 |
|---|---|
| Objektzustand | Renovierungsbedürftig |
| Qualität der Austattung | Einfach |
| Heizungsart | Gas-Heizung |
| Wesentliche Energieträger | Gas |
| Energieausweis | liegt vor |
| Energieausweistyp | Bedarfsausweis |
| Energieverbrauchskennwert | 339,8 kWh/(m²*a) |
| Energieeffizienzklasse | H |
339,8
kWh/(m²*a)
Energieeffizienzklasse H
- A+
- A
- B
- C
- D
- E
- F
- G
- H
- 0
- 25
- 50
- 75
- 100
- 125
- 150
- 175
- 200
- 225
- >250
Beschreibung des Objekts
Ausstattung
ca. 107 m² Wohnfläche
ca. 145 m² Nutzfläche =Keller
ca. 647 m² Eigentumsgrundstück
EG : ca. 66 m²
- Flur
- Küche
- Wohnzimmer
- Gästebad
- Durchgangsraum
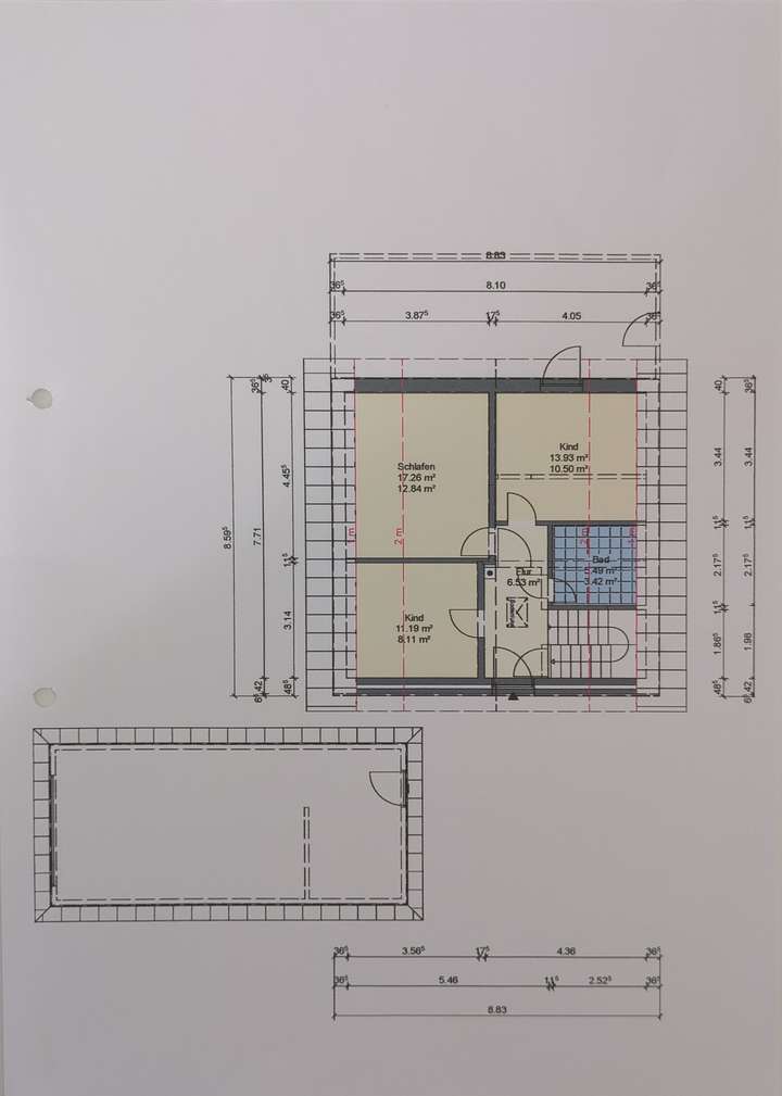
OG: ca. 41 m²
- Flur,
- Schlafzimmer1
- Schlafzimmer 2
- Schlafzimmer 3
Keller: ca. 80 m²
Weitere Details:
- Vollkeller mit seperatem Ausgang
- Partykeller mit Theke
- großer Wintergarten
- Glasfaseranschluß liegt bis zur Straße
- Garage mit Geräteschuppen
Lage
Sierße, ein idyllischer Ortsteil der Gemeinde Vechelde, besticht durch seine ländliche und landwirtschaftlich geprägte Umgebung. Naturfreunde kommen hier voll auf ihre Kosten: Zahlreiche Waldgebiete bieten perfekte Möglichkeiten für Spaziergänge, Wanderungen und Fahrradtouren.
Das Dorf verfügt über eine eigene Grundschule, während alle weiteren Schulformen im nur ca. 4 km entfernten Vechelde zu finden sind. Die Gemeinde Vechelde selbst bietet eine hervorragende Infrastruktur mit einem großen Einkaufszentrum, Lebensmittelmärkten, Bäckereien, Kindergärten, Arztpraxen, Fitnessstudios und Poststellen.
Die Verkehrsanbindung ist ebenfalls sehr gut: In nur ca. 15 Minuten erreicht man Braunschweig, Hannover und Wolfsburg sind in etwa 40 Minuten erreichbar – ideal für Pendler.
Sonstige Angaben
Das vom Käufer und Verkäufer der Immobilie zu zahlende Maklerhonorar beträgt jeweils 3,57 % inklusive der gesetzlichen Mehrwertsteuer vom notariellen Kaufpreis und ist mit Unterzeichnung des Kaufvertrages zur Zahlung fällig. Alle Daten in diesem Exposé beruhen auf Angaben des Verkäufers - Die Objektangaben wurden mit großer Sorgfalt zusammengestellt. Für die Richtigkeit der Verkäufer-, Anbieter- und Angebotsangaben können wir keine Haftung übernehmen. Irrtümer bleiben vorbehalten.
Sie denken selbst über die Veräußerung Ihrer Immobilie nach - oder möchten einfach nur wissen, was diese wert ist? Bei uns erhalten Sie kostenlos eine professionelle Einschätzung! Gehen Sie hierzu auf: www.dionesta.de oder kontaktieren Sie uns.
Grundriss
Grundriss EG
>
>
Grundriss DG
>
>
Grundriss Keller
>
>
Adresse
38159 Vechelde
Interessante Orte
Preis- und Lageinformationen
Preistrend für Bestandsimmobilien in Vechelde