Eine Einladung zum Träumen...Neubau-Standard trifft auf ländliches Wohnen...
Wenn Sie sich eine neue Doppelhaushälfte vorstellen, haben Sie selbstverständlich Erwartungen: Hohe Verarbeitungsqualität in moderner und dennoch traditionell bodenständiger Architektur, ein offener und durchdachter Grundriss...
Auch denken Sie sicher an technische Innovationen auf dem aktuellen Stand, wie elektrische Rollläden, ein durchdachtes Energiekonzept aus 3-fach verglasten Fenstern, automatischen Be- und Entlüftungsanlagen, sowie umfangreicher Wärmedämmung in Kombination mit einer Wärmepumpe und Fußbodenheizung. Ebenso sind vielleicht individuelle Lösungen wie die Infrarotheizung, PV-Anlage, Stromspeicher und Wallbox interessant - wir befinden uns noch in der frühen Planungsphase, somit haben Sie viele Gestaltungsmöglichkeiten.
Doch entscheidend ist wie so häufig...die Lage. Schwerinsdorf liegt malerisch eingebettet in der reizvollen Landschaft Ostfrieslands, einer Region, die für ihre weiten Felder, grünen Wiesen und die charakteristische ostfriesische Gemütlichkeit bekannt ist. Mit seiner ruhigen und naturnahen Umgebung...der ideale Wohnort für alle, die das Landleben genießen und dennoch von einer guten Infrastruktur profitieren möchten.
Neubau: Doppelhaushälfte in idyllischer Lage
26835 Schwerinsdorf
Die vollständige Adresse der Immobilie erhalten Sie vom Anbieter.
Auf Karte anzeigen
Die vollständige Adresse der Immobilie erhalten Sie vom Anbieter.
Finanzierungszertifikat
In nur zwei Minuten zu Ihrem persönlichen Finanzierungszertifkat.
Infos
| Haustyp | Doppelhaushaelfte |
|---|---|
| Wohnfläche ca. | 105 m2 |
| Grundstücksfläche | 920 m2 |
| Bezugsfrei ab | vsl. 2026 |
| Zimmer | 5 |
| Garage/Stellplatz | Carport |
| Anzahl Garage/Stellplatz | 1 |
Kosten
| Kaufpreis |
319.500 € |
|---|---|
| Provision | Nein |
Finanzierungsrechner:
Kaufpreis:
600.000 €
Eigenkapital:
600.000 €
Monatliche Rate
0 €
Effektiver Jahreszins
0 %
Sollzinsbindung
10 Jahre
Bausubstanz & Energieausweis
| Baujahr | 2026 |
|---|---|
| Objektzustand | Erstbezug |
| Heizungsart | Fußbodenheizung |
Beschreibung des Objekts
Lage
Trotz seiner beschaulichen Größe überzeugt Schwerinsdorf durch eine hervorragende Anbindung an die umliegenden größeren Gemeinden. In nur wenigen Minuten erreicht man Hesel, ein bedeutendes Nahversorgungszentrum mit zahlreichen Einkaufsmöglichkeiten, Schulen, Kindergärten sowie medizinischen Einrichtungen. Hesel punktet zudem mit einem regen Vereinsleben und kulturellen Angeboten, die das Gemeinschaftsgefühl fördern.
Ebenfalls in kurzer Entfernung liegt Remels, der Hauptort der Gemeinde Uplengen. Hier erwartet Sie ein charmantes Zentrum mit weiteren Geschäften, gastronomischen Betrieben und Freizeitmöglichkeiten. Remels ist bekannt für seine lebendige Marktkultur und Veranstaltungen, die das dörfliche Leben bereichern.
Die verkehrsgünstige Lage von Schwerinsdorf ermöglicht eine schnelle Anbindung an die B72, wodurch auch größere Städte wie Leer oder Aurich bequem erreichbar sind. So vereinen sich die Vorzüge eines beschaulichen Landlebens mit der Nähe zu städtischen Annehmlichkeiten – ein idealer Ort zum Leben und Wohlfühlen.
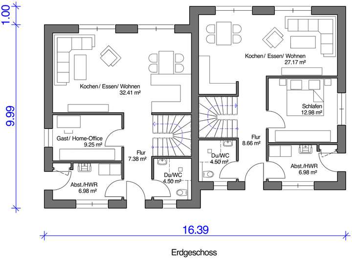
Grundriss
Erdgeschoss
>
>
Dachgeschoss
>
>
Adresse
26835 Schwerinsdorf
Interessante Orte
Preis- und Lageinformationen
Preistrend für Bestandsimmobilien in Schwerinsdorf