Das unter Denkmalschutz stehende Anwesen wurde 1923 errichtet. Auftraggeber war der damals im Exporthandel tätige Unternehmer John M. Zeising. Der Architekt war Bernhard Oberdieck. Herr Oberdieck konzipierte das Anwesen als traditionalistischen Klinkerrohbau mit einigen in Ansätzen expressionistischen Schmuckelementen. Das damals als Birkenhof bekannte Anwesen charakterisiert sich seit jeher durch seine lange Einfahrt. Von der Straße ist das Objekt nicht zu sehen.
Wenn Sie die zauberhafte Allee auf dem parkartigen Grundstück hochfahren, dann werden Sie direkt merken, dass es sich um ein ganz besonderes Anwesen handelt, welches einmalig ist. Vor dem Gebäude im Herzen der Kreiseinfahrt steht ein schön gewachsener Magnolienbaum.
Von der Kreiseinfahrt gelangen Sie über sechs Stufen zum imposanten Hauseingang, welcher von einem breiten Terrakottaportal gerahmt ist, das ebenso das Badezimmerfenster auf der rechten Seite sowie das Treppenhausfenster auf der linken Seite einschließt. Über den herrschaftlichen Eingangsbereich erreichen Sie das großzügige Speisezimmer, welches das Herzstück des Gebäudes bildet. Hier können Sie gesellige Abende mit Freunden oder im Kreise der Familie verbringen. Das elegante Speisezimmer geht über in das gemütliche Kaminzimmer, in dem Sie Ihre Tage ausklingen lassen können. Neben dem Speisezimmer und dem Kaminzimmer wird das Erdgeschoss von zwei Wintergärten geprägt, die mit ihrem Blick ins Grüne zum Verweilen einladen. Zu dem einen Wintergarten gelangen Sie durch die Küche, den anderen Wintergarten erreichen Sie über das Kaminzimmer.
Über das stilvolle Treppenhaus gelangen Sie in das Obergeschoss. Das Obergeschoss bietet Platz für mehrere Schlafzimmer sowie ein Ankleidezimmer und wird charakterisiert durch zwei Balkone, welche einen wunderschönen Blick in den großflächigen Garten ermöglichen. Das großzügige Dachgeschoss bietet weiteren Platz für beispielsweise Gästezimmer oder ein Büro.
Insgesamt ist das Objekt jedoch nicht bezugsbereit, das Gebäude hat einen Restaurierungsbedarf. Bitte denken Sie in diesem Zusammenhang an die Denkmalschutz-AfA, die anwendbar ist.
Das Haus ist vollunterkellert, der Keller zeichnet sich durch eine gute Deckenhöhe aus.
Ein absoluter Traum ist das einzigartige Grundstück. Wenn Sie auf dem Grundstück stehen, werden Sie das Gefühl haben, dass Sie sich in Ihrem eigenen Naturschutzgebiet befinden.
Repräsentative Villa auf einzigartigem Parkgrundstück
22397 Hamburg
Die vollständige Adresse der Immobilie erhalten Sie vom Anbieter.
Auf Karte anzeigen
Die vollständige Adresse der Immobilie erhalten Sie vom Anbieter.
Finanzierungszertifikat
In nur zwei Minuten zu Ihrem persönlichen Finanzierungszertifkat.
Infos
| Haustyp | Villa |
|---|---|
| Wohnfläche ca. | 343 m2 |
| Nutzfläche | 148 m2 |
| Grundstücksfläche | 4.876 m2 |
| Bezugsfrei ab | sofort |
| Zimmer | 7 |
| Garage/Stellplatz | Tiefgarage |
| Anzahl Garage/Stellplatz | 1 |
Kosten
| Kaufpreis |
1.290.000 € |
|---|---|
| Provision |
1,85 % inkl. Mehrwertsteuer |
Finanzierungsrechner:
Kaufpreis:
600.000 €
Eigenkapital:
600.000 €
Monatliche Rate
0 €
Effektiver Jahreszins
0 %
Sollzinsbindung
10 Jahre
Bausubstanz & Energieausweis
| Baujahr | 1923 |
|---|---|
| Denkmalschutzobjekt | Ja |
| Heizungsart | Öl-Heizung |
| Energieausweis | laut Gesetz nicht erforderlich |
Beschreibung des Objekts
Lage
Das Anwesen liegt im Hamburger Stadtteil Wohldorf-Ohlstedt, welcher Teil der Walddörfer ist. Wohldorf-Ohlstedt steht für weitläufiges und naturverbundenes Wohnen auf großen Grundstücken. In der Nähe befindet sich der Duvenstedter Brook. Das 785 Hektar große Naturschutzgebiet zeichnet sich durch über 600 verschiedene Pflanzenarten und etwa 100 unterschiedliche Vogelarten aus und lädt zu ausgiebigen Spaziergängen ein. Der gesamthaft durch Ruhe und Natur geprägte Stadtteil ist gleichzeitig sehr gut angebunden durch den öffentlichen Personennahverkehr. Die U-Bahn-Haltestelle Ohlstedt ist fußläufig erreichbar. Von dort aus erreichen Sie die Hamburger Innenstadt in einer guten halben Stunde ohne umzusteigen. Auch das sportliche Angebot ist in Wohldorf-Ohlstedt gut abgedeckt: Fußläufig zu erreichen ist der Sportverein TSV DUWO 08 und ebenfalls ist der Golfclub Treudelberg in wenigen Fahrminuten erreichbar. Verschiedene Schulformen sowie Kindergärten mit vielfältigen Ausrichtungen befinden sich in kinderfreundlicher Fahrradnähe und sorgen für einen insgesamt außerordentlich familienfreundlichen Stadtteil.
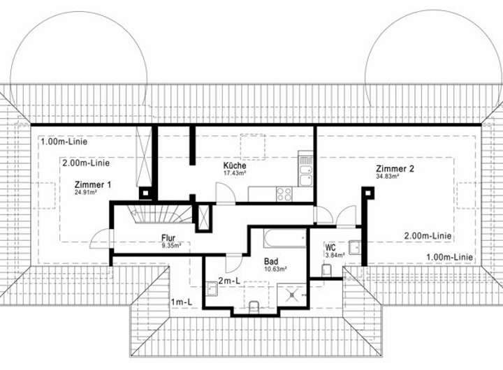
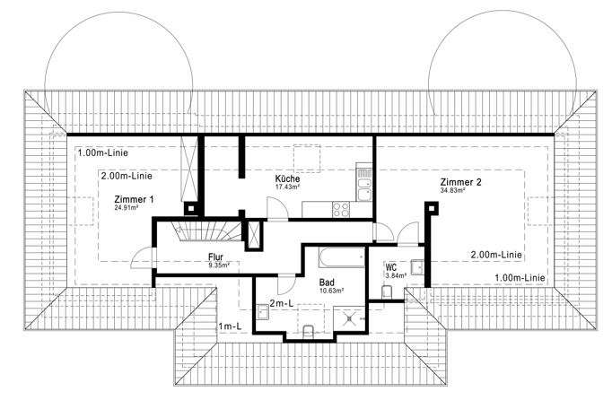
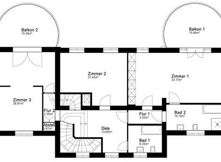
Grundriss
Grundriss EG
>
>
Grundriss OG
>
>
Grundriss DG
>
>
Grundriss KG
>
>
Adresse
22397 Hamburg
Interessante Orte
Preis- und Lageinformationen
Preistrend für Bestandsimmobilien in Wohldorf-Ohlstedt