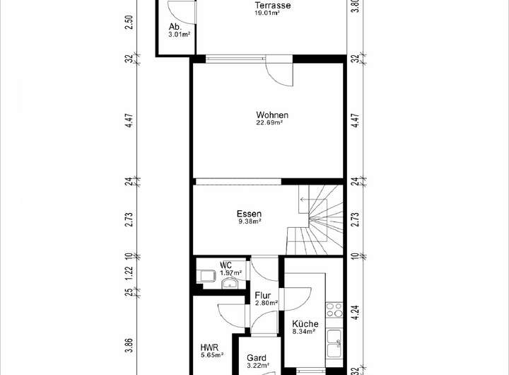
Dieses charmante Reihenendhaus überzeugt durch eine durchdachte Raumaufteilung, helle Wohnbereiche und einen schönen Garten mit Terrasse. Es ist ideal für Familien oder Paare, die Wert auf Komfort und Gemütlichkeit legen. Bereits beim Betreten des Hauses empfängt Sie ein kleiner Eingangsbereich mit Garderobe. Von hier aus gelangen Sie in einen weiteren Flur, von dem sich links der praktische Hauswirtschaftsraum sowie ein Gäste-Bad mit WC befinden. Rechts liegt die gut ausgestattete Küche, die mit Herd, Kühlschrank, Gefrierschrank und allen wichtigen Geräten keine Wünsche offenlässt. Der Flur öffnet sich anschließend in das großzügige, offene Wohn- und Esszimmer. Große Fensterfronten sorgen hier für viel Tageslicht und bieten direkten Zugang zur sonnigen Terrasse sowie zum gepflegten Garten. Ein perfekter Ort zum Entspannen oder für gesellige Abende mit Familie und Freunden. Über eine elegante Wendeltreppe erreichen Sie das Obergeschoss. Hier erwarten Sie drei Zimmer, die sich flexibel als Hauptschlafzimmer und Kinder- oder Gästezimmer nutzen lassen. Abgerundet wird diese Etage durch ein großes, komfortables Badezimmer mit Badewanne und Dusche. Über eine Leiter gelangt man auf den Dachboden, welcher mit ca. 18m² ausreichend Stauraum für Surfbretter und Skier aus den letzten Urlauben oder Kleidung und alte Spielsachen liefert. Zur Immobilie gehört außerdem eine Garage, die nur etwa 50 Meter vom Haus entfernt liegt und für sicheres Parken sorgt.
Reihenendhaus mit Sonnenterrasse, uneinsehbarem Garten und Garage
28277 Bremen
Die vollständige Adresse der Immobilie erhalten Sie vom Anbieter.
Auf Karte anzeigen
Die vollständige Adresse der Immobilie erhalten Sie vom Anbieter.

Finanzierungszertifikat
In nur zwei Minuten zu Ihrem persönlichen Finanzierungszertifkat.
Infos
Haustyp | Reiheneckhaus |
---|---|
Etagenzahl | 2 |
Wohnfläche ca. | 107 m2 |
Nutzfläche | 30 m2 |
Grundstücksfläche | 260 m2 |
Bezugsfrei ab | sofort |
Zimmer | 4 |
Schlafzimmer | 3 |
Badezimmer | 1 |
Garage/Stellplatz | Garage |
Anzahl Garage/Stellplatz | 1 |
Kosten
Kaufpreis |
295.000 € |
---|---|
Provision |
3,57% (inkl. 19 % MwSt.) vom beurkundeten Kaufpreis, jeweils vom Käufer und Verkäufer |
Finanzierungsrechner:
Kaufpreis:
600.000 €
Eigenkapital:
600.000 €
Monatliche Rate
0 €
Effektiver Jahreszins
0 %
Sollzinsbindung
10 Jahre
Bausubstanz & Energieausweis
Baujahr | 1983 |
---|---|
Objektzustand | Renovierungsbedürftig |
Heizungsart | Gas-Heizung |
Wesentliche Energieträger | Gas |
Energieausweis | liegt vor |
Energieausweistyp | Bedarfsausweis |
Energieverbrauchskennwert | 190,9 kWh/(m²*a) |
Energieeffizienzklasse | F |
190,9
kWh/(m²*a)
Energieeffizienzklasse F
- A+
- A
- B
- C
- D
- E
- F
- G
- H
- 0
- 25
- 50
- 75
- 100
- 125
- 150
- 175
- 200
- 225
- >250
Beschreibung des Objekts
Ausstattung
- Sonnige Terrasse mit angrenzendem Garten - Voll ausgestattete Küche - Großzügiges Wohn- und Esszimmer mit viel Tageslicht - Drei Schlafzimmer im Obergeschoss - Großes innenliegendes Badezimmer mit Badewanne und Dusche - Praktischer Hauswirtschaftsraum und Gäste-WC im Erdgeschoss - Dachgeschoss (ca. 18 m²) mit viel Stauraum/Ausbaureserve - Massive Garage
Lage
Die Immobilie liegt in einer ruhigen Wohnstraße im Bremer Stadtteil Kattenturm, geprägt von Reihen- und Mehrfamilienhäusern sowie charmanten Grünflächen. Das Viertel verbindet Ruhe mit einer sehr guten Anbindung an die Infrastruktur der Stadt. In wenigen Gehminuten erreicht man die Haltestelle Kattenturm-Mitte, an der die Buslinien 22, 29, 51, 52 und 53 verkehren und schnelle Verbindungen zur Innenstadt, zum Hauptbahnhof und in angrenzende Stadtteile bieten. Die Fahrtzeit in die City beträgt etwa 15–20 Minuten, der Flughafen Bremen ist mit dem ÖPNV in rund 15 Minuten, mit dem Auto in zehn Minuten erreichbar. Auch das Radfahren ist hier attraktiv! Flache Topografie und gut ausgebaute Radwege ermöglichen eine Fahrt in die Innenstadt in rund 25–30 Minuten. Schulen, Kitas, Einkaufsmöglichkeiten und Freizeitangebote sind ebenfalls gut erreichbar. Mit dem Auto gelangt man über die Kattenturmer Heerstraße in wenigen Minuten auf die Autobahn A1 (Anschlussstelle Bremen-Arsten) und über das Bremer Kreuz zur A27. Die Innenstadt ist je nach Verkehrslage in 15–20 Minuten erreichbar. Die Lage profitiert zusätzlich von Infrastrukturprojekten wie dem Ausbau des Autobahnringschlusses A281 und der geplanten B6n, die kürzere Fahrzeiten und Entlastung vom Durchgangsverkehr bringen. Nahversorgung ist durch das Einkaufszentrum Kattenturm-Mitte, weitere Geschäfte, Schulen, Kitas und das Klinikum Links der Weser gewährleistet. Freizeitmöglichkeiten wie Grünflächen, Spielplätze und die Ochtum mit ihren Deichwegen bieten Raum für Erholung, Sport und Spaziergänge. Trotz guter Anbindung bleibt die Wohnlage ruhig und angenehm, ideal für Familien oder Ruhesuchende. Insgesamt verbindet die Immobilie Komfort, Lebensqualität und zukunftssichere Infrastruktur in idealer Weise.
Sonstige Angaben
Der Gasanschluss der Immobilie ist derzeit stillgelegt. Eine Funktionsprüfung der Gas-Therme (Bj. 2017) ist daher nicht möglich. Die Grundsteuer beträgt € 576,00 p.a. Unsere Objektangaben basieren auf den uns erteilten Informationen. Eine Haftung für die Richtigkeit und Vollständigkeit können wir deshalb nicht übernehmen.
Adresse
28277 Bremen
Interessante Orte
Preis- und Lageinformationen
Preistrend für Bestandsimmobilien in Kattenturm