Willkommen zu Ihrem Traumhausprojekt in Sehnde / Haimer ! In einem idyllischen Wohngebiet erwartet Sie ein modernes Doppelhaus, das keine Wünsche offenlässt. Mit einer Wohnfläche von 127 m² und insgesamt 4 Zimmern bietet dieses Haus ausreichend Platz für Ihre Familie. Die clevere Raumaufteilung auf 2 Etagen umfasst 3 Schlafzimmer und 2 Badezimmer, die mit einer komfortablen Dusche, einer Wanne und einem Fenster ausgestattet sind. Ein zusätzliches Gäste-WC sorgt für zusätzlichen Komfort.
**Charmante Doppelhaushälfte links-Ein Zuhause zum Wohlfühlen mit Klinkeraktion **
31319 Sehnde
Die vollständige Adresse der Immobilie erhalten Sie vom Anbieter.
Auf Karte anzeigen
Die vollständige Adresse der Immobilie erhalten Sie vom Anbieter.
Finanzierungszertifikat
In nur zwei Minuten zu Ihrem persönlichen Finanzierungszertifkat.
Infos
| Haustyp | Doppelhaushaelfte |
|---|---|
| Etagenzahl | 2 |
| Wohnfläche ca. | 127 m2 |
| Nutzfläche | 25 m2 |
| Grundstücksfläche | 424 m2 |
| Bezugsfrei ab | 2025 |
| Zimmer | 4 |
| Schlafzimmer | 3 |
| Badezimmer | 2 |
Kosten
| Kaufpreis |
493.536 € |
|---|---|
| Provision | Nein |
Finanzierungsrechner:
Kaufpreis:
600.000 €
Eigenkapital:
600.000 €
Monatliche Rate
0 €
Effektiver Jahreszins
0 %
Sollzinsbindung
10 Jahre
Bausubstanz & Energieausweis
| Baujahr | 2025 |
|---|---|
| Bauphase | Haus in Planung (projektiert) |
| Qualität der Austattung | Gehoben |
| Heizungsart | Wärmepumpe |
| Energieausweis | liegt zur Besichtigung vor |
Beschreibung des Objekts
Ausstattung
Diese Doppelhaushälfte besticht durch ihre gehobene Ausstattung und die Wahl moderner Bodenbeläge aus Fliesen oder nach Ihren individuellen Wünschen, die nicht nur stilvoll, sondern auch pflegeleicht sind. Beheizt wird Ihr neues Zuhause durch eine effiziente Wärmepumpe, die für angenehme Wärme sorgt und gleichzeitig umweltfreundlich ist. Der KFW40 Standard unterstreicht den hohen energetischen Anspruch des Hauses und garantiert Ihnen niedrige Energiekosten sowie einen Beitrag zum Umweltschutz.
Lage
Die Lage in Sehnde/ Haimer bietet Ihnen eine ausgezeichnete Infrastruktur: Apotheke, Einkaufsmöglichkeiten und Bildungseinrichtungen wie Grundschule und weiterführende Schulen sind schnell erreichbar. Öffentliche Verkehrsmittel wie der Bus erleichtern den Alltag, während Freizeitmöglichkeiten wie Spielplätze zahlreiche Optionen für Familien bieten.
Sonstige Angaben
STREIF Haus - der Pionier der deutschen Fertighausbranche
Die langjährige Firmentradition des Unternehmens reicht bis in das Jahr 1929 zurück. In den 50er und 60er Jahren wurde in Deutschland schnell und viel Wohnraum für Familien benötigt, seitdem konzentrierte sich das Unternehmen auf die Entwicklung und Produktion von Fertighaustypen, die im Werk in großen Stückzahlen hergestellt werden konnten. So kann das Unternehmen auf 90.000 gebaute Hausobjekte zurückblicken und sich zu Recht als Pionier der deutschen Fertighausbranche bezeichnen.
Die neuen Energiesparhäuser - So baut man heute.
Unser Anspruch ist es, in enger Partnerschaft mit unseren Kunden langlebige Häuser zu bauen, mit einer hohen architektonischen Qualität, individuell geplant und dabei energieeffizient und ressourcenschonend. Jedes STREIF-Haus ist einzigartig und wird speziell für jeden Kunden "maßgeschneidert" und gebaut. Passend zu den persönlichen Wünschen, dem vorgegebenen Budget und dem vorhandenen Grundstück planen und bauen wir jedes Haus mit viel Liebe zum Detail.
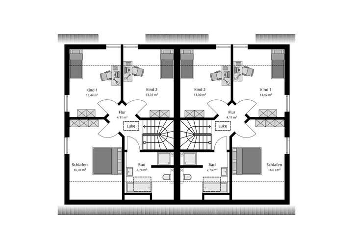
Grundriss
95809-8111-1-g
>
>
95812-8111-4-g
>
>
Adresse
31319 Sehnde
Interessante Orte
Preis- und Lageinformationen
Preistrend für Bestandsimmobilien in Sehnde