Bei diesem Objekt handelt es sich um eine Doppelhaushälfte aus dem Baujahr 1933 mit einer Wohnfläche von ca. 75 m². Das Haus befindet sich in Arsten und ist insgesamt sanierungsbedürftig, bietet jedoch vielfältiges Potenzial zur individuellen Gestaltung und Erweiterung.
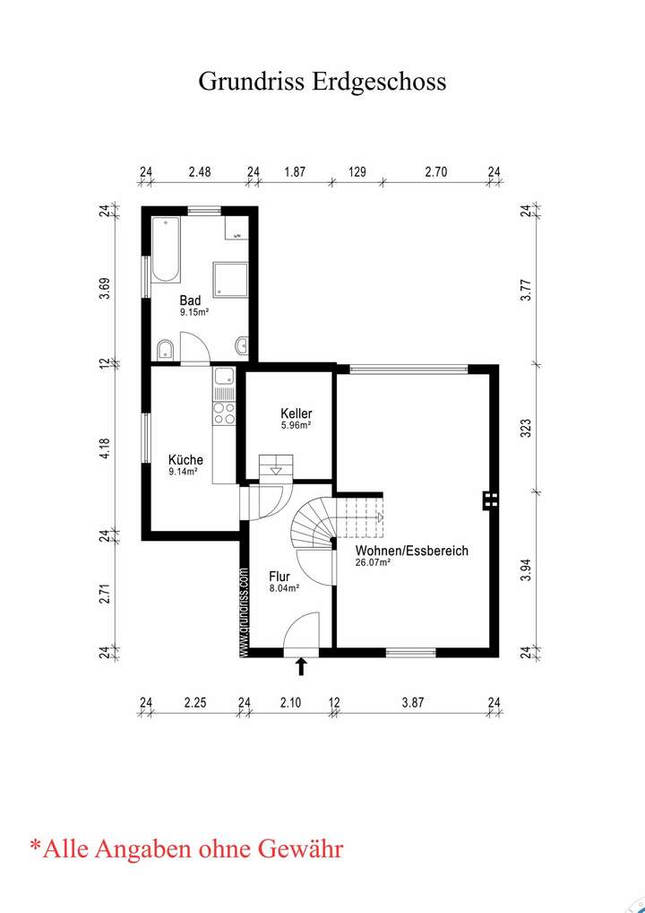
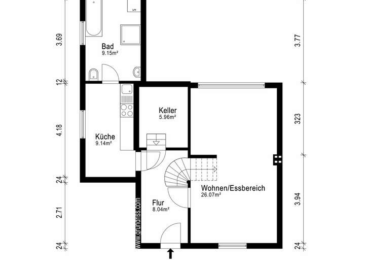
Im Erdgeschoss befindet sich ein Wohn- und Essbereich, der durch zwei große Fenster mit viel Tageslicht versorgt wird und einen schönen Blick in den Garten bietet. Vom Eingangsbereich aus gelangt man links in die kleine Küche, in der eine ältere Einbauküche vorhanden ist.
Hinter der Küche liegt das Badezimmer, das mit einer Badewanne und einer Dusche ausgestattet ist. In einer Nische des Badezimmers befinden sich die Gasheizung aus dem Jahr 2018, sowie ein Waschmaschinenanschluss. Über eine Tür im hinteren Bereich des Badezimmers besteht ein direkter Zugang zum Garten.
Vom Flur aus führt eine mittlere Tür in den Keller, der über wenige Stufen erreichbar ist und zusätzliche Abstellfläche bietet.
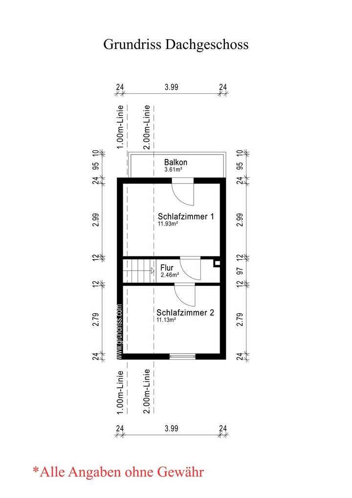
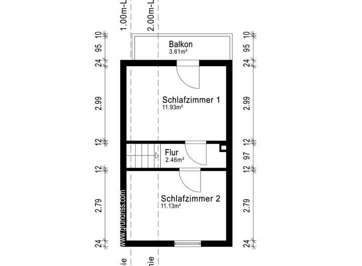
Im Obergeschoss befinden sich zwei Schlafzimmer mit einer Größe von ca. 12 m² und 11 m². Aus dem nördlich gelegenen Zimmer hat man Zugang zu einem kleinen Balkon mit Blick in den großzügigen Garten.
Der weitläufige Garten umfasst insgesamt etwa 800 m² und bietet aufgrund seiner Größe viel Potenzial für Umgestaltungen oder Anbauten. Hinter dem Haus befinden sich eine kleine Terrasse sowie ein separater Schuppen.
Projekt für Handwerker: Doppelhaushälfte mit großem Grundstück in Bremen-Arsten!
28277 Bremen
Die vollständige Adresse der Immobilie erhalten Sie vom Anbieter.
Auf Karte anzeigen
Die vollständige Adresse der Immobilie erhalten Sie vom Anbieter.
Finanzierungszertifikat
In nur zwei Minuten zu Ihrem persönlichen Finanzierungszertifkat.
Infos
| Haustyp | Doppelhaushaelfte |
|---|---|
| Etagenzahl | 2 |
| Wohnfläche ca. | 75 m2 |
| Grundstücksfläche | 856 m2 |
| Bezugsfrei ab | ab sofort |
| Zimmer | 3 |
| Schlafzimmer | 2 |
| Badezimmer | 1 |
| Garage/Stellplatz | Außenstellplatz |
| Anzahl Garage/Stellplatz | 2 |
Kosten
| Kaufpreis |
220.000 € |
|---|---|
| Provision |
3,57 % (inkl. 19 % MwSt.) vom beurkundeten Kaufpreis, jeweils vom Käufer und Verkäufer |
Finanzierungsrechner:
Kaufpreis:
600.000 €
Eigenkapital:
600.000 €
Monatliche Rate
0 €
Effektiver Jahreszins
0 %
Sollzinsbindung
10 Jahre
Bausubstanz & Energieausweis
| Baujahr | 1933 |
|---|---|
| Objektzustand | Renovierungsbedürftig |
| Heizungsart | Gas-Heizung |
| Wesentliche Energieträger | Erdgas leicht |
| Energieausweis | liegt vor |
| Energieausweistyp | Bedarfsausweis |
| Energieverbrauchskennwert | 339,8 kWh/(m²*a) |
| Energieeffizienzklasse | H |
339,8
kWh/(m²*a)
Energieeffizienzklasse H
- A+
- A
- B
- C
- D
- E
- F
- G
- H
- 0
- 25
- 50
- 75
- 100
- 125
- 150
- 175
- 200
- 225
- >250
Beschreibung des Objekts
Ausstattung
- Gasheizung (Baujahr 2018), Warmwasser über Heizung
- Grundstücksgröße: ca. 856 m²
- Badezimmer mit Badewanne, Dusche und Fenster
- Waschmaschinenanschluss im Badezimmer
- Balkon mit Blick in den Garten
- Teilunterkellerung mit Abstellfläche
- Terrasse hinter dem Haus
- Wellblechgarage im Garten
Lage
Die Immobilie befindet sich in Sackgassenlage in einem ruhigen, familienfreundlichen Wohngebiet im Ortsteil Kattenturm (Arsten) in Bremen-Obervieland.
Die Lage überzeugt durch eine attraktive Mischung aus Tradition, Natur und moderner Infrastruktur. Die angrenzende Grünanlage bietet viel Freiraum für Spiel, Sport und Erholung. Dank der hervorragenden Anbindung an die Straßenbahn der Linie 4 und 5 sowie den Bus 51 ist die Innenstadt bequem in rund 25 Minuten erreichbar. Diverse Ärzte und das Krankenhaus LdW sind fußläufig zu erreichen, sowie gute Einkaufsmöglichkeiten, Schulen und Kindertagesstätten runden das Wohnumfeld ab
Sonstige Angaben
Die aktuelle Grundsteuer beträgt aktuell ca. € 429,11 p.a.
Unsere Objektangaben basieren auf den uns erteilten Informationen. Eine Haftung für die Richtigkeit und Vollständigkeit können wir deshalb nicht übernehmen.
Grundriss
Grundriss Erdgeschoss
>
>
Grundriss Dachgeschoss
>
>
Adresse
28277 Bremen
Interessante Orte
Preis- und Lageinformationen
Preistrend für Bestandsimmobilien in Kattenturm