Moderner Bungalow mit Charme – Wohnen auf einer Ebene in Bunderhammrich
Willkommen in Ihrem neuen Zuhause!
In ruhiger Lage von Bunderhammrich entstehen zwei stilvolle Bungalows in klarer, moderner Architektur. Die Häuser überzeugen durch eine zeitlose Klinkerfassade, helle Räume und ein durchdachtes Raumkonzept, das Wohnen auf einer Ebene komfortabel möglich macht.
Schon beim Ankommen spüren Sie die Harmonie: Die eingangsseitigen Carports mit Abstellraum bieten nicht nur praktischen Stauraum, sondern runden das Gesamtbild der Häuser elegant ab.
Im Inneren erwartet Sie ein lichtdurchfluteter Wohn-, Ess- und Kochbereich mit bodentiefen Fenstern, die den Blick ins Grüne freigeben und direkten Zugang zur sonnigen Terrasse schaffen. Hier genießen Sie entspannte Stunden mit der Familie oder laden Freunde zu geselligen Abenden ein.
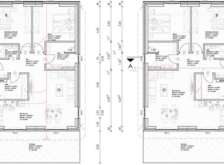
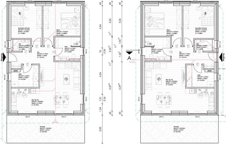
Das Raumkonzept ist klar strukturiert:
Elternschlafzimmer mit ausreichend Platz für Ruhe und Erholung
Kinderzimmer / Büro – flexibel nutzbar für Familie, Gäste oder Homeoffice
Modernes Bad mit stilvoller Ausstattung
Separates Gäste-WC für zusätzlichen Komfort
Hauswirtschaftsraum mit Platz für Technik und Organisation des Alltags
Die Grundrisse sind mit viel Liebe zum Detail geplant und bieten rund 85 m² Wohnfläche, die praktisch und zugleich großzügig wirken. Große Fensterfronten, eine angenehme Raumhöhe und die offene Gestaltung schaffen ein Gefühl von Weite und moderner Behaglichkeit.
Die Terrassen in Süd- und Westausrichtung laden zum Entspannen ein und verschmelzen den Wohnbereich mit der Natur. Die Gärten sind überschaubar angelegt – perfekt für alle, die wenig Pflegeaufwand, aber viel Lebensqualität wünschen.
Die Häuser sind nicht nur ein Zuhause, sondern auch eine Investition in die Zukunft: energieeffizient, barrierearm und ideal für Jung und Alt.
Kurz gesagt: Diese Bungalows vereinen moderne Architektur, funktionale Grundrisse und wohnliches Ambiente – ein Zuhause, das Sie sofort ins Herz schließen werden.
Gerne senden wir Ihnen weitere Informationen oder vereinbaren einen persönlichen Beratungstermin. Lassen Sie sich dieses besondere Angebot nicht entgehen!
NEUBAU: Erstbezug Bungalow- Doppelhaushälfte ganz nah an der Nordsee zu verkaufen
26831 Bunde
Die vollständige Adresse der Immobilie erhalten Sie vom Anbieter.
Auf Karte anzeigen
Die vollständige Adresse der Immobilie erhalten Sie vom Anbieter.
Finanzierungszertifikat
In nur zwei Minuten zu Ihrem persönlichen Finanzierungszertifkat.
Infos
| Haustyp | Bungalow |
|---|---|
| Etagenzahl | 1 |
| Wohnfläche ca. | 92 m2 |
| Grundstücksfläche | 400 m2 |
| Zimmer | 3 |
| Schlafzimmer | 2 |
| Badezimmer | 1 |
| Garage/Stellplatz | Carport |
| Anzahl Garage/Stellplatz | 1 |
Kosten
| Kaufpreis |
289.000 € |
|---|---|
| Provision |
Käuferprovision 3,57 % inkl. MwSt. fällig mit Beurkundung des notariellen Kaufvertrages |
Finanzierungsrechner:
Kaufpreis:
600.000 €
Eigenkapital:
600.000 €
Monatliche Rate
0 €
Effektiver Jahreszins
0 %
Sollzinsbindung
10 Jahre
Bausubstanz & Energieausweis
| Baujahr | 2026 |
|---|---|
| Heizungsart | Fußbodenheizung |
Beschreibung des Objekts
Ausstattung
- Neubau Energieeffizienzklasse KfW 55
- Bodenplatte mit Frostschürze
- barrierefrei
- auf rückseitig unterbauten Grundstück
- moderne Wärmepumpe
- dezentrale Lüftungsanlage
- Gäste- WC
- Fenster in Anthrazit mit 3-fach-Verglasung
- elektrisch betriebene Rollläden
- Putzbelag besteht aus Gipsputz der Qualitätsstufe Q2
- Bodenbelag: Vinyl (Wunschfarbe noch offen)
- großzügig gepflasterte Terrasse
- Carport
Lage
Bunderhammrich, ein kleiner Ortsteil der ostfriesischen Gemeinde Bunde, verbindet das Gefühl ländlicher Ruhe mit den Vorzügen einer durchdacht gewachsenen Infrastruktur. Wer hier lebt, spürt die Gelassenheit der Landschaft – und profitiert zugleich von allem, was das tägliche Leben angenehm macht.
Im nahegelegenen Zentrum von Bunde finden Sie Supermärkte, Bäcker, Apotheken, Banken und Ärzte – genau die Dinge, die man im Alltag schätzt. Auch Schulen, Kitas und Sportvereine sind vor Ort und machen das Leben für Familien besonders lebenswert.
Nur rund 15 Autominuten entfernt liegt Leer – eine charmante Stadt mit historischem Kern und umfassender Versorgung. Neben großen Einkaufsmärkten, gemütlichen Cafés und vielfältiger Gastronomie bietet Leer auch ein modernes Krankenhaus, Fachärzte, weiterführende Schulen und zahlreiche Freizeitmöglichkeiten. Die maritime Altstadt mit ihren Brücken, Kanälen und Boutiquen zieht regelmäßig Besucher aus der ganzen Region an.
Über die nahegelegene A31 sind Sie zudem hervorragend an Emden, Papenburg und das niederländische Groningen angebunden. Ob beruflich, kulturell oder touristisch – Sie erreichen alles in kürzester Zeit. Und wenn die Sehnsucht nach Meer erwacht: die Ostfriesischen Inseln sind nur einen Tagesausflug entfernt.
Die Nähe zum Fischerdorf Ditzum rundet die Lage auf charmante Weise ab. Hier treffen Sie auf traditionelle Krabbenkutter, malerische Gassen und norddeutsche Gelassenheit – ein Ort, an dem Zeit nicht eilt, sondern zählt.
Kurz gesagt: In Bunderhammrich wohnen Sie ruhig, naturnah und mit dem guten Gefühl, dass alles Wichtige ganz in Ihrer Nähe liegt.
Sonstige Angaben
Haftungsausschluss:
Alle Angaben in diesem Exposé wurden in Absprache mit dem Verkäufer zusammengestellt, sowie mit Unterstützung von KI erstellt und von uns nicht persönlich überprüft. Wir übernehmen keine Gewähr für die Vollständigkeit und Aktualität dieser Angaben im Exposé.
Grundriss
Ansichten und Schnitte
>
>
Grundriss
>
>
Adresse
26831 Bunde
Interessante Orte
Preis- und Lageinformationen
Preistrend für Bestandsimmobilien in Bunde