Attraktives Einfamilienhaus als Familienidylle oder Kapitalanlage – modernisiert & top ausgestattet
Dieses charmante Einfamilienhaus vereint modernen Wohnkomfort mit einem behaglichen Zuhausegefühl und bietet damit die ideale Grundlage für eine große Familie oder eine zukunftssichere Kapitalanlage. Das Objekt befindet sich aktuell in der Vermietung an Monteure, kann jedoch jederzeit leer übergeben werden und steht somit flexibel für Eigennutzung oder Vermietung zur Verfügung.
Das Haus präsentiert sich in einem gepflegten, modernisierten Zustand und überzeugt durch seine durchdachte Ausstattung sowie seine einladende Atmosphäre. Eine effiziente Öl-Heizung aus dem Jahr 2006 sorgt für wohlige Wärme im gesamten Haus, während der hochwertige Parkettboden den Wohnräumen ein warmes und stilvolles Ambiente verleiht.
Drei großzügige Stellplätze bieten ausreichend Platz für Fahrzeuge, Gäste oder praktische Nutzungsmöglichkeiten im Alltag. Das Dach wurde bereits gedämmt, ebenso wie zwei der Außenwände, was nicht nur den Wohnkomfort steigert, sondern auch zur Energieeffizienz der Immobilie beiträgt. Moderne Kunststofffenster mit 3-fach Verglasung sorgen zusätzlich für hervorragende Wärmedämmung und ein angenehmes Raumklima zu jeder Jahreszeit.
Die beiden hellen Badezimmer aus dem Jahr 2015 präsentieren sich in einem zeitlosen Design und bieten ausreichend Platz für die ganze Familie. Ein besonderes Highlight ist der großzügige Wintergarten, der zu jeder Jahreszeit ein wunderbarer Ort zum Entspannen und Genießen ist.
Für zusätzliche Sicherheit und Komfort sorgt eine moderne Alarmanlage mit Videoüberwachung, die optimalen Schutz für Haus und Grundstück gewährleistet.
Der liebevoll angelegte Garten bietet viel Platz für gemeinsame Stunden im Freien, Spielmöglichkeiten für Kinder oder gemütliche Grillabende mit Familie und Freunden. Die Teilunterkellerung schafft zusätzlichen Stauraum, während neue Heizkörper das Gesamtbild des modernisierten Hauses abrunden.
Dieses Einfamilienhaus ist ein echtes Wohlfühl-Zuhause mit viel Platz, solider Bausubstanz und einer Ausstattung, die kaum Wünsche offenlässt – perfekt geeignet für Familien, Investoren oder alle, die ein sofort bezugsfertiges Haus in gepflegtem Zustand suchen.
            
        Attraktives Einfamilienhaus als Familienidylle oder Kapitalanlage – modernisiert & top ausgestattet
                     28719 Bremen                            
Die vollständige Adresse der Immobilie erhalten Sie vom Anbieter.
        
            
            Auf Karte anzeigen
        
        
    Die vollständige Adresse der Immobilie erhalten Sie vom Anbieter.
    Finanzierungszertifikat
In nur zwei Minuten zu Ihrem persönlichen Finanzierungszertifkat.
Infos
| Haustyp | Einfamilienhaus | 
|---|---|
| Wohnfläche ca. | 166 m2 | 
| Nutzfläche | 44,77 m2 | 
| Grundstücksfläche | 440 m2 | 
| Zimmer | 6 | 
| Badezimmer | 2 | 
Kosten
| Kaufpreis | 
                459.000 € | 
        
|---|---|
| Provision | 
                            3,57% inkl. 19% MwSt. (Käuferprovision) | 
    
Finanzierungsrechner:
                    
                     Kaufpreis:
                        
                            600.000 €
                        
                    
                    
                    
                
            
                        
                            Eigenkapital:
                            
                                 600.000 €
                            
                        
                    
                
            
                        Monatliche Rate
                        0 €
                    
                    
                        
                            Effektiver Jahreszins
                        
                        0 %
                    
                    
                        Sollzinsbindung
                        10 Jahre
                    
                Bausubstanz & Energieausweis
| Baujahr | 1955 | 
|---|---|
| Qualität der Austattung | Normal | 
| Wesentliche Energieträger | Öl | 
| Energieausweis | liegt vor | 
| Energieausweistyp | Bedarfsausweis | 
| Energieverbrauchskennwert | 174,7 kWh/(m²*a) | 
| Energieeffizienzklasse | F | 
                                                    174,7
                                kWh/(m²*a)
                                                
                    Energieeffizienzklasse F
- A+
 - A
 - B
 - C
 - D
 - E
 - F
 - G
 - H
 
- 0
 - 25
 - 50
 - 75
 - 100
 - 125
 - 150
 - 175
 - 200
 - 225
 - >250
 
Beschreibung des Objekts
Ausstattung
                + 3 Adrige Elektrik 
+ Öl Heizung von 2006 
+ Parkett
+ 3 Stellplätze
+ Dach gedämmt
+ zwei Außenwände ebenfalls gedämmt
+ Kunststofffenster 3 Fach verglast 
+ 2 Badezimmer aus dem Jahr 2015
+ Wintergarten
+ Teilunterkellerung
+ Neue Heizkörper
+ Alarmanlage mit Videoüberwachnung
               
        Lage
                Das Wohngebiet Am Geestkamp im Bremer Stadtteil Burg-Grambke zeichnet sich durch eine ruhige und familienfreundliche Atmosphäre aus. Es handelt sich um ein gewachsenes Wohnumfeld mit überwiegend Ein- und Zweifamilienhäusern, durchzogen von viel Grün und kleinen Seitenstraßen, die das Gebiet besonders für Familien und Ruhesuchende attraktiv machen. Die Wohnlage ist geprägt von einem angenehmen, nachbarschaftlichen Charakter, fernab vom städtischen Trubel, aber dennoch gut angebunden.
In direkter Umgebung befinden sich zahlreiche Einkaufsmöglichkeiten für den täglichen Bedarf. Supermärkte, Bäcker, Apotheken und kleinere Fachgeschäfte sind schnell erreichbar und bieten eine gute Nahversorgung. Für größere Besorgungen oder einen ausgedehnten Einkaufsbummel bietet sich das nahe gelegene Einkaufszentrum oder der Stadtteil Bremen-Nord an, der eine Vielzahl an weiteren Angeboten bereithält.
Auch in puncto Freizeitgestaltung hat die Lage einiges zu bieten. Die Nähe zur Lesum und verschiedenen Grünflächen ermöglicht entspannte Spaziergänge, Fahrradtouren oder sportliche Aktivitäten im Freien. Besonders der Grambker See und umliegende Naturflächen bieten einen hohen Erholungswert. Sportvereine, Spielplätze und Freizeiteinrichtungen sind ebenfalls gut erreichbar und sorgen für ein abwechslungsreiches Freizeitangebot.
Familien mit Kindern profitieren von einer guten Bildungsinfrastruktur. Es gibt mehrere Kindergärten, Grundschulen sowie weiterführende Schulen in der Nähe. Die Bildungseinrichtungen sind meist gut zu Fuß oder mit dem Fahrrad erreichbar, was den Alltag für Familien erheblich erleichtert.
Die Anbindung an den öffentlichen Nahverkehr ist gut ausgebaut. Buslinien verbinden das Wohngebiet zuverlässig mit anderen Stadtteilen und dem Bremer Zentrum. Auch die Nähe zum Bahnhof Bremen-Burg ermöglicht schnelle Verbindungen, sowohl in die Innenstadt als auch in andere Regionen.
Kulturell hat der Stadtteil durch verschiedene kleinere Einrichtungen, lokale Veranstaltungen und Vereine eine lebendige, wenn auch eher bodenständige Szene. Das kulturelle Angebot der Bremer Innenstadt mit Theatern, Museen und Konzerten ist dank der guten Verkehrsanbindung ebenfalls schnell erreichbar.
Insgesamt handelt es sich bei der Lage Am Geestkamp um ein ruhiges, gut strukturiertes Wohngebiet mit einer ausgewogenen Mischung aus Natur, Infrastruktur und Erreichbarkeit. Es bietet eine hohe Lebensqualität und ist besonders für Familien, Paare und Menschen geeignet, die stadtnah, aber dennoch im Grünen wohnen möchten.
                
        Sonstige Angaben
                Die Florian Wellmann Immobilien GmbH hat sich auf den Verkauf und die Vermietung von hochwertigen Immobilien spezialisiert. Seit Jahren sind wir erfolgreich am Immobilienmarkt tätig. Wir verkaufen und vermieten exklusive und außergewöhnliche Objekte in den bevorzugten Lagen von Bremen & Umgebung. 
Wir sind durch beste regionale Kontakte gut vernetzt und können so unsere Objekte diskret und erfolgreich vermarkten. 
Mit hohem Engagement und großer Motivation wickeln wir die Immobilien unserer Kunden ab. Beste Referenzen sprechen für unseren professionellen Service. 
Sollten Sie noch weitere Informationen über unser Haus wünschen, werfen Sie einen Blick auf unsere Homepage 
WWW.FLORIAN-WELLMANN.DE
           
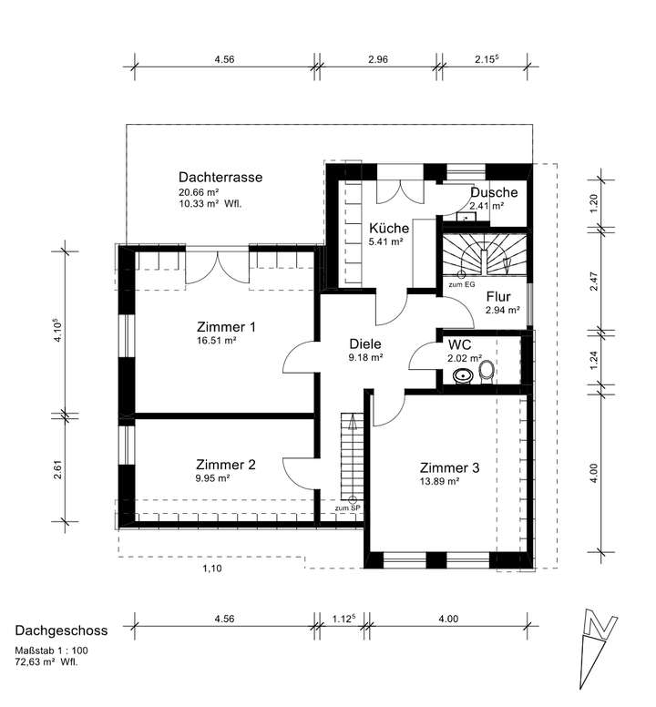
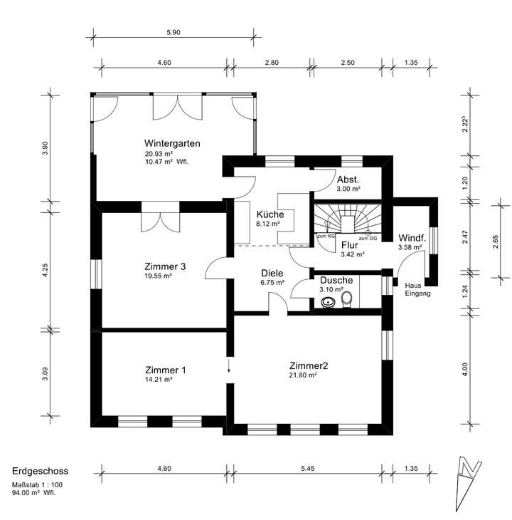
        Grundriss
                                    Grundriss Erdgeschoss
                                                                            
                                        >
                                                                    
                                                                                                                
                                        >
                                                                    
                                    Grundriss Dachgeschoss
                                                                            
                                        >
                                                                    
                                                                                                                
                                        >
                                                                    
                                    Grundriss Kellergeschoss
                                                                            
                                        >
                                                                    
                                                                        
                                        >
                                                                    Adresse
28719 Bremen
Interessante Orte
Preis- und Lageinformationen
                Preistrend für Bestandsimmobilien in Burg-Grambke