Falkensteinstraße 14 – ein Projekt von Cronstein GmbH, Heiner Immobilien Gruppe & Architekturbüro Teschauer
In bevorzugter Wohnlage von Karben-Petterweil entsteht ein exklusives Neubauprojekt mit vier hochwertig geplanten Doppelhaushälften. Das Projekt ist eine Kooperation der renommierten Bauträger Cronstein GmbH, der Heiner Immobilien Gruppe sowie dem erfahrenen Frankfurter Architekturbüro Teschauer – eine Partnerschaft, die für Qualität, Innovation und anspruchsvolle Architektur steht.
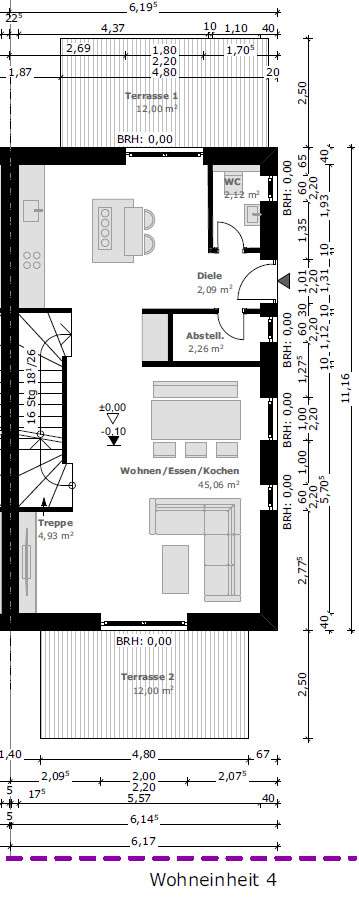
Jede der vier Haushälften beeindruckt mit ca. 141 m² Wohnfläche, verteilt auf Erdgeschoss, Obergeschoss und ein vollständig ausgebautes Dachgeschoss. Mit insgesamt 5 Zimmern, 2 stilvollen Badezimmern sowie einem Gäste-WC bieten die Häuser großzügigen Raum für modernes Familienleben oder anspruchsvolles Arbeiten und Wohnen unter einem Dach.
Die Außenbereiche überzeugen durch zwei getrennte Gartenbereiche samt zwei Terrassen – perfekt für Sonnenstunden zu jeder Tageszeit. Im Dachgeschoss erweitern zwei Dachterrassen das Wohngefühl in luftiger Höhe.
Das Projekt wird im Energieeffizienzstandard A+ realisiert – für dauerhaft niedrige Betriebskosten, hohen Wohnkomfort und eine nachhaltige Bauweise. Es kommen ausschließlich modernste, hochwertige Materialien zum Einsatz – vom durchdachten Wärmeschutz bis zu eleganten Oberflächen im Innenausbau.
Ein besonderes Plus: Frühentschlossene Käufer haben noch die Möglichkeit, Einfluss auf die Grundrissgestaltung zu nehmen und individuelle Wünsche umzusetzen.
Erleben Sie moderne Architektur, nachhaltige Bauweise und Wohnkomfort auf höchstem Niveau – in einem Zuhause, das mit Qualität, Funktionalität und Stil überzeugt.
Neubau: Moderne Doppelhaushälfte mit A+ Energieeffizienz in Karben-Petterweil
Falkensteinstraße 14,
61184 Karben
Auf Karte anzeigen
Finanzierungszertifikat
In nur zwei Minuten zu Ihrem persönlichen Finanzierungszertifkat.
Infos
| Haustyp | Doppelhaushaelfte |
|---|---|
| Etagenzahl | 3 |
| Wohnfläche ca. | 141 m2 |
| Grundstücksfläche | 220 m2 |
| Bezugsfrei ab | 4. Quartal 2026 |
| Zimmer | 5 |
| Schlafzimmer | 4 |
| Badezimmer | 2 |
| Garage/Stellplatz | Außenstellplatz |
| Anzahl Garage/Stellplatz | 2 |
Kosten
| Kaufpreis |
629.000 € |
|---|---|
| Preis für Garage/Stellplatz | 10.000 € |
| Provision | Nein |
Finanzierungsrechner:
Kaufpreis:
600.000 €
Eigenkapital:
600.000 €
Monatliche Rate
0 €
Effektiver Jahreszins
0 %
Sollzinsbindung
10 Jahre
Bausubstanz & Energieausweis
| Baujahr | 2025 |
|---|---|
| Objektzustand | Erstbezug |
| Qualität der Austattung | Gehoben |
| Heizungsart | Fußbodenheizung |
| Energieausweis | liegt vor |
| Energieausweistyp | Bedarfsausweis |
| Energieverbrauchskennwert | 16,0 kWh/(m²*a) |
| Energieeffizienzklasse | A+ |
16,0
kWh/(m²*a)
Energieeffizienzklasse A+
- A+
- A
- B
- C
- D
- E
- F
- G
- H
- 0
- 25
- 50
- 75
- 100
- 125
- 150
- 175
- 200
- 225
- >250
Beschreibung des Objekts
Ausstattung
- A+ Energieeffizienz
- Luft-Wasser-Wärme-Pumpe
- bezugsfertige Ausstattung
- Fußbodenheizung
- Lüftungsanlage mit Wärmerückgewinnung
- hochwertige Ausstattung mit namhaften deutschen Markenprodukten
- Auswahl der Bodenbeläge und Badfliesen
- Auswahl der Sanitärprodukte von Villeroy & Boch
- E-Ladestation am Stellplatz gegen Aufpreis möglich
Lage
Die Doppelhaushälften entstehen in ruhiger Wohnlage von Karben-Petterweil, einem charmanten Ortsteil der Stadt Karben im Wetteraukreis – bekannt für seine hohe Lebensqualität, grüne Umgebung und ausgezeichnete Infrastruktur.
Kindertagesstätten und eine Grundschule befinden sich direkt im Ort und sind fußläufig erreichbar – ideal für junge Familien.
Weiterführende Schulen wie die Kurt-Schumacher-Schule oder die Adolf-Reichwein-Schule befinden sich im nahegelegenen Stadtzentrum von Karben.
Die S-Bahn-Station Karben (S6) ist nur wenige Minuten mit dem Fahrrad oder Bus entfernt und bringt Sie in ca. 20 Minuten direkt nach Frankfurt am Main – perfekt für Pendler.
Eine Bushaltestelle mit Anbindung an den Regionalverkehr befindet sich in fußläufiger Nähe.
Die Autobahn A5 sowie die Bundesstraße B3 sind in wenigen Fahrminuten erreichbar und bieten eine schnelle Anbindung an das Rhein-Main-Gebiet.
Zahlreiche Supermärkte, Bäcker, Apotheken und weitere Einkaufsmöglichkeiten befinden sich im nahen Umkreis und sind bequem erreichbar.
Für Freizeit und Erholung laden umliegende Feld- und Waldwege, der nahegelegene Taunus sowie das beliebte Niddatal zu Spaziergängen, Radtouren und Naturgenuss ein.
Hier wohnen Sie ruhig und im Grünen – und sind gleichzeitig optimal angebunden an die pulsierende Metropolregion Frankfurt.
Grundriss
Freifläche
>
>
Grundriss_EG
>
>
Grundriss_OG
>
>
Grundriss_DG
>
>
Adresse
Falkensteinstraße 14, 61184 Karben
Interessante Orte
Preis- und Lageinformationen
Preistrend für Bestandsimmobilien in Karben