YOUR FAMILY'S FOREVER HOME. Ein Zuhause ist nicht nur ein Ort – es ist ein Gefühl. Es bedeutet Freiheit, Sicherheit und eine Zukunft, die du selbst gestalten kannst. Mit White&Black bekommst du mehr als ein Haus – du bekommst einen Lebensraum, der mit dir wächst. Stell dir vor: Ein lichtdurchflutetes Wohnzimmer, in dem du mit Freunden und Familie lachst. Ein Garten, der Platz für Sommerabende, Kinderlachen oder deine Ruheoase bietet. Ein Zuhause, das dir gehört – ohne steigende Mieten, ohne Unsicherheiten. BUILD YOUR WAY. OWN YOUR SPACE. Von der individuellen Finanzierungsberatung über die Grundstückssuche bis zur perfekten Hauslösung – wir stehen an deiner Seite. FEELS LIKE HOME. Dein Stil, dein Design, dein Zuhause. MORE HOME. LESS WORRY. Klare Prozesse, stressfreie Planung, einfaches Bauen. SIMPLE IS THE NEW LUXURY. Durchdachte Architektur, hochwertige Ausstattung, smarte Technologien. Es gibt nie den perfekten Moment – aber den richtigen Schritt. Dein Zuhause ist näher, als du denkst. START YOUR HOME JOURNEY TODAY.
Maximaler Komfort, minimaler Aufwand.
30900 Wedemark
Die vollständige Adresse der Immobilie erhalten Sie vom Anbieter.
Auf Karte anzeigen
Die vollständige Adresse der Immobilie erhalten Sie vom Anbieter.

Finanzierungszertifikat
In nur zwei Minuten zu Ihrem persönlichen Finanzierungszertifkat.
Infos
Haustyp | Einfamilienhaus |
---|---|
Wohnfläche ca. | 139 m2 |
Nutzfläche | 0 m2 |
Grundstücksfläche | 1.212,99 m2 |
Zimmer | 4 |
Schlafzimmer | 3 |
Badezimmer | 1 |
Anzahl Garage/Stellplatz | 0 |
Kosten
Kaufpreis |
507.481 € |
---|---|
Provision | Nein |
Finanzierungsrechner:
Kaufpreis:
600.000 €
Eigenkapital:
600.000 €
Monatliche Rate
0 €
Effektiver Jahreszins
0 %
Sollzinsbindung
10 Jahre
Bausubstanz & Energieausweis
Baujahr | 2026 |
---|---|
Bauphase | Haus in Planung (projektiert) |
Qualität der Austattung | Gehoben |
Heizungsart | Wärmepumpe |
Beschreibung des Objekts
Ausstattung
THINK FAST-VOLLENDET PLUS – Bereit für dein Finish. - Technik, Heizung & Sanitärinstallation sind drin – du kümmerst dich nur um den Feinschliff - Das Plus mit hochwertigen Sanitärobjekten und Fliesen - Streichen, Böden verlegen, Türen setzen – du machst, was du willst - Kein Stress mit Rohbau oder Technik – Fokus nur noch auf den Feinschliff - Smartes Sparpotenzial – fertig gebaut, individuell finalisiert - Ideal für Macher mit Anspruch – hochwertige Basis für deinen Stil Für alle, die mitgestalten wollen – ohne auf Komfort zu verzichten.
Lage
Ruhe und Geborgenheit und Hannover direkt um die Ecke
Sonstige Angaben
Das Haus ist projektiert inkl. Grundstück. Das Grundstück wird in Kommission angeboten bzw. direkt von Dritten verkauft. Daher kann der genannte Preis aufgrund aktueller Marktsituationen schwanken. Die Bauabwicklung kann kurzfristig nach Grundstückserwerb begonnen werden. Bilder zeigen möglicherweise Sonderausstattungen, die auf Wunsch gegen Aufspreis zusätzlich angeboten werden können. Erhalte in deinem persönlichen Beratungsgespräch kostenlos alle wichtigen Informationen zu diesem Projekt, insbesondere: Lage und Bebauungsmöglichkeiten des Baugrundstücks, Baukosten-Kalkulation, Finanzierungs- u. Förderungsmöglichkeiten sowie detaillierte Architektur- uund Grundrissplanung. Wir freuen uns darauf, dich beraten zu dürfen!
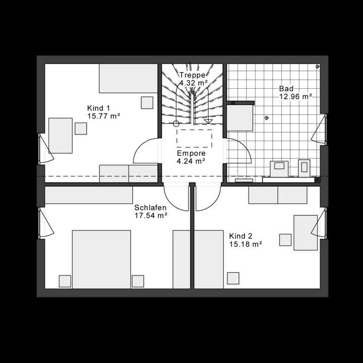
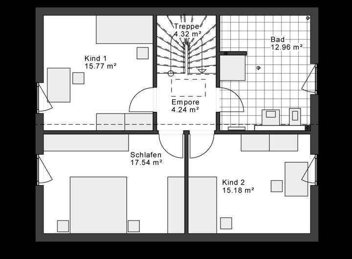
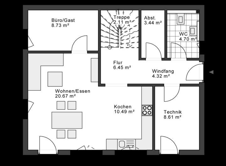
Grundriss
Grundriss EG
>

Grundriss OG
>

Adresse
30900 Wedemark
Interessante Orte
Preis- und Lageinformationen
Preistrend für Bestandsimmobilien in Wedemark