Entdecken Sie die Möglichkeit, Ihr Traumhaus in Form eines modernen Doppelhauses -rechts zu realisieren. Dieses projektierte Objekt, das nach Ihren individuellen Wünschen gestaltet werden kann, bietet Ihnen nicht nur eine beeindruckende Architektur, sondern auch eine durchdachte Raumaufteilung über zwei Etagen. Mit 5 großzügigen Zimmern auf einer Wohnfläche von 125 m², verteilt auf drei Schlafzimmern und zwei luxuriösen Badezimmern plus einem Gäste-WC, lässt dieser Entwurf keine Wünsche offen. Das Highlight: Die hervorragende Schallisolierung der STREIF Wandkonstruktion sorgt für ein ruhiges Wohnen, auch wenn das Haus direkt an eine weitere Haushälfte anschließt.
***Doppelhaushälfte-rechts in bester Lager: Komfort und Lebensqualität mit Klinkeraktion***
30916 Isernhagen
Die vollständige Adresse der Immobilie erhalten Sie vom Anbieter.
Auf Karte anzeigen
Die vollständige Adresse der Immobilie erhalten Sie vom Anbieter.

Finanzierungszertifikat
In nur zwei Minuten zu Ihrem persönlichen Finanzierungszertifkat.
Infos
Haustyp | Doppelhaushaelfte |
---|---|
Etagenzahl | 2 |
Wohnfläche ca. | 125 m2 |
Nutzfläche | 25 m2 |
Grundstücksfläche | 678 m2 |
Bezugsfrei ab | 2025 |
Zimmer | 5 |
Schlafzimmer | 3 |
Badezimmer | 2 |
Kosten
Kaufpreis |
1.009.058 € |
---|---|
Provision | Nein |
Finanzierungsrechner:
Kaufpreis:
600.000 €
Eigenkapital:
600.000 €
Monatliche Rate
0 €
Effektiver Jahreszins
0 %
Sollzinsbindung
10 Jahre
Bausubstanz & Energieausweis
Baujahr | 2025 |
---|---|
Bauphase | Haus in Planung (projektiert) |
Qualität der Austattung | Gehoben |
Heizungsart | Wärmepumpe |
Energieausweis | liegt zur Besichtigung vor |
Beschreibung des Objekts
Ausstattung
Erleben Sie gehobene Ausstattung mit hochwertigen Fliesenböden und individuell wählbaren Belägen, die Ihrem Wohnstil entsprechen. Die moderne Wärmepumpen-Technologie sorgt nicht nur für umweltfreundliche Beheizung, sondern ist auch besonders energieeffizient durch den KfW40 Standard. Genießen Sie in den Bädern sowohl Dusche als auch Badewanne sowie Tageslicht durch große Fenster - hier wird Komfort großgeschrieben.
Lage
Das Doppelhaus befindet sich in einer attraktiven Wohngegend von Isernhagen. Die Infrastruktur lässt keine Wünsche offen: In unmittelbarer Nähe finden Sie Apotheken, Einkaufsmöglichkeiten und einen Bahnhof für optimale Anbindung. Auch der Nachwuchs ist bestens versorgt mit Kindergärten, Grund- und weiterführenden Schulen sowie einem Spielplatz in der Umgebung - ideal für Familien!
Sonstige Angaben
STREIF Haus - der Pionier der deutschen Fertighausbranche Die langjährige Firmentradition des Unternehmens reicht bis in das Jahr 1929 zurück. In den 50er und 60er Jahren wurde in Deutschland schnell und viel Wohnraum für Familien benötigt, seitdem konzentrierte sich das Unternehmen auf die Entwicklung und Produktion von Fertighaustypen, die im Werk in großen Stückzahlen hergestellt werden konnten. So kann das Unternehmen auf 90.000 gebaute Hausobjekte zurückblicken und sich zu Recht als Pionier der deutschen Fertighausbranche bezeichnen. Die neuen Energiesparhäuser - So baut man heute. Unser Anspruch ist es, in enger Partnerschaft mit unseren Kunden langlebige Häuser zu bauen, mit einer hohen architektonischen Qualität, individuell geplant und dabei energieeffizient und ressourcenschonend. Jedes STREIF-Haus ist einzigartig und wird speziell für jeden Kunden "maßgeschneidert" und gebaut. Passend zu den persönlichen Wünschen, dem vorgegebenen Budget und dem vorhandenen Grundstück planen und bauen wir jedes Haus mit viel Liebe zum Detail.
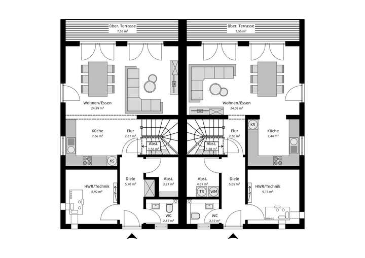
Grundriss
95944-8115-6-g
>

95947-8115-9-g
>

Adresse
30916 Isernhagen
Interessante Orte
Preis- und Lageinformationen
Preistrend für Bestandsimmobilien in Isernhagen