Auf einem schönen, Abriss-Grundstück in Ober-Erlenbach bauen wir ein Reihenendhaus (153 m² Wfl.) auf Bodenplatte mit ausgebautem Dachgeschoss und großer Gaube mit Satteldach.
Abrisskosten anteilig circa. 25.000,--€ (für alle 5 Häuser gleich)
FAKTEN:
– Effizienzhaus 40
– Ihre Grundstücksseite hat 288 m², im Angebot inklusive (235.000,-€)
– inkl. Bodenplatte und Sockeldämmung
– inkl. Belüftungsanlage
– Luftwasserwärmepumpe mit Fußbodenheizung
– 3-fach verglaste Kunststofffenster
– inkl. elektrischer Rollläden
- schlüsselfertig (alles erledigt)
- 7 x 10 m im Angebot enthalten.
- Dachneigung 45 °
DETAILBESCHREIBUNG:
ES HANDELT SICH UM EIN FIKTIVES HAUSBEISPIEL.
Im EG liegt der großzügige, lichtdurchflutete Mittelpunkt des Hauses mit einem Wohnbereich von über 36 m², und einer großen Terrassentüren in den Garten, inkl. offener Küche.
Zusätzlich bietet das EG eine Diele, eine Garderobe, eine Speisekammer unter der Treppe, einen HAR/HWR (8 m²) und ein Gäste-WC.
Im Obergeschoss befinden sich 2 helle Kinderzimmer mit bodentiefen Fenstern. (je über 12 m²).
Das Bad (auch 12 m²) hat einen Leiterheizkörper, ein Waschbecken, Toilette und eine Dusche mit Echtglaskabine, ein Fenster sorgt für viel Helligkeit.
Das Elternschlafzimmer ist gut geschnitten (13 m²), hat auch 1 bodentiefes Fenster und genügend Stellfläche für Ihre Schränke.
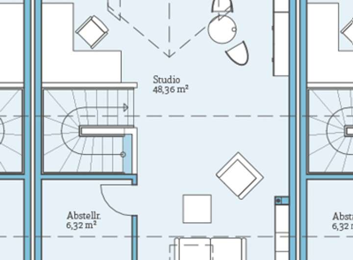
Das DG bietet ein großes Studio mit ca. 48 m² für ein bis zwei Zimmer, je nach Wunsch und zusätzlich noch einen Abstellraum (über 6 m²).
Es gibt eine große Satteldachgaube mit Doppelfenster bodentief und auf der anderen Seite ein Dachflächenfenster.
Ein Bad ist hier möglich (Aufpreis ca. 5T €)
Dieses Haus verfügt über eine Luftwasserwärmepumpe mit Fußbodenheizung.
Abbildung zeigt Sonderausstattung, die nicht inklusive ist!
Änderungen können zu Mehrpreisen führen.
Nicht im Angebot enthaltene Kosten:
Grundstücksnebenkosten ca. 13,95% (Courtage, Notar und Grunderwerbssteuer).
Baunebenkosten bei Bodenplatte (Hausanschlüsse, Vermesser, Erdarbeiten usw.): ca. 40- 50 T€.
Rufen Sie gleich an und vereinbaren Sie noch heute einen Beratungstermin in unserem Musterhaus Bad Vilbel – Platz 8.
Wir übernehmen den Eintritt und freuen uns auf Ihren Besuch.
Reihenendhaus in Schlüsselfertig, ruhige Lage mit Süd-Garten.
61352 Bad Homburg vor der Höhe
Die vollständige Adresse der Immobilie erhalten Sie vom Anbieter.
Auf Karte anzeigen
Die vollständige Adresse der Immobilie erhalten Sie vom Anbieter.
Finanzierungszertifikat
In nur zwei Minuten zu Ihrem persönlichen Finanzierungszertifkat.
Infos
| Haustyp | Reiheneckhaus |
|---|---|
| Etagenzahl | 3 |
| Wohnfläche ca. | 153 m2 |
| Nutzfläche | 10 m2 |
| Grundstücksfläche | 288 m2 |
| Zimmer | 6 |
| Schlafzimmer | 5 |
| Badezimmer | 2 |
| Anzahl Garage/Stellplatz | 2 |
Kosten
| Kaufpreis |
725.000 € |
|---|---|
| Provision |
5,95 % 5,95 % inkl. ges. MwSt., aber nur aufs Grundstück |
Finanzierungsrechner:
Kaufpreis:
600.000 €
Eigenkapital:
600.000 €
Monatliche Rate
0 €
Effektiver Jahreszins
0 %
Sollzinsbindung
10 Jahre
Bausubstanz & Energieausweis
| Baujahr | 2026 |
|---|---|
| Bauphase | Haus in Planung (projektiert) |
| Objektzustand | Erstbezug |
| Qualität der Austattung | Luxus |
| Heizungsart | Wärmepumpe |
| Wesentliche Energieträger | Strom |
| Energieausweis | liegt vor |
| Energieausweistyp | Verbrauchsausweis |
Beschreibung des Objekts
Ausstattung
Reihenmittelhaus 153 m²
Bei dieser Planungsvariante des Reihenhauses wurde die Dachneigung des Satteldaches erhöht und zur Gartenseite hin ein Zwerchgiebel ergänzt. So entsteht ein zusätzliches Geschoss mit Aufenthaltsräumen und vielseitigen Nutzungsmöglichkeiten.
Der Zwerchgiebel sorgt für Kopffreiheit und seine großen Fensterflächen bringen viel Licht für ein weiteres Kinderzimmer, ein Gäste- und Arbeitszimmer oder einen Sport- und Hobbyraum sowie zusätzlichen Stauraum bis unter die Dachschrägen.
Jetzt gratis Katalog anfordern
Merkmale
Dachform Satteldach
Dachneigung 45°
Kniestock 50
Wohnfläche 155,15 m²
Grundfläche 171,73 m²
Anzahl Geschosse 2,5
Lage
Das Grundstück befindet sich direkt auf der anderen Straßenseite vom Neubaugebiet " Am Hühnerstein " im Ortsteil Ober-Erlenbach.
Bodenrichtwert hier nur bei 900€/m², gegenüber im Neubaugebiet "Hühnerstein" liegt der BRW 250€ höher pro m² !
Das Grundstück hat eine optimale Süd-West Ausrichtung.
D.h. Sie haben den ganzen Tag Sonne im Garten !
Das Haus steht hinten, der Garten ist vorne.
Wir haben hier ein Baufenster von 7 m (Front) x 10 m (Tiefe).
In unmittelbarer Nähe befinden sich:
- Einkaufmöglichkeiten für den täglichen Bedarf
- Kindergarten, Kinderhort und Grundschule
- Bank
- Ärzte
- Apotheke
Sonstige Angaben
Fertighaus Vorteile:
Es ist eine grundlegende Entscheidung, ob man ein Massivhaus oder ein Fertighaus baut. Wie gut Fertighäuser wirklich sind und welche Vorteile ein Fertighaus bietet, haben wir für Sie in einer kurzen Übersicht zusammengestellt, die Ihnen die Entscheidung erleichtern soll.
Beispielsweise können bei einem Fertighaus vor der Planung und Einrichtung bereits Ausstellungshäuser besichtigt werden, was grundlegende Entscheidungen erleichtern sollte.
Zudem steht Ihnen während des gesamten Bauablaufs ein kompetenter Betreuer zur Seite, der Ihr Ansprechpartner in allen Belangen ist und somit die Bauphase für Sie enorm erleichtert.
- Fixe Baukosten
- Kurze Bauzeit
- Witterungsunabhängiges bauen (Bauen auch im Winter)
- Inspiration durch Ausstellungshäuser
- Vier unterschiedliche Ausbaustufen
- Beratung, Bau und Koordination alles aus einer Hand
- Bemusterung an einem Ort
- individuelle Architektenplanung für mehr Spielraum
- Hohe Qualität durch präzise
- Vorfertigung und jahrelange Erfahrung
- Energieeffizienz durch beste Wärmedämmung und moderne Heiztechnik
- Über 36.000 zufriedene Hanse Haus Bauherren
- Fairster Fertigungsanbieter zum 11. Mal in Folge
- Ausgezeichnetes Preis-Leistungs-Verhältnis
Weitere Dokumente
BLBGrundriss
EG Mittel
>
>
OG Mittel
>
>
DG Mittel
>
>
Adresse
61352 Bad Homburg vor der Höhe
Interessante Orte
Preis- und Lageinformationen
Preistrend für Bestandsimmobilien in Bad Homburg vor der Höhe