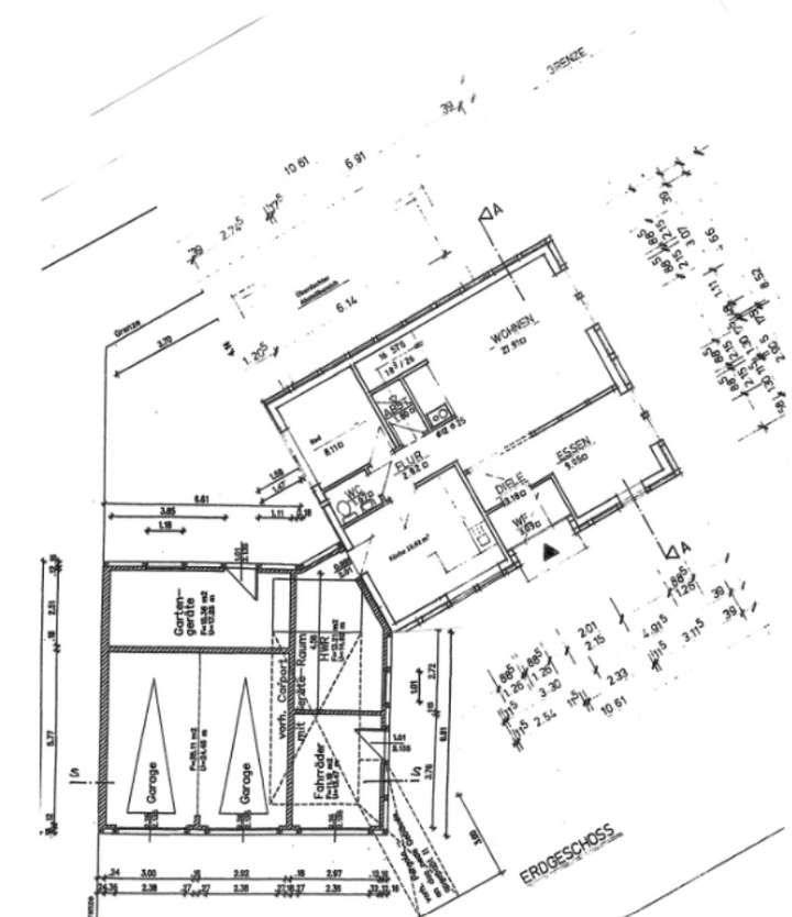
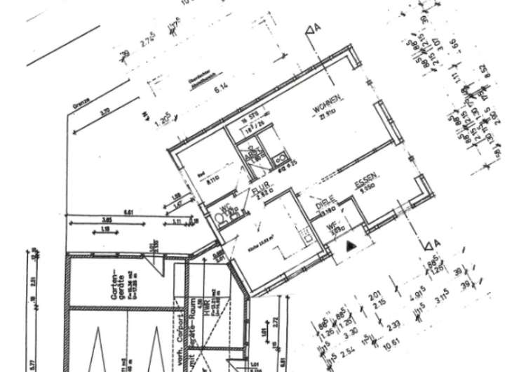
Auf dem sehr schönen, ruhigen Gesamtgrundstück in Winsen/Aller OT Meißendorf, stehen 3 Wohnhäuser mit unterschiedlichen Größen. Im vorderen Bereich wurde das Fachwerkhaus gebaut. Über eine gemeinsame Zufahrt erreichen Sie die beiden weiteren Häuser. Das Fachwerkhaus mit seinem Garagenanbau ist großzügig gebaut und bestens für die Familie mit Kindern geeignet. Die dahinter liegenden beiden Häuser sind miteinander verbunden. Dennoch haben beide Häuser ihren eigenen Bereich im Garten. Diese Häuser eignen sich sehr gut für weitere Generationen oder zur Dauervermietung bzw. ggf. Ferienhäuser. Alle drei Häuser sind sehr gepflegt und mit jeweils hochwertigen Einbauküchen ausgestattet. Folgende besondere Ausstattung ist jeweils vorhanden: Fachwerkhaus, Haus-Nr. 11: - Wohnfläche ca. 137 m² - Nutzfläche ca. 60 m² - Sprossenfenster - Rollläden - Kaminofen - sichtbares Fachwerk innen - Doppelgarage + Fahrradgarage von innen erreichbar und mit funkgesteuerten Toren - Einbauküche aus 2018 mit Induktions-Kochfeld - wohnlicher, überdachter Außensitzplatz zum Grillen - zusätzlicher, überdachter Terrassenplatz - sehr gepflegter Garten mit gemütlichen Sitzplätzen - Beregnungsanlage - Mähroboter Grundriss Fachwerkhaus EG: - großzügiger Wohn- /Essbereich - moderner Kaminofen, zentral im Wohn- / Essbereich - große Küche mit Zugang in HWR, separater Dusche, Abstellraum und Garagen - großes, modernes Bad mit flacher Duschtasse und Edelstahl Duschpaneel Grundriss Fachwerkhaus DG: - drei Schlafzimmer - ein Ankleidebereich - ein Duschbad Raumaufteilung und Ausstattung Wohnhaus mit Haus-Nr. 13: - Wohnfläche ca. 79 m² - Nutzfläche ca. 15 m² - EG Kochen-Essen-Wohnen inkl. hochwertiger Einbauküche - EG Kellerzugang (1 Raum) von der Küche aus - EG modernes Badezimmer mit Badewanne und Duschbereich - EG Gäste-WC - EG Einbauschrank im Flur - DG ein großes, durchgehendes Schlafzimmer Raumaufteilung und Ausstattung Wohnhaus mit Haus-Nr. 13 A: - Wohnfläche ca. 76 m² - Nutzfläche ca. 35 m² - EG Wohnzimmer mit Kaminofen und Sichtfachwerk - EG Große Wohnküche mit moderner Einbauküche - EG modernes Gäste-WC - EG modernes Badezimmer mit Badewanne und Dusche - DG Schlafzimmer 1 mit überdachtem Balkon - DG Schlafzimmer 2 mit Einbauschränken - DG Flur mit Einbauschränken Der angebaute Garagenbereich mit Abstellraum kann sowohl von der Hausnummer 13 als auch Hausnummer 13 A genutzt werden.
3 sehr gepflegte Häuser auf einem Grundstück, Mehr-Generationen-Wohnen, Winsen/Aller OT Meißendorf
29308 Winsen (Aller)
Die vollständige Adresse der Immobilie erhalten Sie vom Anbieter.
Auf Karte anzeigen
Die vollständige Adresse der Immobilie erhalten Sie vom Anbieter.

Finanzierungszertifikat
In nur zwei Minuten zu Ihrem persönlichen Finanzierungszertifkat.
Infos
Haustyp | Besondere Immobilie |
---|---|
Etagenzahl | 2 |
Wohnfläche ca. | 290 m2 |
Nutzfläche | 110 m2 |
Grundstücksfläche | 1.250 m2 |
Bezugsfrei ab | nach Absprache |
Zimmer | 10 |
Schlafzimmer | 6 |
Badezimmer | 4 |
Garage/Stellplatz | Garage |
Anzahl Garage/Stellplatz | 3 |
Kosten
Kaufpreis |
849.000 € |
---|---|
Provision |
3,57 % Das vom Käufer der Immobilie zu zahlende Maklerhonorar beträgt 3,57% inklusive der gesetzlichen Mehrwertsteuer vom notariellen Kaufpreis und ist mit Unterzeichnung des Kaufvertrages zur Zahlung fällig. |
Finanzierungsrechner:
Kaufpreis:
600.000 €
Eigenkapital:
600.000 €
Monatliche Rate
0 €
Effektiver Jahreszins
0 %
Sollzinsbindung
10 Jahre
Bausubstanz & Energieausweis
Baujahr | 1989 |
---|---|
Letzte Sanierung | 2020 |
Objektzustand | Gepflegt |
Qualität der Austattung | Gehoben |
Heizungsart | Zentralheizung |
Wesentliche Energieträger | Gas |
Energieausweis | liegt zur Besichtigung vor |
Beschreibung des Objekts
Lage
Winsen (Aller) ist eine Gemeinde im Landkreis Celle mit rund 12 700 Einwohner und liegt in der Lüneburger Heide. Die Gemeinde besteht aus den Ortschaften Winsen, Bannetze, Meißendorf, Stedden, Thören, Walle und Wolthausen. Im Ort Winsen finden Sie Ärzte, Apotheken, Einkaufsmöglichkeiten, Restaurants, Schwimmbad, Sporthalle, Kindergärten und Grundschule. Die „Schule im Allertal“ bietet mit den Schulzweigen Haupt- und Realschule sowie Gymnasium ab Klasse 5 ein begabungsorientiertes Bildungsangebot. Die Kreisstadt Celle erreichen Sie in ca. 25 Autominuten.
Sonstige Angaben
Mit Erhalt des Exposés erkennen Sie an, dass der Erwerb des o. g. Objektes durch Nachweis oder Vermittlung der Gebers&Roch Immobilien GmbH erfolgt. Ist dem Auftraggeber die ihm nachgewiesene Vertragsangelegenheit bereits bekannt, hat er dies unverzüglich der Firma Gebers&Roch Immobilien GmbH mitzuteilen. Eine Weitergabe der Objektdaten verpflichtet zum Schadenersatz, falls ein Dritter dadurch zum Vertragsabschluss kommt. Alle Angaben beruhen auf Informationen des Verkäufers und sind vom Käufer vor Vertragsabschluss nachzuprüfen. Für die Richtigkeit der Verkäuferangaben können wir keine Haftung übernehmen. Irrtümer bleiben vorbehalten.
Grundriss
EG-Grundriss Nr. 11
>

DG-Grundriss Nr. 11
>

EG-Grundriss Nr. 13 + 13 A
>

DG-Grundriss Nr. 13 + 13 A
>

Adresse
29308 Winsen (Aller)
Interessante Orte
Preis- und Lageinformationen
Preistrend für Bestandsimmobilien in Winsen (Aller)