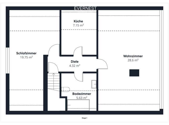
Dieses großzügige Ein- bzw. Zweifamilienhaus in Garbsen überzeugt mit rund 152,3 m² Wohnfläche, einem ausgebauten Keller sowie einem 552 m² großen Grundstück. Über den einladenden Eingangsbereich gelangen Sie in den Hausflur, von dem aus beide Wohneinheiten erreichbar sind. In der Erdgeschosswohnung erwartet Sie ein großzügiger Wohn- und Essbereich mit einer breiten Fensterfront, die viel Tageslicht hereinlässt und den Blick auf die Terrasse sowie den gepflegten Garten öffnet. Eine offene Nische bietet zusätzlichen Platz für einen separater Arbeitsplatz, eine gemütliche Leseecke oder einen kleiner Spielbereich für Kinder. Die Küche schließt sich harmonisch an den Wohn- und Essbereich an und kann bei Bedarf durch einen Wanddurchbruch zum Wohn-/Essbereich geöffnet werden. Neben dem Gästebad und dem Hauptbadezimmer befindet sich auf dieser Ebene zudem ein weiteres Zimmer, das sich flexibel als Schlafzimmer, Homeoffice oder Gästezimmer nutzen lässt. Im Souterrain befinden sich zwei zusätzliche Schlafzimmer sowie ein weiteres Duschbad. Zudem befindet sich hier ein großzügiger Fitnessraum mit integrierter Sauna, um nach einem langen Tag zu entspannen oder das Wochenende gemütlich zu genießen. Die Wohnung im Dachgeschoss verfügt über ein großes, lichtdurchflutetes Wohnzimmer, ein Schlafzimmer, eine Küche sowie ein Badezimmer. Diese Räumlichkeiten können als eigenständige Wohneinheit genutzt, vermietet oder mit dem Erdgeschoss zu einer großzügigen Einheit verbunden werden. So eröffnen sich zahlreiche Möglichkeiten, etwa für Mehrgenerationenwohnen, als großes Einfamilienhaus oder zur Teilvermietung, um in den ersten Jahren einen Teil der Hausfinanzierung durch Mieteinnahmen zu decken. Unter- und Erdgeschoss wurden bereits umfassend renoviert. In den letzten Jahren wurden unter anderem die Fenster, die Eingangstür, die Bäder, die Elektrik sowie die Heizung erneuert. Die dreifach verglasten Fenster sowie die Fußbodenheizung sorgen dabei für hervorragende Energieeffizienz und angenehmes Wohnklima. Zusätzlich schafft der Kamin eine behagliche Atmosphäre. Das gesamte Grundstück ist durch eine blickdichte Mauer eingefasst und bietet somit viel Privatsphäre. Über das elektrische Garagentor gelangen Sie in die Einfahrt. Eine große Garage rundet das Angebot ab. Das Haus befindet sich in einer ruhigen, gewachsenen Wohnlage mit guter Anbindung an Einkaufsmöglichkeiten, Schulen und den öffentlichen Nahverkehr. Es wurde regelmäßig instand gehalten, präsentiert sich in einem sehr gepflegten Zustand und ist nach Absprache bezugsfrei. Insgesamt handelt es sich um ein hochwertig ausgestattetes Einfamilienhaus mit viel Platz, modernen Extras und einem traumhaften Garten. Ideal für Familien, die ein bezugsfertiges Zuhause mit Wohlfühlatmosphäre suchen.
Familienfreundliches Ein-/Zweifamilienhaus mit viel Platz in Garbsen
30823 Garbsen
Die vollständige Adresse der Immobilie erhalten Sie vom Anbieter.
Auf Karte anzeigen
Die vollständige Adresse der Immobilie erhalten Sie vom Anbieter.

Finanzierungszertifikat
In nur zwei Minuten zu Ihrem persönlichen Finanzierungszertifkat.
Infos
Haustyp | Mehrfamilienhaus |
---|---|
Etagenzahl | 2 |
Wohnfläche ca. | 152 m2 |
Nutzfläche | 87 m2 |
Grundstücksfläche | 552 m2 |
Zimmer | 4 |
Badezimmer | 3 |
Garage/Stellplatz | Parkhaus |
Anzahl Garage/Stellplatz | 1 |
Kosten
Kaufpreis |
529.900 € |
---|---|
Provision |
3.57 % inkl. MwSt. Bei Abschluss eines notariellen Kaufvertrages ist eine Käuferprovision vom Käufer in Höhe von 3.57 % inkl. MwSt. aus dem Kaufpreis fällig. |
Finanzierungsrechner:
Kaufpreis:
600.000 €
Eigenkapital:
600.000 €
Monatliche Rate
0 €
Effektiver Jahreszins
0 %
Sollzinsbindung
10 Jahre
Bausubstanz & Energieausweis
Baujahr | 1980 |
---|---|
Letzte Sanierung | 2017 |
Objektzustand | Saniert |
Qualität der Austattung | Normal |
Heizungsart | Gas-Heizung |
Wesentliche Energieträger | Gas |
Energieausweis | liegt vor |
Energieausweistyp | Bedarfsausweis |
Energieverbrauchskennwert | 93,0 kWh/(m²*a) |
Energieeffizienzklasse | C |
93,0
kWh/(m²*a)
Energieeffizienzklasse C
- A+
- A
- B
- C
- D
- E
- F
- G
- H
- 0
- 25
- 50
- 75
- 100
- 125
- 150
- 175
- 200
- 225
- >250
Beschreibung des Objekts
Ausstattung
-Kamin -Sauna -Garage -Fitnessraum -Einbauküche -große Terrasse -Fußbodenheizung -Einfriedung inkl. elektr. Einfahrtstor
Lage
Die Immobilie befindet sich in einer ruhigen und familienfreundlichen Wohnlage im beliebten Stadtteil Altgarbsen. Das gefragte Wohngebiet mit ausgezeichneter Infrastruktur ist geprägt von gewachsenen Strukturen und einem angenehmen, nachbarschaftlichen Umfeld. Alle wichtigen Einrichtungen des täglichen Bedarfs, wie Einkaufsmöglichkeiten, Apotheken, Ärzte, Banken sowie Restaurants und Cafés, sind in wenigen Minuten erreichbar. Von der Kita bis zur weiterführenden Schule ist alles in der näheren Umgebung vorhanden, was die Lage besonders attraktiv für Familien macht. Mehrere Buslinien fahren regelmäßig und bieten Anschlüsse an die Stadtbahnlinie 4, über die man Hannover in kurzer Zeit erreicht. Auch mit dem Auto ist die Lage ideal. Die B6, A2 und A7 sind schnell erreichbar, ebenso der Flughafen Hannover-Langenhagen. Zahlreiche Naherholungsgebiete, Parks und der nahegelegene Blaue See bieten vielfältige Möglichkeiten zur Freizeitgestaltung. Das Einfamilienhaus liegt in einer Straße am Ortsrand ohne Durchgangsverkehr. Hier verbindet sich entspanntes Wohnen im Grünen mit einer hervorragenden städtischen Anbindung. Ideal für alle, die Ruhe suchen, aber auf Komfort und Erreichbarkeit nicht verzichten möchten.
Grundriss
Erdgeschoss
>

1.Obergeschoss
>

Souterrain
>

Adresse
30823 Garbsen
Interessante Orte
Preis- und Lageinformationen
Preistrend für Bestandsimmobilien in Garbsen