Dieses neuwertige Reihenendhaus bietet mit ca. 162 m² Wohnfläche reichlich Platz für die Familie. Auf zwei Vollgeschossen verteilen sich vier Zimmer – ideal für komfortables und entspanntes Wohnen.
Das 2021 massiv erbaute Haus steht auf einem ca. 395 m² großen Grundstück in ruhiger, familienfreundlicher Lage. Das charmante Satteldach und die hochwertige Bauweise verleihen dem Haus ein modernes, zeitloses Erscheinungsbild. Dank zwei Vollgeschossen ohne Dachschrägen bieten alle Zimmer optimale Raumhöhe und großzügige Nutzflächen. Zusätzliche Ausbaureserve im Dachboden ist vorhanden (derzeit als Abstellraum genutzt).
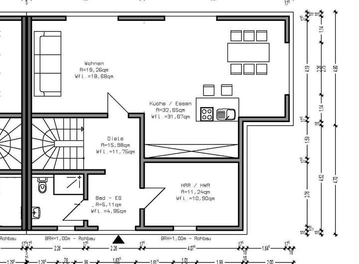
Erdgeschoss
Über den freundlichen Eingangsbereich gelangen Sie in die Diele mit Zugang zum Gäste-WC mit Dusche. Herzstück ist das großzügige Wohn- und Kochzimmer mit direktem Zugang zur Terrasse und in den Garten – perfekt für Familienleben und gesellige Stunden. Eine moderne Einbauküche mit Arbeits- bzw. Esstheke ist bereits integriert. Der Hauswirtschaftsraum bietet reichlich Stauraum und einen Anschluss für die Waschmaschine.
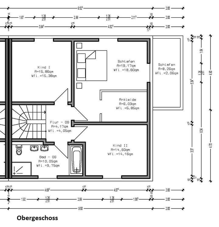
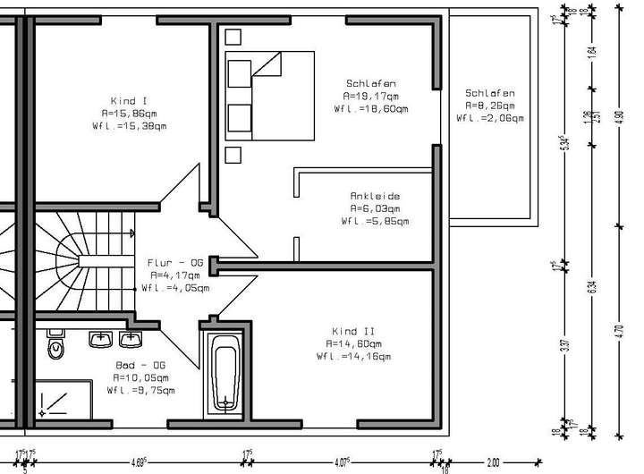
Obergeschoss
Eine massive Treppe führt ins Obergeschoss mit drei geräumigen Schlafzimmern sowie einem großzügigen Tageslichtbad mit Dusche und Badewanne. Bodentiefe Fenster sorgen in allen Zimmern für viel Licht. Das große Elternschlafzimmer verfügt zusätzlich über eine Dachterrasse.
Dachboden
Der weitläufige Dachboden bietet eine Ausbaureserve von ca. 30 m² (nach Ihren Wünschen nutzbar).
Außenbereich
Die großzügige Terrasse lädt zum Verweilen ein, und die pflegeleichte Gartenanlage bietet viel Platz zum Spielen und Erholen – ideal für Kinder oder Ihre Gartenprojekte.
Ausstattung
+ Fußbodenheizung im gesamten Haus, betrieben über eine moderne, effiziente Wärmepumpe
+ 3-fach verglaste Kunststofffenster mit elektrischen Außenjalousien (Energieeffizienz, Schallschutz, Verdunkelung)
+ PKW-Stellplatz mit Vorbereitung für eine E-Auto-Ladestation
+ Überwachungskameras an Garten- und Eingangsseite
+ Glasfaseranschluss im Ausbau
+ Schlafzimmer mit Dachterrasse
Diese neuwertige Immobilie überzeugt durch hochwertige Ausstattung und ausgezeichneten Zustand. Verwirklichen Sie hier Ihren Wohntraum und erleben Sie komfortables Wohnen in Klein Lafferde!
aben wir Ihr Interesse geweckt? Dann freue ich mich über Ihre Nachricht.
Auf Wunsch erstellen wir Ihnen gerne zu diesem Angebot ein maßgeschneidertes Finanzierungsangebot über unseren langjährigen Finanzierungspartner.
Gerne unterstützen wir Sie auch beim Verkauf Ihrer bestehenden Immobilie.
Ihr neues Zuhause im familienfreundlichen Klein Lafferde!
38268 Lengede
Die vollständige Adresse der Immobilie erhalten Sie vom Anbieter.
Auf Karte anzeigen
Die vollständige Adresse der Immobilie erhalten Sie vom Anbieter.
Finanzierungszertifikat
In nur zwei Minuten zu Ihrem persönlichen Finanzierungszertifkat.
Infos
| Haustyp | Reiheneckhaus |
|---|---|
| Etagenzahl | 2 |
| Wohnfläche ca. | 162 m2 |
| Grundstücksfläche | 395 m2 |
| Bezugsfrei ab | Sofort |
| Zimmer | 4 |
| Badezimmer | 2 |
| Garage/Stellplatz | Außenstellplatz |
| Anzahl Garage/Stellplatz | 1 |
Kosten
| Kaufpreis |
435.000 € |
|---|---|
| Provision |
3,57 % aus dem notariellen Kaufpreis inkl. MwSt. Fällig nach notarieller Beurkundung |
Finanzierungsrechner:
Kaufpreis:
600.000 €
Eigenkapital:
600.000 €
Monatliche Rate
0 €
Effektiver Jahreszins
0 %
Sollzinsbindung
10 Jahre
Bausubstanz & Energieausweis
| Baujahr | 2021 |
|---|---|
| Bauphase | Haus fertig gestellt |
| Objektzustand | Neuwertig |
| Qualität der Austattung | Gehoben |
| Heizungsart | Fußbodenheizung |
| Wesentliche Energieträger | Strom |
| Energieausweis | liegt vor |
| Energieausweistyp | Bedarfsausweis |
| Energieverbrauchskennwert | 12,3 kWh/(m²*a) |
| Energieeffizienzklasse | A+ |
12,3
kWh/(m²*a)
Energieeffizienzklasse A+
- A+
- A
- B
- C
- D
- E
- F
- G
- H
- 0
- 25
- 50
- 75
- 100
- 125
- 150
- 175
- 200
- 225
- >250
Beschreibung des Objekts
Ausstattung
+ Neubau-Reihenendhaus (2021, Massivbau)
+ 4 Zimmer & Ausbaureserve im Dachboden
+ 2 Vollgeschosse ohne Dachschrägen
+ Gäste-WC mit Dusche
+ Hauptbad mit Wanne & Dusche
+ Hauswirtschaftsraum mit Waschmaschinenanschluss
+ Wärmepumpe-Heizungsanlage
+ Fußbodenheizung im gesamten Haus
+ 3-fach verglaste Kunststofffenster
+ Elektrische Außenrollläden
+ Dachterrasse
+ Kfz-Stellplatz (E-Ladestation vorbereitet)
+ Überwachungskameras (Eingangs- & Gartenseite)
+ Glasfaseranschluss im Ausbau
+ Ab sofort verfügbar
+ und vieles mehr...
Lage
Ruhige, familienfreundliche Lage in Klein Lafferde mit gewachsener Nachbarschaft. Nahversorgung vor Ort; weiterführende Einkaufsmöglichkeiten, Ärzte und Dienstleistungen finden sich im nahegelegenen Lengede sowie in Peine und Braunschweig.
Gute Anbindung für Pendler: Über die umliegenden Landes- und Bundesstraßen erreichen Sie schnell Lengede, Peine, Salzgitter, Braunschweig und Hildesheim; Buslinien binden an die Bahnhöfe der Umgebung an.
Für Freizeit und Erholung laden Felder, Wiesen und Wege rund um Klein Lafferde und Lengede zu Spaziergängen, Jogging- und Radrunden ein; Spielplätze und Sportangebote im Ort runden das familienfreundliche Umfeld ab.
Fazit: Sonnige, ruhige Lage mit dörflichem Charakter, kurzer Weg nach Lengede und schneller Anbindung an die umliegenden Städte – ideal für Paare und Familien.
Sonstige Angaben
Wichtige Hinweise zur Exposé- und Besichtigungsanfrage
1.Kontaktformular ausfüllen
Bitte vollständigen Namen, Anschrift und Telefonnummer angeben – erforderlich zur Identitätsprüfung (§ 2 Abs. 10 GwG). Ohne diese Angaben können wir nicht starten.
2.Zustimmung per E-Mail
Nach Ihrer Anfrage erhalten Sie eine E-Mail. Über den Bestätigungslink akzeptieren Sie unsere Nutzungsbedingungen und bestätigen die Widerrufsbelehrung (Fernabsatzrecht).
3.Exposé öffnen
Nach der Bestätigung können Sie das vollständige Exposé direkt über den Link öffnen bzw. herunterladen. Gern vereinbaren wir anschließend einen Besichtigungstermin.
Vielen Dank für Ihr Verständnis! Bei Fragen sind wir jederzeit für Sie da.
Cakir Immobilien GmbH
Ihr Tipp ist uns 1.000 € Wert!
Sie kennen Jemanden, der seine Immobilie verkaufen oder vermieten möchte?
Dann nennen Sie uns die Kontaktdaten und Adresse der Immobilie.
Kontaktieren Sie uns telefonisch, per E-Mail oder über unsere Internetseite.
Selbstverständlich wird alles diskret und vertraulich behandelt.
Sie können von unserem Angebot auch profitieren, wenn Sie Ihre eigene Immobilie verkaufen.
Sprechen Sie uns an.
Grundriss
Grrundriss EG
>
>
Grrundriss OG
>
>
Schnittzeichnung
>
>
Adresse
38268 Lengede
Interessante Orte
Preis- und Lageinformationen
Preistrend für Bestandsimmobilien in Lengede