WELCOME HOME. WELCOME TO YOUR FUTURE.
Dein Zuhause ist mehr als vier Wände – es ist dein Rückzugsort, dein Investment, dein neuer Lebensabschnitt.
White&Black macht Wohneigentum bezahlbar, modern und flexibel.
Jetzt ist der richtige Moment, um anzukommen.
Dein Zuhause, so individuell wie du.
22393 Hamburg
Die vollständige Adresse der Immobilie erhalten Sie vom Anbieter.
Auf Karte anzeigen
Die vollständige Adresse der Immobilie erhalten Sie vom Anbieter.
Finanzierungszertifikat
In nur zwei Minuten zu Ihrem persönlichen Finanzierungszertifkat.
Infos
| Haustyp | Doppelhaushaelfte |
|---|---|
| Wohnfläche ca. | 141 m2 |
| Nutzfläche | 0 m2 |
| Grundstücksfläche | 389 m2 |
| Zimmer | 4 |
| Schlafzimmer | 3 |
| Badezimmer | 1 |
| Anzahl Garage/Stellplatz | 0 |
Kosten
| Kaufpreis |
659.900 € |
|---|---|
| Provision | Nein |
Finanzierungsrechner:
Kaufpreis:
600.000 €
Eigenkapital:
600.000 €
Monatliche Rate
0 €
Effektiver Jahreszins
0 %
Sollzinsbindung
10 Jahre
Bausubstanz & Energieausweis
| Baujahr | 2026 |
|---|---|
| Bauphase | Haus in Planung (projektiert) |
| Qualität der Austattung | Gehoben |
| Heizungsart | Wärmepumpe |
Beschreibung des Objekts
Ausstattung
THINK FAST-VOLLENDET PLUS – Bereit für dein Finish.
- Technik, Heizung & Sanitärinstallation sind drin – du kümmerst dich nur um den Feinschliff
- Das Plus mit hochwertigen Sanitärobjekten und Fliesen
- Streichen, Böden verlegen, Türen setzen – du machst, was du willst
- Kein Stress mit Rohbau oder Technik – Fokus nur noch auf den Feinschliff
- Smartes Sparpotenzial – fertig gebaut, individuell finalisiert
- Ideal für Macher mit Anspruch – hochwertige Basis für deinen Stil
Für alle, die mitgestalten wollen – ohne auf Komfort zu verzichten.
Lage
Familienidyll im grünen Nordosten
Sasel ist ein Stadtteil im Bezirk Wandsbek und liegt im Nordosten der Metropole Hamburg. Eine Anbindung an das öffentliche Verkehrsnetz bieten die Buslinien in Sasel. Sie verbinden den Stadtteil mit der Innenstadt sowie den Nachbarstadtteilen Poppenbüttel, Volksdorf und Bergstedt.
Der perfekte Mix aus Urbanität und Ländlichkeit und die hohe Dichte an Ein- / Zweifamilienhäusern macht Sasel gerade für junge Familien zu einem immer attraktiver werdenden Stadtteil.
Sonstige Angaben
Vereinbare einen persönlichen Beratungstermin, um über Deinen Haustraum und das angebotene Objekt zu sprechen.
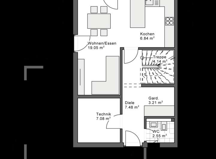
Bitte beachte, dass die dargestellten Bilder und Grundrisse nur beispielhaft sind und unter Umständen Sonderbauteile enthalten, die nicht im angegebenen Preis enthalten sind.
Hab außerdem bitte Verständnis dafür, dass weitere Details zum angebotenen Grundstück erst nach einem persönlichen Gespräch bekanntgegeben werden und nur vollständige Anfragen bearbeitet werden können.
Grundriss
Grundriss EG
>
>
Grundriss OG
>
>
Grundriss DG
>
>
Adresse
22393 Hamburg
Interessante Orte
Preis- und Lageinformationen
Preistrend für Bestandsimmobilien in Sasel