Zum Verkauf steht ein RMH auf einem Eigentumsgrundstück in ruhiger Wohnlage.
Das RMH bietet auf einer Wohnfläche von ca. 90 m² ausreichend Platz für einen
4-Personenhaushalt.
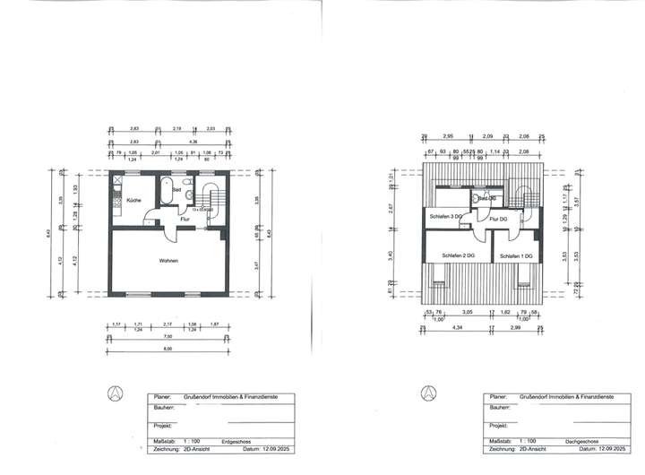
Vom Eingangsbereich haben Sie einen Zugang zu den Räumen im Hochparterre und in den Keller. Im Hochparterre befinden sich die Küche, das große Wohnzimmer und das Badezimmer.
Das OG/DG verfügt über zwei Schlafräume, ein Büroraum und ein Gäste-WC.
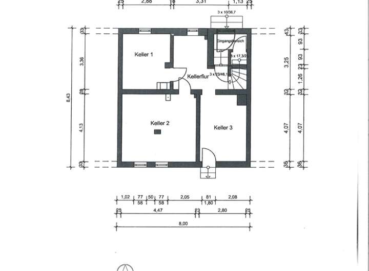
Auf dem Dachboden und im Keller sind Abstellmöglichkeiten vorhanden.
Weiterhin befindet sich im Keller die Heizungsanlage und ein Werkstattraum.
Vom Keller gibt es einen Zugang zum Grundstück, im rückliegenden Bereich.
Hier sind ein überdachter Außensitzbereich und ein Hobby- und Freizeitraum in Form einer Garage vorhanden. Zu dem Grundstück gibt es keine Zuwegung mehr.
Vor dem Haus stehen KFZ-Außenstellplätze zur Verfügung.
Gemütliches RMH auf einem Eigentumsgrundstück in ruhiger, aber zentraler Wohnlage
39646 Oebisfelde
Die vollständige Adresse der Immobilie erhalten Sie vom Anbieter.
Auf Karte anzeigen
Die vollständige Adresse der Immobilie erhalten Sie vom Anbieter.
Finanzierungszertifikat
In nur zwei Minuten zu Ihrem persönlichen Finanzierungszertifkat.
Infos
| Haustyp | Einfamilienhaus |
|---|---|
| Wohnfläche ca. | 90 m2 |
| Nutzfläche | 44 m2 |
| Grundstücksfläche | 170 m2 |
| Bezugsfrei ab | nach Vereinbarung |
| Zimmer | 4 |
| Schlafzimmer | 3 |
| Badezimmer | 2 |
Kosten
| Kaufpreis |
149.000 € |
|---|---|
| Provision |
3,57% Käuferprovision: 3,57% v. KP, inkl. d. gesetzl. MwSt. 19%, fällig n. Unterz. eines notariellen KV, zahlbar v. Käufer! Verkäuferprovision: 3,57% v. KP, inkl. d. gesetzl. MwSt. 19%, fällig n. Unterz. eines notariellen KV, zahlbar v. Verkäufer! |
Finanzierungsrechner:
Kaufpreis:
600.000 €
Eigenkapital:
600.000 €
Monatliche Rate
0 €
Effektiver Jahreszins
0 %
Sollzinsbindung
10 Jahre
Bausubstanz & Energieausweis
| Baujahr | 1958 |
|---|---|
| Letzte Sanierung | 2022 |
| Qualität der Austattung | Einfach |
| Heizungsart | Zentralheizung |
| Wesentliche Energieträger | Erdgas leicht |
| Energieausweis | liegt vor |
| Energieausweistyp | Bedarfsausweis |
| Energieverbrauchskennwert | 215,9 kWh/(m²*a) |
| Energieeffizienzklasse | G |
215,9
kWh/(m²*a)
Energieeffizienzklasse G
- A+
- A
- B
- C
- D
- E
- F
- G
- H
- 0
- 25
- 50
- 75
- 100
- 125
- 150
- 175
- 200
- 225
- >250
Beschreibung des Objekts
Ausstattung
Mauerwerk: massiv
Keller: Vollkeller
Außenwände: Putz
Dach: Tondachziegel/ Dämmung der Dachschrägen, Gaube ca. 2000 neu
Solar: Bj. 2003, 5,2 kwh
Elektrische Anlage: teilw. 1997 erneuert
Verrohrung Frisch- u. Abwasser: teilw. 1997 erneuert
Heizung: Gas-Zentral, 2022 neu
Fenster: 2-fach Kunststofffenster, Baujahr 1997
Rollläden: elektrisch, nur 1x manuell
Bodenbeläge: Fliesen, Teppich, Laminat
Bad im EG: Badewanne, WC, Fenster, 2008 neu
Gäste-WC im DG: Dusche, WC und Fenster, 2008 neu
Raumaufteilung: 4 Zimmer über 2 Ebenen + Keller
Terrasse: überdachter Außensitzbereich
Glasfaser: ja
Lage
Das RMH befindet sich in ruhiger Wohnlage in Oebisfelde, direkt an der Landesgrenze zu Niedersachen und liegt ca. 15 km östlich von Wolfsburg. Einkaufsmöglichkeiten, Ärzte, Schulen und Kitas sind im Ort vorhanden und innerhalb weniger Minuten mit dem Rad oder PKW erreichbar. Die Anbindung in naheliegende Ortschaften wird durch öffentliche Verkehrsmittel sichergestellt.
Sonstige Angaben
Die Objektdaten wurden mit großer Sorgfalt zusammengestellt und basieren auf den Angaben der Verkäufer!
Für die Richtigkeit der im Exposé enthaltenen Angaben übernehmen wir keine Gewähr!
Von Grußendorf Immobilien & Finanzdienste werden keinerlei Zusicherungen über den baulichen Zustand einer Immobilie gemacht!
Adresse
39646 Oebisfelde
Interessante Orte
Preis- und Lageinformationen
Preistrend für Bestandsimmobilien in Oebisfelde
>
>