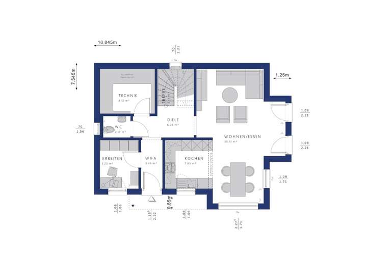
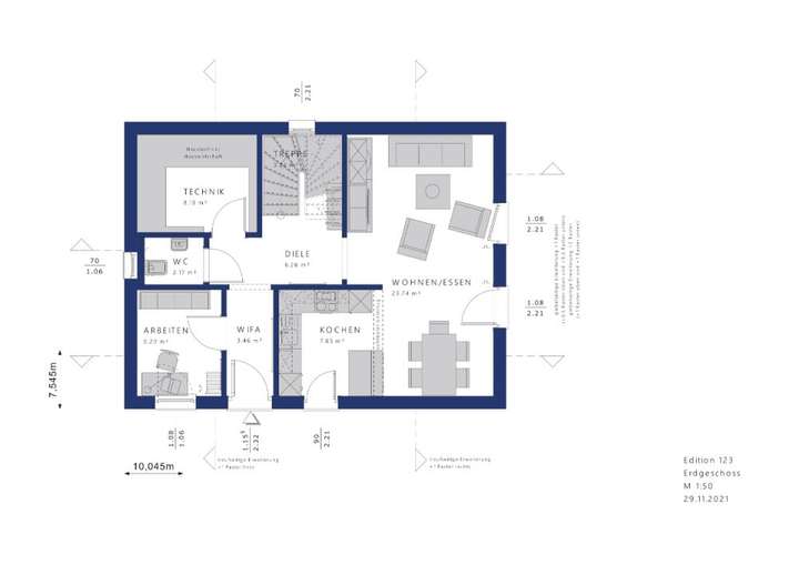
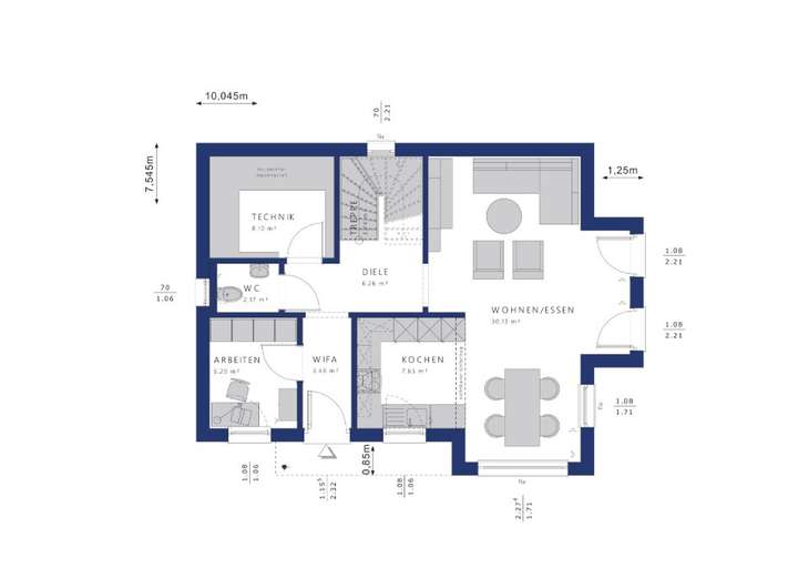
Dem Windfang schließt sich in unserem EDITION 123 eine großzügige Diele an, die direkt in den Wohnbereich führt.
Der wohldurchdachte Grundriss weist die offene Küche und den Essplatz als weitere eigene Zone aus. Und egal ob der
Zugang Ihres neuen Eigenheims auf der Giebel- oder auf der Traufseite sein wird, gleich hinter der Haustür findet sich
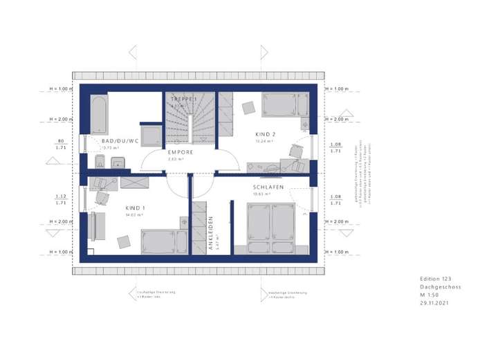
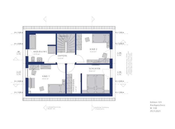
ein zusätzliches Homeoffice, das sich auch als Multifunktionsraum nutzen lässt. Das Dachgeschoss bietet Raum für Ihr
Schlafzimmer mit integrierter Ankleide, zwei Kinderzimmer und ein schönes Familienbad. Was will man mehr?
Alle Wünsche erfüllt - Wohnen in Ihrem Traumhaus
36433 Bad Salzungen
Die vollständige Adresse der Immobilie erhalten Sie vom Anbieter.
Auf Karte anzeigen
Die vollständige Adresse der Immobilie erhalten Sie vom Anbieter.
Finanzierungszertifikat
In nur zwei Minuten zu Ihrem persönlichen Finanzierungszertifkat.
Infos
| Haustyp | Einfamilienhaus |
|---|---|
| Etagenzahl | 2 |
| Wohnfläche ca. | 123 m2 |
| Grundstücksfläche | 780 m2 |
| Zimmer | 5 |
| Schlafzimmer | 3 |
| Badezimmer | 2 |
Kosten
| Kaufpreis |
346.650 € |
|---|
Finanzierungsrechner:
Kaufpreis:
600.000 €
Eigenkapital:
600.000 €
Monatliche Rate
0 €
Effektiver Jahreszins
0 %
Sollzinsbindung
10 Jahre
Bausubstanz & Energieausweis
| Baujahr | unbekannt |
|---|---|
| Bauphase | Haus in Planung (projektiert) |
| Qualität der Austattung | Gehoben |
| Heizungsart | Wärmepumpe |
Beschreibung des Objekts
Ausstattung
Es wurde ein Effizienzhaus 40 "Zur Ausstattung fertig" gerechnet, inkl. Bodenplatte, Grundinstallation, Architekt und Wohlfühl-Klima-Heizung+ mit kontrollierter Wohnraumbe- und Entlüftung.
Mit der Ausbauvariante "Zur Ausstattung fertig" können Sie Ihre handwerklichen Fähigkeiten voll ausspielen, wenn Sie die finalen Ausbauarbeiten selbst erledigen.
In diesem Preis sind enthalten:
Das Bien-Zenker-Haus außen fertig mit Haustür und Fenstern sowie innen mit Treppe
Rollläden mit stabilen Aluminium-Lamellen
die Bodenplatte gemäß aktueller Bau- und Leistungsbeschreibung
30 Jahre Gewährleistung auf die Grundkonstruktion Ihres Bien-Zenker Hauses -5 Jahre Gewährleistung nach BGB auf die übrigen Bauleistungen Ihres Bien-Zenker-Hauses
Dämmpaket KFW40 und Beplankung für Außenwände, Innenwände, Dach im ausgebauten Bereich und oberste Geschossdecke
Elektroinstallation mit Schaltern und Steckdosen
Sanitär-Rohinstallation in den Wänden
Heizungsanlage Wohlfühl-Klima-Heizung
Lüftungsanlage als kontrollierte Wohnraum Be- und Entlüftung inklusive Wärmerückgewinnung
Sanitär-Zwischenverrohrung bis zum Technikraum
Der Estrich
Gerne bieten wir Ihnen das Haus auch als "Schlüsselfertig" (Bezugsfertig) an.
Lage
Bad Salzungen liegt südlich von Eisenach im Westen Thüringens am Mittellauf der Werra, zwischen dem Thüringer Wald im Norden und der Rhön im Süden. Bad Salzungen ist umgeben von einem bewaldeten Hügel- und Bergland mit überwiegend landwirtschaftlich genutzten Tälern und Ebenen.
Bad Salzungen besitzt mit dem Rathenaupark einen weitläufigen Park, der den direkt an der Innenstadt liegenden Burgsee im Süden umschließt. Der Burgsee besitzt eine Fläche von 10,33 Hektar und ist 25,5 m tief. Eine Besonderheit ist der Erlensee - als Binnensalzstelle mit einer seltenen Halophytenflora wurde er schon 1940 als Naturdenkmal ausgewiesen. Des Weiteren befindet sich im Kurgebiet unweit des Gradierwerks der so genannte Puschkin-Park, der dem Verlauf der Werra folgt.
Durch die Stadt führt die Bundesstraße 62 im Abschnitt Bad Hersfeld-Barchfeld. Von dieser abzweigend beginnt im Stadtgebiet die Bundesstraße 285, welche ins unterfränkische Mellrichstadt führt. Weiterhin ist über die B 62 die nahe gelegene Bundesstraße 19 (Eisenach-Meiningen-Würzburg) zu erreichen. Die nächstgelegenen Autobahnauffahrten befinden sich jeweils ca. 30 Kilometer entfernt in Friedewald, Eisenach und Waltershausen (alle Bundesautobahn 4) sowie Meiningen (Bundesautobahn 71).
Das Dr.-Sulzberger-Gymnasium ist das einzige Gymnasium der Stadt mit etwa 780 Schülern. In Bad Salzungen befinden sich außerdem vier Grundschulen, drei Regelschulen, die Hauptstelle der kommunalen "Musikschule Wartburgkreis" sowie der Volkshochschule des Wartburgkreises, ein staatliches Berufsbildungszentrum mit medizinischer Fachschule, zwei Förderschulen sowie eine höhere Berufsfachschule für Physiotherapie.
Sonstige Angaben
Im angegebenen Preis für dieses projektierte Haus ist das Grundstück, welches Sie direkt von Dritten erwerben, bereits enthalten. Das Angebot ist unverbindlich und freibleibend, exklusive der Baunebenkosten wie z.B. Hausanschlüsse, Außenanlagen, Notar- und Gerichtskosten.
Abbildungen und Grundrisse zeigen Extras!
Gerne planen wir den Hausbau gemeinsam mit Ihnen auch auf Ihrem bereits vorhandenen Grundstück. In einem ausführlichen Beratungsgespräch ermitteln wir für Sie gerne eine detaillierte Gesamtkostenaufstellung.
Grundriss
Edition 123 EG
>
>
Edition 123 DG
>
>
Edition 123 V2 EG
>
>
Edition 123 V2 DG
>
>
Edition 123 V3 EG
>
>
Edition 123 V3 DG
>
>
Edition 123 V4 EG
>
>
Edition 123 V4 DG
>
>
Adresse
36433 Bad Salzungen
Interessante Orte
Preis- und Lageinformationen
Preistrend für Bestandsimmobilien in Bad Salzungen