Hiermit präsentieren wir Ihnen das ca. 1928 errichtete Wohnhaus, welches sich in der Rodgauer Altstadt befindet und mit seiner soliden Bausubstanz und dem charmanten Grundriss viel Potenzial für individuelle Gestaltung und Modernisierung bietet.
Das Gebäude erstreckt sich über drei Etagen und ist vollständig unterkellert. Im Erdgeschoss befinden sich ein Schlafzimmer sowie ein Badezimmer mit Dusche und Badewanne.
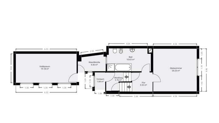
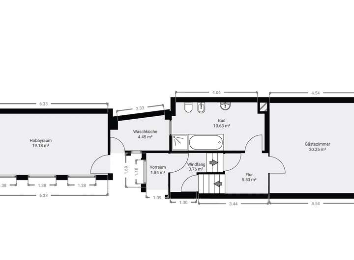
Im Obergeschoss liegen die Hauptwohnbereiche. Hier befinden sich eine Küche mit Fenster, ein großzügiges Wohnzimmer sowie ein separates Esszimmer, das sich ideal als zentraler Treffpunkt für die Familie eignet. Ein Gäste-WC ergänzt die Etage praktisch. Die Räume sind funktional geschnitten und bieten durch ihre klare Aufteilung zahlreiche Möglichkeiten für eine moderne Neugestaltung.
Das Dachgeschoss beherbergt drei weitere Zimmer, die als Schlaf-, Kinder- oder Arbeitsräume genutzt werden können, sowie ein zusätzliches Duschbad. Damit eignet sich das Haus für Wohnen und Arbeiten unter einem Dach.
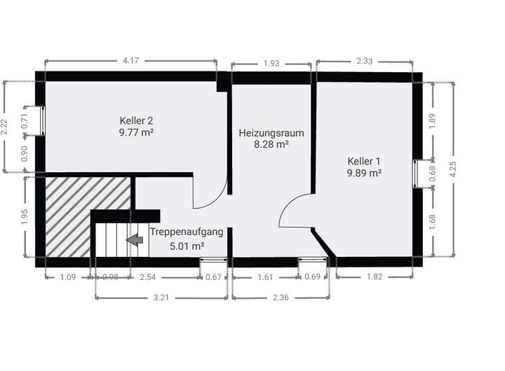
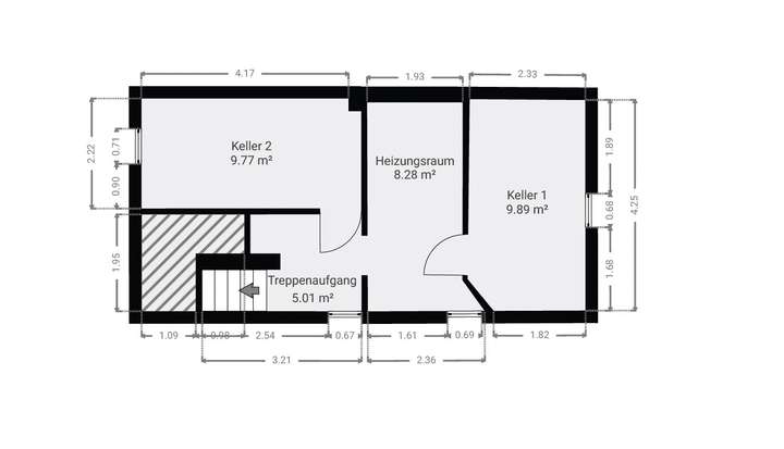
Im Keller stehen zusätzliche Nutzflächen zur Verfügung. Ergänzt wird das Raumangebot durch ein separates Nebengebäude mit eigener Küche, das sich als Hauswirtschaftsraum, Atelier oder Gästeeinheit nutzen lässt.
Insgesamt präsentiert sich die Immobilie als charmantes Altstadthaus mit viel Gestaltungsspielraum. Mit handwerklichem Geschick und etwas Liebe zum Detail lässt sich hier ein wohnliches Zuhause schaffen, das historischen Charme mit individuellem Wohnkomfort verbindet.
Wir freuen uns auf Ihre schriftliche Anfrage! :-)
SELTENE GELEGENHEIT IM ALTSTADTKERN – Einfamilienhaus mit viel Potenzial und Garten in Nieder-Roden
63110 Rodgau
Die vollständige Adresse der Immobilie erhalten Sie vom Anbieter.
Auf Karte anzeigen
Die vollständige Adresse der Immobilie erhalten Sie vom Anbieter.
Finanzierungszertifikat
In nur zwei Minuten zu Ihrem persönlichen Finanzierungszertifkat.
Infos
| Haustyp | Einfamilienhaus |
|---|---|
| Etagenzahl | 3 |
| Wohnfläche ca. | 141 m2 |
| Nutzfläche | 60 m2 |
| Grundstücksfläche | 507 m2 |
| Bezugsfrei ab | sofort |
| Zimmer | 6 |
| Schlafzimmer | 5 |
| Badezimmer | 2 |
Kosten
| Kaufpreis |
389.000 € |
|---|---|
| Provision |
2,975 % inkl. MwSt. Die Provision ist nach Vertragsunterzeichnung verdient und fällig. |
Finanzierungsrechner:
Kaufpreis:
600.000 €
Eigenkapital:
600.000 €
Monatliche Rate
0 €
Effektiver Jahreszins
0 %
Sollzinsbindung
10 Jahre
Bausubstanz & Energieausweis
| Baujahr | 1928 |
|---|---|
| Bauphase | Haus fertig gestellt |
| Objektzustand | Renovierungsbedürftig |
| Qualität der Austattung | Normal |
| Heizungsart | Zentralheizung |
| Wesentliche Energieträger | Gas |
| Energieausweis | liegt vor |
| Energieausweistyp | Bedarfsausweis |
| Energieverbrauchskennwert | 213,4 kWh/(m²*a) |
| Energieeffizienzklasse | G |
213,4
kWh/(m²*a)
Energieeffizienzklasse G
- A+
- A
- B
- C
- D
- E
- F
- G
- H
- 0
- 25
- 50
- 75
- 100
- 125
- 150
- 175
- 200
- 225
- >250
Beschreibung des Objekts
Ausstattung
++ Renovierungsbedürftig!
++ Einfamilienhaus im Altstadtkern von Nieder-Roden
++ Besondere Aufteilung / Grundrisse
++ Tageslicht Badezimmer mit Dusche und Wanne im EG
++ Gäste-WC im OG
++ Duschbad im DG
++ Weitläufiger Garten
++ Vollunterkellert
++ Zusätzliche Nutzfläche im Nebengebäude mit Küche
++ Gas-Brennwerttherme aus 1991
Lage
Nieder-Roden, der größte Stadtteil von Rodgau im Landkreis Offenbach, liegt im Herzen des Rhein-Main-Gebiets und vereint eine ruhige Wohnlage mit einer sehr guten Infrastruktur.
Das Wohnumfeld rund um die Schulstraße zeichnet sich durch gepflegte Wohnhäuser, verkehrsberuhigte Straßen und kurze Wege aus. In fußläufiger Entfernung befinden sich zahlreiche Geschäfte des täglichen Bedarfs wie Supermärkte, Bäckereien, Apotheken und kleinere Fachgeschäfte. Auch Cafés, Restaurants und Dienstleister prägen das lebendige Ortszentrum.
Familien profitieren von einem breiten Bildungs- und Betreuungsangebot: Mehrere Kindertagesstätten, darunter kommunale und kirchliche Einrichtungen, sind ebenso in der Nähe wie die Schule am Bürgerhaus und die Gartenstadtschule, eine offene Ganztagsschule. Weiterführende Schulen sind in den umliegenden Stadtteilen bequem erreichbar. Freizeit und Erholung kommen nicht zu kurz – Spielplätze, Grünflächen und Spazierwege entlang der Rodau oder zum nahegelegenen Rodgausee bieten vielfältige Möglichkeiten zur Entspannung.
Das Bürgerhaus Nieder-Roden dient als kultureller Mittelpunkt mit Veranstaltungen und Vereinsleben. Die Verkehrsanbindung ist hervorragend: Der S-Bahnhof Nieder-Roden verbindet den Stadtteil mit Frankfurt, Offenbach und Wiesbaden, und über die B45 sowie die A3 besteht direkter Anschluss an das regionale Straßennetz.
Das Umfeld ist geprägt von einer freundlichen Nachbarschaft, einer gewachsenen Bebauung und einer ruhigen, sicheren Atmosphäre. Insgesamt bietet diese Lage eine ausgewogene Kombination aus städtischer Nähe, ländlicher Ruhe und hoher Lebensqualität – ideal für Familien, Berufspendler und alle, die komfortables Wohnen in zentraler, naturnaher Umgebung schätzen.
Sonstige Angaben
Wichtiger Hinweis zum Geldwäschegesetz (GWG)! Gemäß nach § 2 Abs. 1 Nr. 14 und § 11 Abs. 1, 2 Geldwäschegesetz ist jeder Immobilienmakler verpflichtet, bei Kontaktaufnahme die Identität des Kunden festzustellen. Hierzu müssen von jedem Interessenten die persönlichen Daten sowie die Kontaktdaten aufgenommen und überprüft werden.
Bitte bringen Sie zur Besichtigung ein gültiges Ausweisdokument mit. Bei juristischen Personen und Personengesellschaften ist ein Handelsregisterauszug notwendig. Für weitere Informationen stehen wir Ihnen gern zur Verfügung.
Immobilienkontor42 KG hat die an den Kunden weitergegebenen Angaben nicht auf deren Vollständigkeit und Richtigkeit geprüft. Er hat die Angaben weitergegeben, die er vom Verkäufer oder Vermieter oder einem beauftragten Dritten erhalten hat. Es ist daher Aufgabe des Kunden, die Angaben zu überprüfen. Für die Richtigkeit der Angaben übernimmt Immobilienkontor42 KG keine Haftung. Die Haftung des Maklers ist auf grob fahrlässiges oder vorsätzliches Verhalten begrenzt.
Grundriss
EG
>
>
OG
>
>
DG
>
>
KG
>
>
Adresse
63110 Rodgau
Interessante Orte
Preis- und Lageinformationen
Preistrend für Bestandsimmobilien in Rodgau