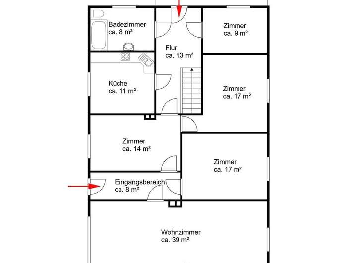
Der hier angebotene Bungalow aus dem Baujahr 1953 erstreckt sich über eine ebenerdige Wohnfläche von ca. 145 m² und bietet zusätzlich ca. 57 m² Nutzfläche im Keller.
Die Immobilie verfügt über insgesamt fünf Zimmer, darunter einen großzügigen, lichtdurchfluteten Wohnbereich, eine Küche sowie zwei Tageslichtbäder - eines ausgestattet mit einer Badewanne, das andere mit einer Dusche.
Das Dach der Immobilie befindet sich in einem guten Zustand, während das Gebäude insgesamt sanierungsbedürftig ist.
Ein besonderes Highlight ist das großzügige Grundstück mit einer Obstwiese. Diese verfügt über einen vielfältigen Obstbaumbestand und beherbergt zudem eine beeindruckend prächtige Kiwi-Pflanze, die bereits reiche Erträge liefert.
Das Angebot wird durch eine Garage und ein Carport abgerundet.
Burglesum / Familienfreundlicher Bungalow in attraktiver Lage mit viel Potenzial
28717 Bremen
Die vollständige Adresse der Immobilie erhalten Sie vom Anbieter.
Auf Karte anzeigen
Die vollständige Adresse der Immobilie erhalten Sie vom Anbieter.
Finanzierungszertifikat
In nur zwei Minuten zu Ihrem persönlichen Finanzierungszertifkat.
Infos
| Haustyp | Bungalow |
|---|---|
| Wohnfläche ca. | 145 m2 |
| Nutzfläche | 57 m2 |
| Grundstücksfläche | 1.443 m2 |
| Zimmer | 5 |
| Badezimmer | 2 |
| Garage/Stellplatz | Carport |
| Anzahl Garage/Stellplatz | 2 |
Kosten
| Kaufpreis |
299.000 € |
|---|---|
| Provision |
3,57 % inkl. 19 % MwSt. |
Finanzierungsrechner:
Kaufpreis:
600.000 €
Eigenkapital:
600.000 €
Monatliche Rate
0 €
Effektiver Jahreszins
0 %
Sollzinsbindung
10 Jahre
Bausubstanz & Energieausweis
| Baujahr | 1953 |
|---|---|
| Heizungsart | Zentralheizung |
| Wesentliche Energieträger | Öl |
| Energieausweis | liegt vor |
| Energieausweistyp | Bedarfsausweis |
| Energieverbrauchskennwert | 211,0 kWh/(m²*a) |
| Energieeffizienzklasse | G |
211,0
kWh/(m²*a)
Energieeffizienzklasse G
- A+
- A
- B
- C
- D
- E
- F
- G
- H
- 0
- 25
- 50
- 75
- 100
- 125
- 150
- 175
- 200
- 225
- >250
Beschreibung des Objekts
Ausstattung
- Keller
- Garage
- Carport
- Garten
- Terrasse
Lage
Der Bungalow befindet sich in Bremen-Burglesum, in einer besonders attraktiven Wohnlage, die sich entlang des Lesumdeichs bis in den nahegelegenen Knoops Park erstreckt. Diese idyllische Umgebung zeichnet sich vor allem durch ihre naturnahe Lage und die unmittelbare Nähe zur Lesum aus.
Der Ortskern von Lesum mit zahlreichen Einkaufsmöglichkeiten, Cafés und der historischen Lesumer Kirche ist fußläufig in weniger als 10 Minuten zu erreichen. Auch der Bahnhof Bremen-Lesum befindet sich in angenehmer Laufnähe und bietet eine sehr gute Anbindung an die Bremer Innenstadt sowie Richtung Bremerhaven – ideal für Pendler.
Ein Ärztehaus sowie mehrere Schulen sind ebenfalls fußläufig erreichbar und tragen zur besonders familienfreundlichen Infrastruktur der Umgebung bei.
Dank der Nähe zu den Autobahnen A27 und A270 ist die Lage auch mit dem Auto hervorragend angebunden. Für Golfliebhaber bietet der nur wenige Minuten entfernte Golfpark Lesum eine attraktive Freizeitmöglichkeit.
Grundriss
Erdgeschoss
>
>
Spitzboden
>
>
Keller
>
>
Adresse
28717 Bremen
Interessante Orte
Preis- und Lageinformationen
Preistrend für Bestandsimmobilien in Lesum