Bei der angebotenen Immobilie handelt es sich um ein ensemblegeschütztes Zweifamilienhaus, welches um das Jahr 1880 errichtet wurde und mit einer Wohnfläche von ca. 170?m² zwei separat zugängliche Wohneinheiten vereint. Das Zweifamilienhaus besticht durch seinen historischen Charakter und bietet zugleich Raum für individuelle Gestaltung und Entwicklung.
Die erste Wohneinheit umfasst ca. 80?m² und verteilt sich auf drei gut proportionierte Zimmer, die dank ihrer angenehmen Größe und natürlichen Belichtung ein behagliches Wohngefühl vermitteln. Die zweite Einheit bietet ca. 90?m² Wohnfläche mit vier flexibel nutzbaren Räumen, die sich ideal als Wohn-, Arbeits- oder Gästezimmer nutzen lassen.
Besonders hervorzuheben sind die separaten Eingänge beider Einheiten, die ein hohes Maß an Privatsphäre und Unabhängigkeit ermöglichen, ideal für Familien, Mehrgenerationenwohnen oder die Kombination von Wohnen und Arbeiten.
Ergänzt wird das Raumangebot durch einen nützlichen Schuppen sowie einen überdachten Unterstand, die wertvollen Stauraum für Gartengeräte, Fahrräder oder saisonale Gegenstände bieten. Für Ihre Fahrzeuge stehen ein Carport sowie ein freier Außenstellplatz zur Verfügung, eine komfortable Lösung für den Alltag.
Diese Immobilie vereint geschichtsträchtige Architektur mit großem Entwicklungspotenzial und bietet vielfältige Nutzungsmöglichkeiten, sei es zur Eigennutzung, als Investitionsobjekt oder zur Realisierung individueller Wohnkonzepte.
            
        Wie aus dem Bilderbuch: "Ensemblegeschütztes Zweifamilienhaus mit traumhaftem Gartenbereich"
                     21029 Hamburg                            
Die vollständige Adresse der Immobilie erhalten Sie vom Anbieter.
        
            
            Auf Karte anzeigen
        
        Die vollständige Adresse der Immobilie erhalten Sie vom Anbieter.
 
    Finanzierungszertifikat
In nur zwei Minuten zu Ihrem persönlichen Finanzierungszertifkat.
Infos
| Haustyp | Einfamilienhaus | 
|---|---|
| Wohnfläche ca. | 170 m2 | 
| Grundstücksfläche | 533 m2 | 
| Zimmer | 7 | 
Kosten
| Kaufpreis | 695.000 € | 
|---|---|
| Provision | 3,125 % inkl. USt. | 
Finanzierungsrechner:
                    
                     Kaufpreis:
                        
                            600.000 €
                        
                    
                    
                    
                
            
                        
                            Eigenkapital:
                            
                                 600.000 €
                            
                        
                    
                
            
                        Monatliche Rate
                        0 €
                    
                    
                        
                            Effektiver Jahreszins
                        
                        0 %
                    
                    
                        Sollzinsbindung
                        10 Jahre
                    
                Bausubstanz & Energieausweis
| Baujahr | 1880 | 
|---|---|
| Wesentliche Energieträger | Gas | 
Beschreibung des Objekts
Ausstattung
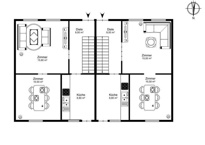
                Bereits beim Betreten der ersten Wohneinheit empfängt Sie eine stilvolle Diele und eine charaktervolle Holztreppe, die Sie ins ausgebaute Dachgeschoss führt. Eine Tür verbindet den Wohn- und Essbereich auf angenehme Weise und trägt zum offenen, wohnlichen Ambiente der Einheit bei. Die separat gelegene Küche ist durchdacht geschnitten und führt direkt auf die Terrasse sowie in den großzügigen Garten, ein echtes Highlight für Naturliebhaber und Familien.
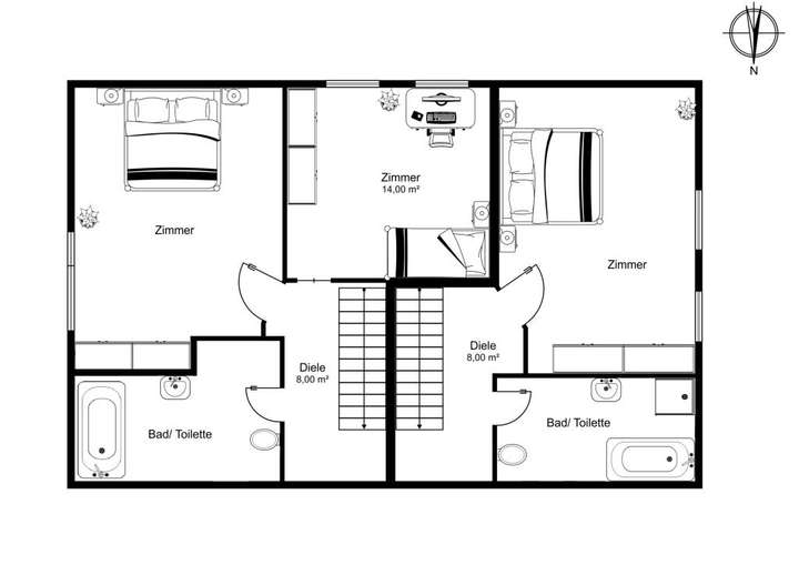
Im Obergeschoss dieser Einheit befinden sich zwei weitere Zimmer, die sich flexibel als Schlaf-, Gäste- oder Arbeitsräume nutzen lassen und vielfältige Gestaltungsmöglichkeiten eröffnen.
Die zweite Wohneinheit spiegelt weitestgehend den Aufbau der ersten wider und bietet ebenfalls ein angenehmes Wohnambiente. Der Wohn- und Essbereich ist harmonisch durch eine Tür verbunden und lädt zum Verweilen ein. Die separat gelegene Küche überzeugt durch ihre Funktionalität und bietet direkten Zugang zur Terrasse sowie zu dem großzügigen Garten, ein wunderbarer Ort für entspannte Stunden im Grünen.
Im ausgebauten Dachgeschoss dieser Einheit erwarten Sie eine helle Diele, ein gemütliches Schlafzimmer sowie ein Badezimmer. Dachschrägen, sichtbare Holzelemente und vereinzelte Stuckverzierungen verleihen den Räumen eine besondere Ausstrahlung.
Beide Wohneinheiten verfügen über zeitlose Bäder, sind teilweise unterkellert und bieten zusätzlichen Stauraum im Spitzboden. Ein praktischer Schuppen, ein überdachter Unterstand, ein Carport sowie ein Außenstellplatz ergänzen das Angebot.
Die Immobilie befindet sich in einem renovierungsbedürftigen Zustand und bietet somit eine hervorragende Gelegenheit, den historischen Charakter mit individuellen Wohnideen zu verbinden.
               
        Lage
                Die Immobilie befindet sich im Hamburger Stadtteil Bergedorf, einem charmanten und gut erschlossenen Bereich im Südosten der Hansestadt. Die Umgebung ist geprägt von einer Mischung aus Wohnbebauung, kleinen Geschäften, Cafés und viel Grün. In unmittelbarer Nähe liegt das Zentrum von Bergedorf mit seiner historischen Altstadt, dem Schloss Bergedorf sowie zahlreichen Einkaufsmöglichkeiten, Ärzten und Bildungseinrichtungen.
Kindergärten, Senioreneinrichtungen sowie das "Haus im Park" sind fußläufig erreichbar, was die Lage besonders attraktiv für Familien und ältere Menschen macht.
Die Verkehrsanbindung ist sehr gut: Der S-Bahnhof Bergedorf ist fußläufig erreichbar und bietet eine direkte Verbindung in die Hamburger Innenstadt. Mehrere Buslinien verkehren regelmäßig in der Umgebung, was eine flexible Mobilität garantiert. Auch die Anbindung an die Bundesstraßen und die Autobahn ist zügig erreichbar, wodurch sich die Lage sowohl für Berufspendler als auch für Familien als äußerst attraktiv erweist.
Naturliebhaber kommen ebenfalls auf ihre Kosten – Parks, Grünanlagen und die Bille bieten viele Möglichkeiten für Erholung und Freizeitgestaltung. Besonders hervorzuheben sind der Schlossgarten und das Bergedorfer Gehölz, die zu ausgedehnten Spaziergängen und Naturerlebnissen einladen. Die Kombination aus urbaner Infrastruktur und naturnaher Umgebung macht die Lage besonders lebens- und liebenswert.
                
        Sonstige Angaben
                Das ca. 533?m² große Grundstück präsentiert sich als gepflegte grüne Oase mit einer gelungenen Verbindung aus Nutzwert und Erholungscharakter. Ein gepflasterter Weg führt entlang einer Seite des Gartens und erschließt die praktischen Unterstellmöglichkeiten im hinteren Bereich, darunter ein Schuppen, ein Carport sowie ein überdachter Unterstand.
Parallel zum Weg sorgen gepflegte Beete für Struktur und Farbakzente, die dem Garten eine lebendige und zugleich harmonische Ausstrahlung verleihen.
Die Terrasse im Wintergartenstil bietet einen geschützten Platz zum Entspannen und lädt zu gemütlichen Stunden im Freien ein, ob beim Frühstück in der Morgensonne oder beim Lesen am Nachmittag. Zwei separate Grillecken ergänzen das Angebot und schaffen ideale Voraussetzungen für gesellige Abende mit Familie und Freunden.
Dank der blickdichten Bepflanzung genießen Sie ein hohes Maß an Privatsphäre. Die durchdachte Gestaltung macht den Garten zu einem echten Rückzugsort, sei es zum Entspannen, Gärtnern oder als Spielbereich für Kinder.
           
        Grundriss
                                    Erdgeschoss
                                                                             >
                                        >
                                                                    
                                                                                                                 >
                                        >
                                                                    
                                    Obergeschoss
                                                                             >
                                        >
                                                                    
                                                                         >
                                        >
                                                                    Adresse
21029 Hamburg
Interessante Orte
Preis- und Lageinformationen
                Preistrend für Bestandsimmobilien in Bergedorf
    
        
                    
            
        
     
                                     
                                     
                                     
                                     
                                     
                                     
                                     
                                     
                                     
                                     
                                     
                                     
                                     
                                     
                                     
                                     
                                     
                                     
                                     
                                    