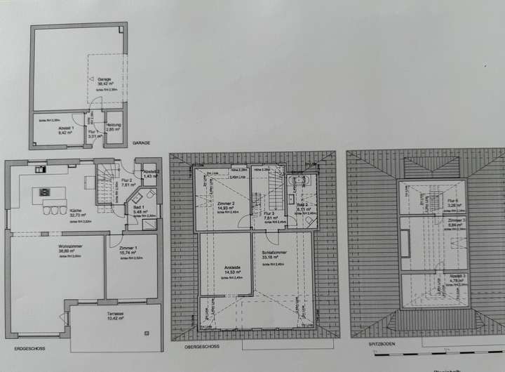
Willkommen in diesem hervorragend gepflegten Einfamilienhaus, das Ihnen und Ihrer Familie auf großzügigen 180 Quadratmetern Wohnfläche und einem weitläufigen Grundstück von 893 Quadratmetern viel Raum zum Wohlfühlen bietet. Das 1967 erbaute Haus wurde kontinuierlich modernisiert und überzeugt mit vier einladenden Schlafzimmern, darunter eines mit begehbarem Kleiderschrank. Der ausgebaute Dachboden mit Abstellkammer ergänzt den wohnlichen Komfort. Die große Wohnküche und der lichtdurchflutete Wohn- und Essbereich bieten direkten Zugang zur idyllischen Gartenlandschaft, wo eine überdachte Terrasse zum Entspannen und Verweilen einlädt. Das 1. Obergeschoss ist mit einer Klimaanlage ausgestattet, und die Dachfenster verfügen über solarbetriebene Außenjalousien, die für ein angenehmes Raumklima sorgen. Im Nebengebäude finden Sie eine geräumige Garage mit 39 Quadratmetern, die mit einer Wallbox ausgestattet ist und als Doppelgarage genutzt werden kann. Darüber hinaus gibt es einen separaten Bereich mit eigenem Zugang, der über einen Flur, einen praktischen 2,5 Quadratmeter großen Hauswirtschaftsraum und einen vielseitig nutzbaren 8,5 Quadratmeter großen Raum verfügt, der sich hervorragend als Büro, Wäscheraum oder Abstellraum eignet. Erleben Sie ein Zuhause, das modernen Komfort mit stilvollem Wohnambiente vereint! Ausstattung - Küche: Gepflegte Nolte Einbauküche, incl. Kücheninsel mit weiterem Stauraum und Sitzmöglichkeiten. - Badezimmer mit hochwertigen Armaturen und Badmöbeln und Durchlauferhitzern - Klimaanlage im Obergeschoss - Solarbetriebene Außenjalousien in den Dachfenstern - Nebengebäude: Garage mit Wallbox, die als Doppelgarage genutzt werden kann. Separater Bereich mit Flur, zusätzlichem Zimmer und Hauswirtschaftsraum. - Elektrisches Garagentor - Elektrisches Einfahrtstor
Einfamilienhaus mit Nebengebäude, incl. Garage in ruhiger Lage von Alt-Garben
30823 Garbsen
Die vollständige Adresse der Immobilie erhalten Sie vom Anbieter.
Auf Karte anzeigen
Die vollständige Adresse der Immobilie erhalten Sie vom Anbieter.

Finanzierungszertifikat
In nur zwei Minuten zu Ihrem persönlichen Finanzierungszertifkat.
Infos
Haustyp | Einfamilienhaus |
---|---|
Etagenzahl | 2 |
Wohnfläche ca. | 180 m2 |
Nutzfläche | 250 m2 |
Grundstücksfläche | 893 m2 |
Bezugsfrei ab | 1.12.2025 |
Zimmer | 5 |
Schlafzimmer | 4 |
Badezimmer | 2 |
Garage/Stellplatz | Garage |
Anzahl Garage/Stellplatz | 2 |
Kosten
Kaufpreis |
640.000 € |
---|---|
Provision | Nein |
Finanzierungsrechner:
Kaufpreis:
600.000 €
Eigenkapital:
600.000 €
Monatliche Rate
0 €
Effektiver Jahreszins
0 %
Sollzinsbindung
10 Jahre
Bausubstanz & Energieausweis
Baujahr | 1967 |
---|---|
Letzte Sanierung | 2018 |
Objektzustand | Gepflegt |
Qualität der Austattung | Gehoben |
Heizungsart | Gas-Heizung |
Wesentliche Energieträger | Gas |
Energieausweis | liegt zur Besichtigung vor |
Beschreibung des Objekts
Lage
Das Haus liegt sehr zentral in einer ruhig gelegenen, zurückgesetzten Straße von Alt-Garbsen, wo Sie alles für den täglichen Bedarf finden – von Geschäften, über Gastronomie bis zu Ärzten und Schulen. Auch für Wanderfreunde, Naturliebhaber und Hundebesitzer gibt es in dieser Umgebung eine Vielzahl an Feld- und Wanderwegen, die durch die wunderschöne Natur führen. Die charmante Universitätsstadt Garbsen befindet sich am westlichen Rand von Hannover und ist ein begehrter Wohnort mit hervorragender Infrastruktur und Verkehrsanbindung. Hier erwarten Sie eine Vielzahl an Fachgeschäften, Supermärkten, Banken, Apotheken und medizinischen Einrichtungen, sowie gemütliche Restaurants und diverse Sportmöglichkeiten. Umgeben von malerischen Wasser- und Waldlandschaften erstreckt sich der idyllische Stadtteil Havelse im Südosten Garbsens zwischen der Leineaue, dem Klosterforst Marienwerder und dem Mittellandkanal, der hier stolz in einem imposanten Brückenbauwerk die Leine überquert. Naherholungsgebiete wie der Marienwerder Forst, der Mittellandkanal und der Blaue See laden zu herrlichen Radtouren und entspannenden Spaziergängen ein. Die Buslinien des Großraum-Verkehrs Hannover gewährleisten eine schnelle Anbindung innerhalb der Stadt sowie zu benachbarten Orten. Die Innenstadt von Hannover ist innerhalb von etwa 15 bis 20 Minuten sowohl mit der Stadtbahn als auch mit dem PKW bequem erreichbar. Verpassen Sie nicht die Chance, Ihren Traum in dieser ruhigen und gefragten Wohnlage in Garbsen wahr werden zu lassen!
Adresse
30823 Garbsen
Interessante Orte
Preis- und Lageinformationen
Preistrend für Bestandsimmobilien in Garbsen