Auf einem uneinsehbaren über 1250 qm großen Grundstück steht dieses komplett modernisierte Haus mit Nebengebäuden. In den vergangen 5 Jahren wurde das Gebäude umfangreich modernisiert: Vollwärmeschutz; energiesparende Photovoltaikanlage 10 KW mit 10 KWh Speicher, Luftwärmepumpe von Dimplex, Smarthome von Loxone, Anbindung an die Haustechnik.
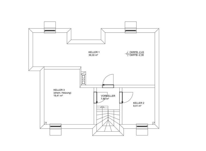
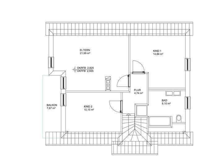
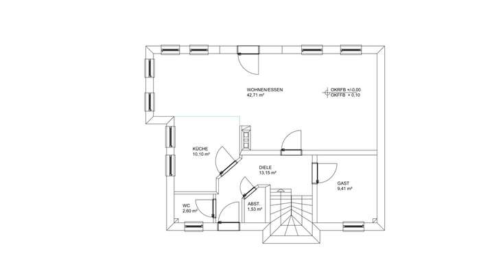
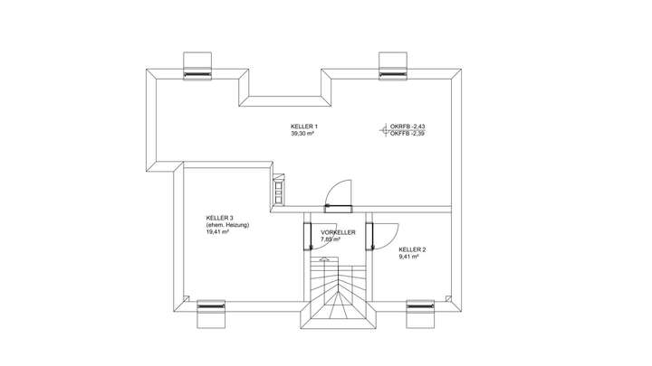
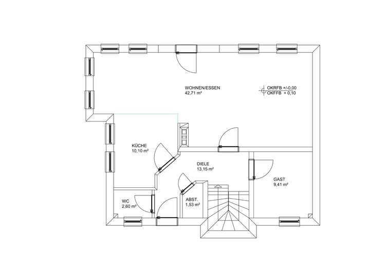
Das Haus verfügt über 150 qm Wohnfläche aufgeteilt auf Erd- und Dachgeschoss. Im EG befinden sich ein großzügiges Wohnzimmer mit Kamin, offener Koch- und Essbereich. Ein Büro, Abstellraum und ein Gäste-Duschbad komplettieren diese Ebene. Im Dachgeschoss sind ein Elternschlafzimmer und zwei lichtdurchflutete Kinderzimmer. Das Tageslichtbad sorgt dafür, dass sowohl die Kinder ihren Spaß in der Badewanne haben und am Doppelwaschbecken schnell die Zähne geputzt sind oder schnell die Dusche genutzt. Im Keller befindet sich ein großer Hobbyraum sowie ein weiterer Lagerraum und die Waschküche.
Das komplette Grundstück ist eingefriedet und bietet viel Raum für Kinder zum Spielen oder im Garten sich gärtnerisch zu verwirklichen.
Rarität im Herzen von Wiesbaden Nordenstadt Freistehendes Einfamilienhaus
An der Schule 5,
65205 Wiesbaden
Auf Karte anzeigen
Finanzierungszertifikat
In nur zwei Minuten zu Ihrem persönlichen Finanzierungszertifkat.
Infos
| Haustyp | Einfamilienhaus |
|---|---|
| Etagenzahl | 2 |
| Wohnfläche ca. | 150 m2 |
| Nutzfläche | 190 m2 |
| Grundstücksfläche | 1.250 m2 |
| Zimmer | 5 |
| Schlafzimmer | 4 |
| Badezimmer | 2 |
| Garage/Stellplatz | Außenstellplatz |
| Anzahl Garage/Stellplatz | 3 |
Kosten
| Kaufpreis |
1.215.725 € |
|---|---|
| Provision | Nein |
Finanzierungsrechner:
Kaufpreis:
600.000 €
Eigenkapital:
600.000 €
Monatliche Rate
0 €
Effektiver Jahreszins
0 %
Sollzinsbindung
10 Jahre
Bausubstanz & Energieausweis
| Baujahr | 1996 |
|---|---|
| Letzte Sanierung | 2022 |
| Bauphase | Haus fertig gestellt |
| Objektzustand | Modernisiert |
| Qualität der Austattung | Gehoben |
| Heizungsart | Wärmepumpe |
| Wesentliche Energieträger | Strom |
| Energieausweis | liegt vor |
| Energieausweistyp | Verbrauchsausweis |
| Energieverbrauchskennwert | 46,2 kWh/(m²*a) |
| Energieeffizienzklasse | A |
46,2
kWh/(m²*a)
Energieeffizienzklasse A
- A+
- A
- B
- C
- D
- E
- F
- G
- H
- 0
- 25
- 50
- 75
- 100
- 125
- 150
- 175
- 200
- 225
- >250
Beschreibung des Objekts
Ausstattung
Zur gehobenen Ausstattung gehören:
- edle Fliesen im gesamten Haus Dielen in Landhausstil
- wohlig warme Fußbodenheizung in EG und OG
- elektrische Rollläden an allen Fenstern (außer Keller)
- Smarthome von Loxone
- ideal für Homeoffice das Netzwerk im gesamten Haus
- Sanitärobjekte von namhaften deutschen Herstellern
- Einfahrt über elektrisches Schiebetor
- umlaufende Terrasse sowie ein Südbalkon.
Lage
Nordenstadt ist ein charmanter Stadtteil von Wiesbaden, der eine angenehme Mischung aus Wohn- und Gewerbegebieten bietet. Die moderate Bevölkerungsdichte sorgt für ein ruhiges Lebensumfeld. Eine gute Anbindung an das Stadtzentrum von Wiesbaden ist durch die S-Bahn-Linie S1 sowie verschiedene Buslinien gewährleistet. Die Nachbarschaft ist sicher und familienfreundlich, mit grünen Parks und Spielplätzen, die besonders für Familien mit Kindern attraktiv sind.
Grundriss
OG
>
>
EG
>
>
UG
>
>
Adresse
An der Schule 5, 65205 Wiesbaden
Interessante Orte
Preis- und Lageinformationen
Preistrend für Bestandsimmobilien in Nordenstadt