Objektnr: 1062242
In einer ruhigen Nebenstraße von Hainburg, im charmanten Ortsteil Hainstadt, steht diese eindrucksvolle Stadtvilla zum Verkauf – ein architektonisches Unikat, das durch seine liebevoll erhaltenen Stilelemente, großzügige Raumaufteilung und vielfältige Nutzungsmöglichkeiten begeistert. Die Immobilie eignet sich sowohl für große Familien als auch für Menschen, die Wohnen und Arbeiten stilvoll verbinden möchten. Auch eine Kombination aus Eigennutzung und Teilvermietung ist hier hervorragend denkbar.
Die rund 400 m² große Wohnfläche verteilt sich auf drei unabhängig nutzbare Einheiten – ideal für Mehrgenerationenwohnen, eine Kombination aus Wohn- und Praxisräumen oder als langfristige Kapitalanlage. Bereits beim Betreten fällt die besondere Ausstrahlung des Hauses ins Auge: Großzügige Erkerzimmer auf zwei Etagen, hohe Decken, charaktervolle Fensterfronten und eine durchdachte Raumstruktur schaffen ein außergewöhnliches Wohngefühl. Die Villa wurde 1938 errichtet und in den letzten Jahren kontinuierlich modernisiert – ohne den ursprünglichen Charme zu verlieren.
Das Haus wird derzeit von dem Eigentümerehepaar selbst bewohnt. Es bestehen jedoch keine Mietverhältnisse, sodass ein Eigenbezug oder eine anderweitige Nutzung kurzfristig und flexibel möglich ist – ideal für Selbstnutzer oder Investoren mit konkreten Plänen. Neben hochwertigen Einbauküchen und stilvollen Fliesenböden sorgen fest integrierte Einbauschränke in mehreren Zimmern für durchdachte Ordnung. Im ersten Obergeschoss ist zudem eine moderne Fußbodenheizung installiert, ergänzt durch dreifach verglaste Fenster im 1. und 2. OG, die für energieeffizienten Wohnkomfort sorgen.
Zur weiteren Ausstattung gehören drei Bäder mit Dusche und Badewanne. Der Dachboden bietet zusätzliche Ausbaumöglichkeiten, z. B. für ein Atelier, Homeoffice oder Hobbyraum. Eine Glasfaserleitung liegt bereits an – ideale Voraussetzungen für zeitgemäßes Arbeiten und multimediale Nutzung.
Das ca. 390 m² große Grundstück ist pflegeleicht und dennoch liebevoll gestaltet: Ein gepflegter Vorgarten unterstreicht den repräsentativen Charakter des Hauses, während der begrünte Innenhof mit zwei Balkonen, Terrasse und überdachter Sitzecke Raum für Privatsphäre und Entspannung bietet. Das Gebäude ist voll unterkellert und stellt großzügige Nutz- und Lagerflächen bereit – ideal für Aktenarchive, Hobbyräume oder Hauswirtschaft. Eine modernisierte Öl-Zentralheizung versorgt das gesamte Haus effizient. Zwei Freistellplätze sowie eine großzügige Doppelgarage runden das Angebot ab.
Diese Villa ist mehr als nur eine Immobilie – sie ist ein Ort mit Charakter, Geschichte und Zukunft. Ob als Familiensitz, Kanzlei, Gemeinschaftsprojekt oder Investitionsobjekt: Hier eröffnen sich Ihnen Möglichkeiten, wie man sie nur selten findet.
Stilvolle Villa mit Geschichte – Repräsentatives Mehrfamilienhaus in ruhiger Lage von Hainstadt
63512 Hainburg
Die vollständige Adresse der Immobilie erhalten Sie vom Anbieter.
Auf Karte anzeigen
Die vollständige Adresse der Immobilie erhalten Sie vom Anbieter.
Finanzierungszertifikat
In nur zwei Minuten zu Ihrem persönlichen Finanzierungszertifkat.
Infos
| Haustyp | Villa |
|---|---|
| Etagenzahl | 3 |
| Wohnfläche ca. | 400 m2 |
| Grundstücksfläche | 390,25 m2 |
| Bezugsfrei ab | nach Absprache |
| Zimmer | 13 |
| Schlafzimmer | 7 |
| Badezimmer | 3 |
| Garage/Stellplatz | Garage |
| Anzahl Garage/Stellplatz | 2 |
Kosten
| Kaufpreis |
1.075.000 € |
|---|---|
| Provision |
5,95 % Käufer-Provision: 5,95 % inkl. MwSt., sofern der Verkaufspreis über 83.000,00 € liegt. Die Provision ist mit Beurkundung des Kaufvertrages fällig. Liegt der Verkaufspreis dagegen bei/unter 83.000,00 €, ist die fest vereinbarte Mindestprovision i.H.v. mind. 5.950,00 € inkl. MwSt. mit Kaufvertragsbeurkundung fällig. |
Finanzierungsrechner:
Kaufpreis:
600.000 €
Eigenkapital:
600.000 €
Monatliche Rate
0 €
Effektiver Jahreszins
0 %
Sollzinsbindung
10 Jahre
Bausubstanz & Energieausweis
| Baujahr | 1938 |
|---|---|
| Letzte Sanierung | 2015 |
| Bauphase | Haus fertig gestellt |
| Objektzustand | Gepflegt |
| Qualität der Austattung | Gehoben |
| Heizungsart | Zentralheizung |
| Wesentliche Energieträger | Öl |
| Energieausweis | liegt vor |
| Energieausweistyp | Bedarfsausweis |
| Energieverbrauchskennwert | 304,7 kWh/(m²*a) |
| Energieeffizienzklasse | H |
304,7
kWh/(m²*a)
Energieeffizienzklasse H
- A+
- A
- B
- C
- D
- E
- F
- G
- H
- 0
- 25
- 50
- 75
- 100
- 125
- 150
- 175
- 200
- 225
- >250
Beschreibung des Objekts
Ausstattung
+ In einer ruhigen Nebenstraße von Hainburg, im Ortsteil Hainstadt, eignet sich das Objekt sowohl zum Vermieten als auch zur persönlichen Nutzung, auch ideal für Kanzleien und Steuerberater
+ Erholung pur: Die teils sichtgeschützte Freifläche auf ca. 390 m² übersichtlichem Grund lädt zum Verweilen ein - 2 Balkons erweitern die Wohnfläche
+ Komfort entsteht durch eine hochwertige Ausstattung des repräsentativen Objekts mit 3 WE und weiterem Ausbaupotential im Dachboden
+ Das Objekt bietet eine große Nutzfläche im Keller sowie Platz für Fahrzeuge dank 2 Freistellplätzen und 1 Doppelgarage
Lage
Lage: Die attraktive Lage in Hainburg bietet eine ruhige Atmosphäre und eine gute Verkehrsanbindung.
Nahversorgung: Alle Geschäfte und Dienstleister sind in unmittelbarer Nähe vorhanden.
Bildung und Betreuung: Schulen und Kindertagesstätten sind in der Nähe gut erreichbar.
Anbindung: Bahnhof fußläufig, Autobahn A3 in bequemer Reichweite, Naherholungsgebiete in unmittelbarer Umgebung
Sonstige Angaben
Vereinbaren Sie noch heute einen Besichtigungstermin!
_____________________________________________________
Alle Angaben sind ohne Gewähr und basieren ausschließlich auf Informationen, die uns von unserem Auftraggeber zur Verfügung gestellt wurden. Wir übernehmen keine Gewähr für die Vollständigkeit, Richtigkeit und Aktualität der Angaben.
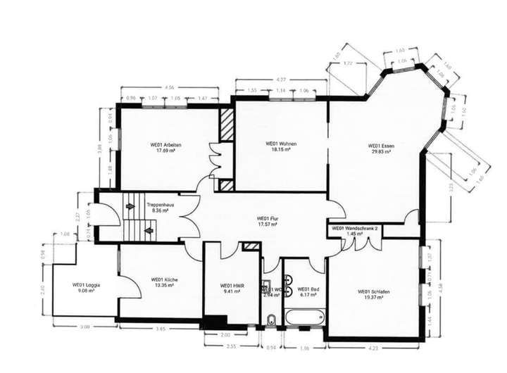
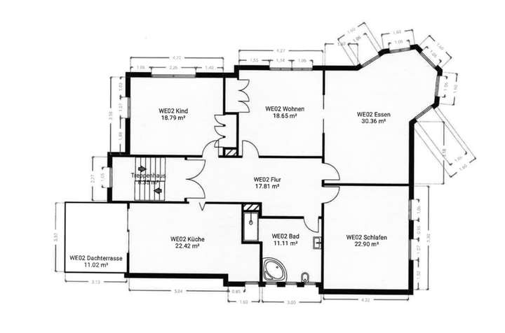
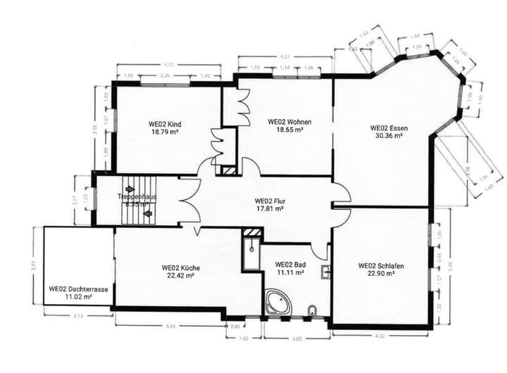
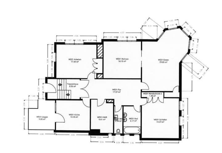
Grundriss
Grundriss Skizze EG
>
>
Grundriss Skizze OG
>
>
Grundriss Skizze DG
>
>
Adresse
63512 Hainburg
Interessante Orte
Preis- und Lageinformationen
Preistrend für Bestandsimmobilien in Hainburg