Bereit für euer Familienabenteuer im eigenen Zuhause? Dann lasst uns gemeinsam starten!
Warum länger warten, wenn euer Traum vom Eigenheim nur einen Schritt entfernt ist?
Wir begleiten euch ganz persönlich – genau da, wo ihr gerade steht.
🔍 Noch kein Grundstück? Wir helfen euch, das Richtige zu finden.
💰 Fragen zur Finanzierung? Wir zeigen euch die Möglichkeiten, die zu euch passen.
🏡 Welches Haus passt zu eurer Familie? Unsere Berater unterstützen euch mit Erfahrung und Herz.
Perfekt wird’s nie – aber der richtige Moment ist jetzt.
Gemeinsam glücklich im eigenen Heim
21079 Hamburg
Die vollständige Adresse der Immobilie erhalten Sie vom Anbieter.
Auf Karte anzeigen
Die vollständige Adresse der Immobilie erhalten Sie vom Anbieter.
Finanzierungszertifikat
In nur zwei Minuten zu Ihrem persönlichen Finanzierungszertifkat.
Infos
| Haustyp | Einfamilienhaus |
|---|---|
| Wohnfläche ca. | 120 m2 |
| Nutzfläche | 0 m2 |
| Grundstücksfläche | 516 m2 |
| Zimmer | 5 |
| Schlafzimmer | 3 |
| Badezimmer | 1 |
| Anzahl Garage/Stellplatz | 0 |
Kosten
| Kaufpreis |
529.000 € |
|---|---|
| Provision | Nein |
Finanzierungsrechner:
Kaufpreis:
600.000 €
Eigenkapital:
600.000 €
Monatliche Rate
0 €
Effektiver Jahreszins
0 %
Sollzinsbindung
10 Jahre
Bausubstanz & Energieausweis
| Baujahr | 2026 |
|---|---|
| Bauphase | Haus in Planung (projektiert) |
| Qualität der Austattung | Gehoben |
| Heizungsart | Wärmepumpe |
Beschreibung des Objekts
Ausstattung
DENK NEU – Alles kann, nichts muss.
Euer neues Zuhause wächst mit euch – ganz so, wie es zu eurer Familie passt.
Die Gebäudehülle steht, und jetzt seid ihr dran:
👷♂️ Ihr packt gerne selbst an? Super, wir lassen euch den Freiraum.
🙋♀️ Ihr möchtet lieber Unterstützung? Kein Problem, wir kümmern uns darum.
Dank moderner und nachhaltiger Bauweise fühlt ihr euch nicht nur rundum wohl –
ihr profitiert auch von attraktiven staatlichen Förderprogrammen.
Jetzt ist die Zeit, eure Zukunft zu gestalten – mit einem Zuhause, das zu euch passt.
Lage
Dies ist ein real vorhandener Bauplatz, auf dem wir ein Beispiel Haus geplant haben.
Sonstige Angaben
Euer neues Zuhause – geplant mit Grundstück
Das Haus ist bereits durchdacht geplant und das passende Grundstück ist mit dabei.
Das Grundstück wird im Auftrag angeboten oder direkt von Dritten verkauft – deshalb kann sich der angegebene Preis je nach Marktlage noch leicht verändern. Zum Grundstück verraten wir euch gerne mehr – im persönlichen Gespräch. So können wir sicherstellen, dass alle Fragen geklärt sind.
Bitte beachtet: Die gezeigten Bilder und Grundrisse sind Beispiele. Manche zeigen Extras, die nicht im Standardpreis enthalten sind.
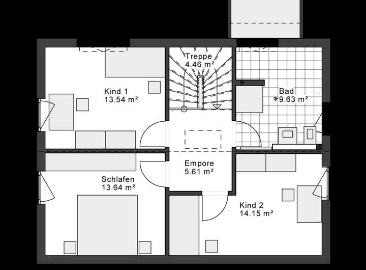
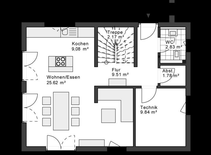
Grundriss
Grundriss EG
>
>
Grundriss OG
>
>
Adresse
21079 Hamburg
Interessante Orte
Preis- und Lageinformationen
Preistrend für Bestandsimmobilien in Wilstorf