Dieses exklusive Manufaktur-Haus, ausgezeichnet mit dem Plus X Award 2023, besticht durch seine hochwertige Ausstattung und architektonischen Bauteilen. In Kombination mit unseren Design-Paketen wird dieses Einfamilienhaus garantiert einzigartig in Ihrer Nachbarschaft sein!
Luxusimmobilie der Extraklasse
22393 Hamburg
Die vollständige Adresse der Immobilie erhalten Sie vom Anbieter.
Auf Karte anzeigen
Die vollständige Adresse der Immobilie erhalten Sie vom Anbieter.
Finanzierungszertifikat
In nur zwei Minuten zu Ihrem persönlichen Finanzierungszertifkat.
Infos
| Haustyp | Einfamilienhaus |
|---|---|
| Wohnfläche ca. | 142 m2 |
| Nutzfläche | 0 m2 |
| Grundstücksfläche | 731 m2 |
| Zimmer | 5 |
| Schlafzimmer | 3 |
| Badezimmer | 1 |
| Anzahl Garage/Stellplatz | 1 |
Kosten
| Kaufpreis |
951.746 € |
|---|---|
| Provision | Nein |
Finanzierungsrechner:
Kaufpreis:
600.000 €
Eigenkapital:
600.000 €
Monatliche Rate
0 €
Effektiver Jahreszins
0 %
Sollzinsbindung
10 Jahre
Bausubstanz & Energieausweis
| Baujahr | 2026 |
|---|---|
| Bauphase | Haus in Planung (projektiert) |
| Qualität der Austattung | Gehoben |
| Heizungsart | Wärmepumpe |
Beschreibung des Objekts
Ausstattung
Neben kurzen Bauzeiten, innovativer Haustechnik, attraktiver Architektur und hochwertiger Manufaktur-Qualität bietet Ihnen das angebotene Schwabenhaus im “Green-Edition” All-Inclusive-Paket folgende Mehr-Werte:
- Bodenplatte inkl. Effizienzhaus 55 Perimeter-Dämmung unterhalb der Bodenplatte sowie stirnseitig
- Klima-Komfort-Bauweise für das Effizienzhaus 55
- Zimmermannsmäßiges Pfettendach
- Photovoltaik-Vorbereitung für die Ausführung eines Photovoltaik-Systems
- Komplette Elektro-, Sanitär- und Heizungs-Installation inkl. Grundinstallation für das Schwabenhaus auf Schwabenhaus-Bodenplatte bzw. -Keller*
- Zukunftsweisende Elektro-Installation*
- Abgeschirmte Lichtleitungen für moderne, störungsfreie Beleuchtung und Lichtszenarien
- Rollläden im Erd- und Obergeschoss Ihres Schwabenhauses
- Doppel-Wärmepumpe Eco* für Heizen, Kühlen, Lüften, Luftreinigung und Warmwasser
- Schwimmender Estrich mit Wärmedämmung*
- Blower-Door Test zur Überprüfung der Luftwechselrate*
- Klima-Komfort-Außenwand mit über 200 Putzfarben zur Auswahl
- Hochwertige, mehrschichtige Holz-Haustür in vielfältigen Design-Lösungen, mit Sicherheitsschließzylinder, 5-fach- Sicherheits-Verriegelung und 3-Scheiben-Wärmeschutzverglasung
- Kunststoff-Fenster mit 3-Scheiben- Wärmeschutzverglasung
- Dachflächenfenster mit Kipp- und Schwingfunktion sowie elektrischen Rollläden*, wenn laut Grundriss enthalten
- Außenfensterbänke aus Naturstein
- Innenfensterbänke aus Kunst- oder Naturstein*
- Massiv-Vollholz-Treppe
- Protect Versicherungs-Paket mit Wohngebäude-Versicherung inkl. Elementarschutz, Haus- und Wohnungs-Schutzbrief, Bauleistungs-Versicherung und Bauherren-Haftpflichtversicherung sowie Job-Protect Versicherungs-Paket
- 10 sowie 30 Jahre Gewährleistung gemäß Definition in der Schwabenhaus Bau- und Leistungsbeschreibung
*Ab Ausbaustufe "Fast-Vollendet"
¹Beim Effizienzhaus 40 Kühlung nur in Verbindung mit optionaler PV-Anlage.
Die aufgeführten Mehr-Werte und Leistungsinhalte beziehen sich ausschließlich auf das in der Schwabenhaus Bau- und Leistungsbeschreibung (BLB) beschriebene Technologie + Komfort-Paket "Green -Edition". Die Mehr-Werte und Leistungsinhalte anderer Schwabenhaus Bau- und Leistungsbeschreibungen bzw. Technologie + Komfort-Pakete können hiervon abweichen.
Lage
Traumlage
Sonstige Angaben
Das Haus ist projektiert inkl. Grundstück. Das Grundstück wird in Kommission angeboten bzw. direkt von Dritten verkauft. Daher kann der o.g. Preis aufgrund aktueller Marktsituationen schwanken.
Die Bauabwicklung kann kurzfristig nach Grundstückserwerb begonnen werden. Bilder zeigen möglicherweise Sonderausstattungen, die auf Wunsch gegen Preiskorrektur zusätzlich angeboten werden können.
Fragen Sie nach unserem kostenlosen Beratungs-Service und erhalten Sie in einem persönlichen Gespräch kostenlos alle wichtigen Informationen zu diesem Projekt, insbesondere: Lage und Bebauungsmöglichkeiten des Baugrundstücks, Baukosten-Kalkulation, Finanzierungs- u. Förderungs-Möglichkeiten, detaillierte Architektur- u. Grundrissplanung, etc.
Wir freuen uns, Sie ausführlich beraten zu dürfen!
Anbauteile, Carport, Garage und Keller können Extras sein, die als Sonderausstattung angeboten werden. Abbildungen, Grundrisse und Flächenangaben sind beispielhaft und können Extras zeigen. Flächenangaben nach DIN 277.
Profitieren Sie jetzt von der Schwabenhaus Online Beratung und verwirklichen Sie Ihr Traumhaus https://www.schwabenhaus.de/anmeldung-hausbau-beratung-online/
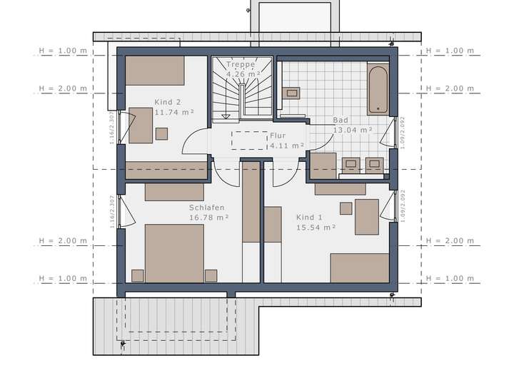
Grundriss
Grundriss Erdgeschoss
>
>
Grundriss Obergeschoss
>
>
Adresse
22393 Hamburg
Interessante Orte
Preis- und Lageinformationen
Preistrend für Bestandsimmobilien in Sasel