Sie suchen für sich und Ihre Familie ein neues Zuhause in ruhiger, angenehmer und familienfreundlicher Wohnlage? Dann könnte das hier angebotene Objekt genau das Richtige für Sie sein. Obwohl dieses Objekt immer gepflegt wurde und bereits im Jahr 2024 die Heizungsanlage erneuert wurde, so sind noch ein paar Renovierungsarbeiten vorzunehmen, damit diese Haus Ihr neuer Familienmittelpunkt werden kann.
Erbaut wurde dieses großzügig geschnittene Wohnhaus im Jahr 1979 und verfügt insgesamt über eine Wohnfläche von ca. 150 m².
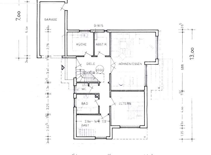
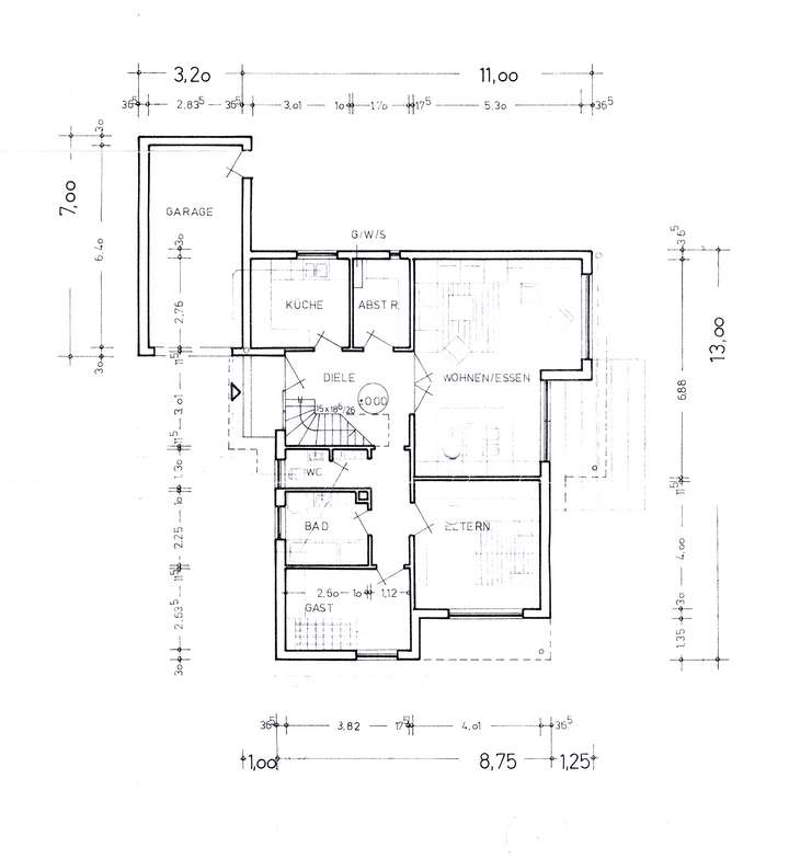
Im Erdgeschoss befindet sich eine Küche, ein Schlafzimmer, ein Büro bzw. Gästezimmer, sowie das helle und geräumige Wohn- und Esszimmer, das einer Familie ausreichend Platz zum Leben bietet. Ein Badezimmer sowie ein WC und ein kleiner Hauswirtschaftsraum mit einem Durchgang zur Terrasse, die sich hinter dem Haus befindet, runden das Raumangebot im Erdgeschoss ab.
Über die Treppe im Eingangsbereich gelangt man in das ca. 50 m² große Obergeschoss.
Hier befinden sich drei weitere, unterschiedlich große Zimmer. An eines dieser Zimmer ist eine Loggia angeschlossen. Das gesamte Obergeschoss verfügt über eine Betondecke.
Zusätzlicher Stauraum ist ebenfalls vorhanden.
Ein Highlight dieses Angebotes ist das große, derzeit pflegeleicht angelegte, rückwärtig unverbaubare Grundstück. Die Terrasse bietet sowohl einen schönen Blick in den eigenen Garten, als auch über die dahinterliegende Wiese. Der sich in unmittelbarer Nähe befindende Freizeit- und Erholungssee ist fußläufig erreichbar und lädt zum Spielen, Baden und Entspannen ein.
Eine Garage von ca. 20m² befindet sich ebenfalls auf dem Grundstück.
Da die derzeitigen Bewohner sich bereits im Umzug befinden, können wir Ihnen leider momentan nur wenige Innenbilder zur Verfügung stellen. Sollten wir Ihr Interesse geweckt haben, setzen Sie sich gerne mit uns in Verbindung, um Ihre Anforderungen an eine Immobilie persönlich zu besprechen und einen Besichtigungstermin zu vereinbaren. Wir freuen uns auf Ihre Nachricht.
Raumaufteilung:
Erdgeschoss: Wohn- und Esszimmer, 2x Schlafzimmer, Küche, Bad, WC
Obergeschoss: 3 Zimmer, Loggia
Energieausweis: verbrauchssorientiert vom 16.10.2025
Energieverbrauch: 154,8 kWh (m²a)
Energieträger: Erdgas
Baujahr Heizung: 2024
Effizienzklasse: E
Ihr Ansprechpartner auch am Wochenende:
Immobilien Delventhal
Christoph Delventhal
04955 / 997012
www.immobilien-delventhal.de
Großzügiges EFH in familienfreundlicher Wohnlage mit Blick ins Grüne und dem Badesee vor der Tür!
26810 Westoverledingen
Die vollständige Adresse der Immobilie erhalten Sie vom Anbieter.
Auf Karte anzeigen
Die vollständige Adresse der Immobilie erhalten Sie vom Anbieter.
Finanzierungszertifikat
In nur zwei Minuten zu Ihrem persönlichen Finanzierungszertifkat.
Infos
| Haustyp | Einfamilienhaus |
|---|---|
| Wohnfläche ca. | 150 m2 |
| Nutzfläche | 20 m2 |
| Grundstücksfläche | 1.137 m2 |
| Zimmer | 6 |
| Schlafzimmer | 5 |
| Badezimmer | 1 |
| Garage/Stellplatz | Garage |
| Anzahl Garage/Stellplatz | 1 |
Kosten
| Kaufpreis |
220.000 € |
|---|---|
| Preis für Garage/Stellplatz | 0 € |
| Provision |
3,57 Die Vermittlungsprovision beträgt 3 % des vereinbarten Kaufpreises plus der z. Zt. geltenden Mehrwertsteuer. |
Finanzierungsrechner:
Kaufpreis:
600.000 €
Eigenkapital:
600.000 €
Monatliche Rate
0 €
Effektiver Jahreszins
0 %
Sollzinsbindung
10 Jahre
Bausubstanz & Energieausweis
| Heizungsart | Gas-Heizung |
|---|---|
| Wesentliche Energieträger | Gas |
| Energieausweis | liegt vor |
| Energieausweistyp | Verbrauchsausweis |
| Energieverbrauchskennwert | 154,8 kWh/(m²*a) |
| Energieeffizienzklasse | E |
154,8
kWh/(m²*a)
Energieeffizienzklasse E
- A+
- A
- B
- C
- D
- E
- F
- G
- H
- 0
- 25
- 50
- 75
- 100
- 125
- 150
- 175
- 200
- 225
- >250
Beschreibung des Objekts
Lage
Dieses ländlich gelegene Objekt befindet sich in angenehmer, ruhiger Wohnlage in Steenfelde, einem Ortsteil von Westoverledingen, einer Gemeinde im Landkreis Leer. Geschäfte des täglichen Bedarfs sowie Ärzte und Banken sind mit dem Fahrrad oder Auto in wenigen Minuten erreichbar. Schulen und Kindergärten sind ebenfalls in der unmittelbaren Umgebung vorhanden und können, ohne eine Hauptstraße zu überqueren, unkompliziert erreicht werden. Die beiden Kleinstädte Leer und Papenburg, die beide über die Infrastruktur moderner Kleinstädte verfügen sind mit dem Auto in wenigen Minuten erreichbar. Hier findet man alles, was man zum Leben braucht: Sämtliche Einkaufsmöglichkeiten, eine Vielzahl von Ärzten, Krankenhäuser, Banken, sämtliche Schulformen, Kindergärten etc. sowie einige touristische Highlights und Freizeitmöglichkeiten.
Sonstige Angaben
Sonstiges:
Haben Sie bitte Verständnis dafür, dass wir Ihnen erst dann nähere Informationen über eine von uns angebotene Immobilie geben können wenn wir Ihren kompletten Namen sowie Ihre Anschrift und Telefonnummer vorliegen haben.
Provision:
Die Vermittlungsprovision beträgt 3 % des vereinbarten Kaufpreises plus der z. Zt. geltenden Mehrwertsteuer.
Datenschutz:
Wenn Sie sich mit uns in Verbindung setzten stimmen Sie der Klausel mit folgendem Text zu:
Hiermit bestätige ich, dass ich die Datenschutzerklärung (siehe: https://www.immobilienkontor-steenfelde.de/impressum) gelesen habe und erkläre ich mich einverstanden, dass meine in das Kontaktformular eingegebenen Daten elektronisch gespeichert und zum Zweck der Kontaktaufnahme verarbeitet und genutzt werden. Mir ist bekannt, dass ich meine Einwilligung jederzeit widerrufen kann.
Widerrufsrecht
Sie haben das Recht, binnen vierzehn Tagen ohne Angabe von Gründen diesen Vertrag zu widerrufen. Die Widerrufsfrist beträgt vierzehn Tage ab dem Tag des Vertragsabschlusses.
Um Ihr Widerrufsrecht auszuüben, müssen Sie uns [Immobilien Delventhal, Bahnhofstraße 15, 26810 Westoverledingen, Tel-Nr.: 04955 997012, mittels einer eindeutigen Erklärung (z.B. ein mit der Post versandter Brief, Telefax oder E-Mail) über Ihren Entschluss, diesen Vertrag zu widerrufen, informieren.
Zur Wahrung der Widerrufsfrist reicht es aus, dass Sie die Mitteilung über die Ausübung des Widerrufsrechts vor Ablauf der Widerrufsfrist absenden.
Folgen des Widerrufs
Wenn Sie diesen Vertrag widerrufen, haben wir Ihnen alle Zahlungen, die wir von Ihnen erhalten haben, unverzüglich und spätestens binnen vierzehn Tagen ab dem Tag zurückzuzahlen, an dem die Mitteilung über Ihren Widerruf dieses Vertrags bei uns eingegangen ist. Für diese Rückzahlung verwenden wir dasselbe Zahlungsmittel, das Sie bei der ursprünglichen Transaktion eingesetzt haben, es sei denn, mit Ihnen wurde ausdrücklich etwas anderes vereinbart; in keinem Fall werden Ihnen wegen dieser Rückzahlung Entgelte berechnet. Haben Sie verlangt, dass die Dienstleistungen während der Widerrufsfrist beginnen soll, so haben Sie uns einen angemessenen Betrag zu zahlen, der dem Anteil der bis zu dem Zeitpunkt, zu dem Sie uns von der Ausübung des Widerrufsrechts hinsichtlich dieses Vertrags unterrichten, bereits erbrachten Dienstleistungen im Vergleich zum Gesamtumfang der im Vertrag vorgesehenen Dienstleistung entspricht.
Hinweis zum vorzeitigen Erlöschen des Widerrufsrechts
Ihr Widerrufsrecht erlischt bei einem Vertrag zur Erbringung von Dienstleistungen vorzeitig, wenn wir die Dienstleistung vollständig erbracht haben und mit der Ausführung der Dienstleistung erst begonnen haben, nachdem Sie dazu Ihre ausdrückliche Zustimmung gegeben haben und gleichzeitig Ihre Kenntnis davon bestätigt haben, dass Sie Ihr Widerrufsrecht bei vollständiger Vertragserfüllung durch uns verlieren.
Grundriss
Grundriss EG
>
>
Grundriss OG
>
>
Adresse
26810 Westoverledingen
Interessante Orte
Preis- und Lageinformationen
Preistrend für Bestandsimmobilien in Westoverledingen