Diese moderne Doppelhaushälfte aus dem Baujahr 2003 bietet ein komfortables Zuhause auf einer Wohnfläche von ca. 115 m². 
Das Haus präsentiert sich mit einer durchdachten Raumaufteilung und überzeugt durch seine moderne Technik sowie einen wohnähnlich ausgebauten Keller. 
Das ca. 288 m² große Grundstück ist übersichtlich gestaltet und bietet ausreichend Platz für entspannte Stunden im Freien.
Bereits beim Betreten des Hauses fällt der helle, einladende Eingangsbereich auf, von dem aus alle Wohnbereiche direkt zugänglich sind. 
Das großzügige Wohnzimmer bildet das Herzstück des Erdgeschosses. Große Fensterflächen sorgen für viel Tageslicht und schaffen eine angenehme Atmosphäre. Die räumliche Aufteilung erlaubt verschiedene Nutzungsmöglichkeiten, wodurch der Wohn- und Essbereich flexibel gestaltet werden kann. 
Von hier aus gelangen Sie auch direkt auf die Terrasse und in den gepflegten Garten.
Die angrenzende, moderne Küche bietet genügend Platz, um gemeinsam zu kochen. 
Ein weiteres Highlight ist die Fußbodenheizung, die für angenehme Wärme sorgt.
Im Obergeschoss befinden sich insgesamt drei angenehm-geschnittene  Schlafzimmer, die ausreichend Platz für Familie, Gäste oder ein Home-Office bieten. 
Das helle, geräumige Badezimmer auf dieser Etage ist mit einer Badewanne ausgestattet und erfüllt alle Komfortträume. 
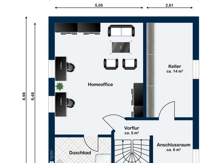
Ein zweites vollwertiges Badezimmer befindet sich im wohnähnlich ausgebauten Keller – ideal für größere Haushalte oder Besucher. Der Kellerraum kann darüber hinaus vielfältig als Hobby-, Arbeits- oder Gästezimmer genutzt werden.
Der ausgebaute Dachboden ermöglicht es Ihnen diesen Bereich individuell zu gestalten. Sei es als Home Office, als Stauraum oder als eigene Ankleide.
Erwähnenswert ist auch die technische Ausstattung der Immobilie: Eine installierte Wall-Box ermöglicht das komfortable Laden eines Elektrofahrzeugs direkt am eigenen Haus – ein zukunftsweisender Pluspunkt in einer zunehmend elektrifizierten Mobilität.
Die Immobilie ist derzeit befristet vermietet bis 2028. Dies bietet einerseits Planungssicherheit, andererseits aber auch die Möglichkeit, die Immobilie perspektivisch für den Eigenbedarf vorzusehen oder als sicheres Mietobjekt zu nutzen. Die Netto-Kaltmiete beläuft sich auf 30.000,00€ pro Jahr. Daraus ergibt sich ein Faktor von ca. 21,6.
Das gesamte Haus besticht durch seinen sehr gepflegten und modernen Zustand. 
Die Lage der Immobilie ermöglicht eine schnelle Erreichbarkeit von Einkaufsmöglichkeiten, Schulen und Freizeitangeboten. Aufgrund der ansprechenden Nachbarschaft bietet dieses Haus ideale Voraussetzungen für verschiedene Lebensentwürfe.Lassen Sie sich bei einer Besichtigung von den Vorzügen dieser Doppelhaushälfte überzeugen. Für weitere Informationen oder einen individuellen Besichtigungstermin stehen wir Ihnen gerne zur Verfügung.
            
        Moderne Doppelhaushälfte, frei ab 2028
                     22045 Hamburg                            
Die vollständige Adresse der Immobilie erhalten Sie vom Anbieter.
        
            
            Auf Karte anzeigen
        
        
    Die vollständige Adresse der Immobilie erhalten Sie vom Anbieter.
 
    Finanzierungszertifikat
In nur zwei Minuten zu Ihrem persönlichen Finanzierungszertifkat.
Infos
| Haustyp | Doppelhaushaelfte | 
|---|---|
| Wohnfläche ca. | 114 m2 | 
| Grundstücksfläche | 288 m2 | 
| Zimmer | 4 | 
| Schlafzimmer | 3 | 
| Badezimmer | 2 | 
| Garage/Stellplatz | Carport | 
| Anzahl Garage/Stellplatz | 1 | 
Kosten
| Kaufpreis | 649.000 € | 
|---|---|
| Provision | Käuferprovision beträgt 3,57 % (inkl. MwSt.) des beurkundeten Kaufpreises | 
Finanzierungsrechner:
                    
                     Kaufpreis:
                        
                            600.000 €
                        
                    
                    
                    
                
            
                        
                            Eigenkapital:
                            
                                 600.000 €
                            
                        
                    
                
            
                        Monatliche Rate
                        0 €
                    
                    
                        
                            Effektiver Jahreszins
                        
                        0 %
                    
                    
                        Sollzinsbindung
                        10 Jahre
                    
                Bausubstanz & Energieausweis
| Baujahr | 2003 | 
|---|---|
| Bauphase | Haus fertig gestellt | 
| Objektzustand | Gepflegt | 
| Heizungsart | Fußbodenheizung | 
| Wesentliche Energieträger | Gas | 
| Energieausweis | liegt vor | 
| Energieausweistyp | Verbrauchsausweis | 
| Energieverbrauchskennwert | 73,6 kWh/(m²*a) | 
| Energieeffizienzklasse | B | 
                                                    73,6
                                kWh/(m²*a)
                                                
                    Energieeffizienzklasse B
- A+
- A
- B
- C
- D
- E
- F
- G
- H
- 0
- 25
- 50
- 75
- 100
- 125
- 150
- 175
- 200
- 225
- >250
Beschreibung des Objekts
Ausstattung
                - wohnähnlicher Keller
- Badezimmer im Keller
- helles Wohnzimmer
- ausgebauter Dachboden (Home Office, Ankleide, etc.)
- WallBox am Carport
- befristet vermietet bis 2028
               
        Lage
                Hamburg, insbesondere der östliche Bereich mit der Postleitzahl 22045, steht für eine lebenswerte Metropole mit hoher Lebensqualität, exzellenter Infrastruktur und einem vielfältigen, internationalen Umfeld. Die Stadt besticht durch ihr stabiles demografisches Profil und eine sichere Wohnatmosphäre, die durch rückläufige Kriminalitätsraten und gezielte Maßnahmen zur Steigerung der Wohnqualität geprägt ist. Familien profitieren hier von einem breit gefächerten Bildungsangebot, einer hervorragenden Gesundheitsversorgung sowie einer effizienten Anbindung an den öffentlichen Nahverkehr, die ein entspanntes und sicheres Aufwachsen ermöglicht.
Der Stadtteil Jenfeld präsentiert sich als familienfreundliches Wohnviertel mit einem lebendigen, multikulturellen Charakter. Hier finden Familien ein Umfeld, das Geborgenheit und Gemeinschaft fördert, eingebettet in eine grüne und naturnahe Umgebung. Die zahlreichen Spielplätze und weitläufigen Parkanlagen wie der Jenfelder Moorpark laden zu gemeinsamen Aktivitäten im Freien ein und schaffen Raum für Erholung und kindgerechtes Spielen. Die Nachbarschaft zeichnet sich durch eine herzliche Atmosphäre aus, die besonders Familien mit Kindern ein sicheres und unterstützendes Umfeld bietet.
In unmittelbarer Nähe befinden sich vielfältige Bildungsangebote, die den Bedürfnissen von Familien optimal gerecht werden: Kindertagesstätten wie die Evangelische Kita Der Gute Hirte sind in nur etwa vier Minuten zu Fuß erreichbar, während Schulen wie die Otto-Hahn-Schule in rund zehn Minuten erreichbar sind. Die Nähe zur Helmut-Schmidt-Universität unterstreicht zudem die akademische Vielfalt der Region. Für die Gesundheit der Familie sorgen zahlreiche Ärzte, Zahnärzte und Apotheken, die bequem in wenigen Gehminuten erreichbar sind, etwa die Jenfelder Apotheke in sieben Minuten zu Fuß. Ergänzt wird das Angebot durch nahegelegene Einkaufsmöglichkeiten wie den Netto Marken-Discount, der in nur fünf Minuten zu Fuß erreichbar ist, sowie vielfältige gastronomische Einrichtungen, die von gemütlichen Cafés bis hin zu familienfreundlichen Restaurants reichen. Die gute Anbindung an den öffentlichen Nahverkehr, beispielsweise durch die Busstationen Am Hohen Feld und Am Jenfelder Moor, jeweils in etwa sechs Minuten zu Fuß erreichbar, gewährleistet eine unkomplizierte Mobilität für die ganze Familie.
Dieses Wohnumfeld in Hamburg-Jenfeld vereint die Vorzüge einer sicheren, grünen und familienorientierten Nachbarschaft mit einer hervorragenden Infrastruktur und vielfältigen Freizeitmöglichkeiten. Für Familien, die Wert auf ein harmonisches Miteinander, eine umfassende Versorgung und eine lebenswerte Umgebung legen, bietet dieser Standort eine ideale Basis für eine glückliche und sorgenfreie Zukunft.
                
        Sonstige Angaben
                GELDWÄSCHE: Als Immobilienmaklerunternehmen ist die von Poll Immobilien GmbH nach § 2 Abs. 1 Nr. 14  und § 11 Abs. 1, 2 Geldwäschegesetz (GwG) dazu verpflichtet, bei der Begründung einer Geschäftsbeziehung die Identität des Vertragspartners festzustellen und zu überprüfen, bzw. sobald ein ernsthaftes Interesse an der Durchführung des Immobilienkaufvertrages besteht. Hierzu ist es erforderlich, dass wir nach § 11 Abs. 4 GwG die relevanten Daten Ihres Personalausweises festhalten (wenn Sie als natürliche Person handeln) – beispielsweise mittels einer Kopie. Bei einer juristischen Person benötigen wir eine Kopie des Handelsregisterauszugs, aus welchem der wirtschaftlich Berechtigte hervorgeht. Das Geldwäschegesetz sieht vor, dass der Makler die Kopien bzw. Unterlagen fünf Jahre aufbewahren muss. Als unser Vertragspartner haben Sie auch eine Mitwirkungspflicht nach § 11 Abs. 6 GwG.
 
HAFTUNG: Wir weisen darauf hin, dass die von uns weitergegebenen Objektinformationen, Unterlagen, Pläne etc. vom Verkäufer bzw. Vermieter stammen. Eine Haftung für die Richtigkeit oder Vollständigkeit der Angaben übernehmen wir daher nicht. Es obliegt daher unseren Kunden, die darin enthaltenen Objektinformationen und Angaben auf ihre Richtigkeit hin zu überprüfen. Alle Immobilienangebote sind freibleibend und vorbehaltlich Irrtümer, Zwischenverkauf- und Vermietung oder sonstiger Zwischenverwertung.
UNSER SERVICE FÜR SIE ALS EIGENTÜMER: 
Planen Sie den Verkauf oder die Vermietung Ihrer Immobilie, so ist es für Sie wichtig, deren Marktwert zu kennen. Lassen Sie kostenfrei und unverbindlich den aktuellen Wert Ihrer Immobilie professionell durch einen unserer Immobilienspezialisten einschätzen. Unser bundesweites und internationales Netzwerk ermöglicht es uns, Verkäufer bzw. Vermieter und Interessenten bestmöglich zusammenzuführen.
           
        Grundriss
                                    Erdgeschoss
                                                                             >
                                        >
                                                                    
                                                                                                                 >
                                        >
                                                                    
                                    Dachgeschoss
                                                                             >
                                        >
                                                                    
                                                                                                                 >
                                        >
                                                                    
                                    Dachboden
                                                                             >
                                        >
                                                                    
                                                                                                                 >
                                        >
                                                                    
                                    Kellergeschoss
                                                                             >
                                        >
                                                                    
                                                                         >
                                        >
                                                                    Adresse
22045 Hamburg
Interessante Orte
Preis- und Lageinformationen
                Preistrend für Bestandsimmobilien in Jenfeld
    
        
                    
            
        
     
                                     
                                     
                                     
                                     
                                     
                                     
                                     
                                     
                                     
                                     
                                     
                                     
                                     
                                     
                                     
                                     
                                     
                                     
                                     
                                     
                                     
                                     
                                     
                                     
                                     
                                     
                                     
                                     
                                     
                                     
                                    